
시공사




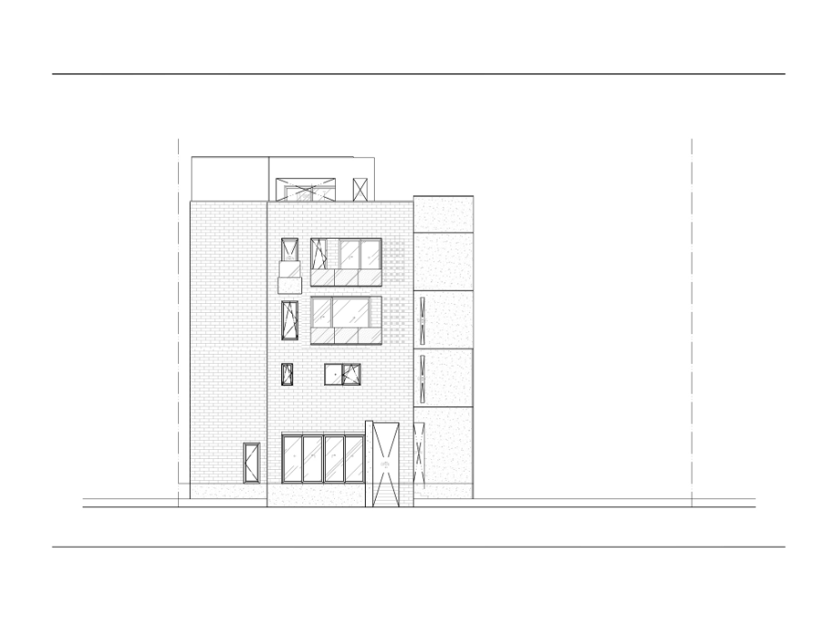
Elevation

Elevation
“저희 집이 지어질 땅은 해변의 황량한 구석에 자리하고 있고 수시로 심한 바람이 부는 바람골이라 아무도 들여다보지 않는 곳이었어요. 그런데 어느 날 밤에 그 땅에 서있다 그림 같은 월출을 보게 되었죠. 오랜만에 배꼽 뒤에서 진동을 느꼈고 그 순간 이곳에서 살아야겠다고 마음을 먹었습니다."
통상적 설계 의뢰와는 조금 달랐던 메일 한 통을 받은 게 프로젝트의 시작이었다. 첨부된 사진은 보름달이 뜬 해변의 밤 풍경. 월출이라 불려도 될 큰 달이 떠 있었고 수면에 긴 빛을 드리우고 있었다. 기묘한 달밤 풍경에 마음을 뺏겨 살 곳을 정해버렸다는 이야기가 궁금해졌다. 첫 만남에서 건축주는 처음 보는 건축가에게 꽤 오래 묵혀두었던 인생 이야기를 고백성사하듯 들려주었다. 상처에 대한, 치유와 위로에 대한 조금은 긴 이야기.




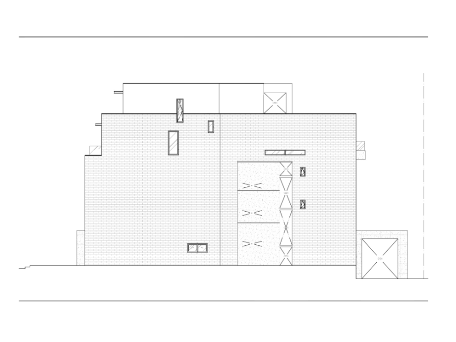
Elevation

Elevation
강원도 양양의 인구해변은 서퍼들의 천국. 봄여름가을겨울 날씨와 상관없이 언제나 파도를 즐기는 서퍼들을 볼 수 있다. 건축주는 여러 해 동안 이곳을 오가며 장소에 스며있는 특별한 여유를 사랑했다. 장소와 닮은 집을 짓고 싶었다. 건축주가 원한 집은 장소와 싸우지 않고 순응하는 집이었다. 집이 이 장소를 더 돋보이게 하면 좋겠다고 생각했다.
꾸밈없는 공간을 통해 인구리의 푸른 바다, 하늘이 더 돋보이게 하자는 것이 설계의 큰 방향이었다. 외관은 연회색의 롱브릭과 노출콘크리트가 적절히 조합된 형태. 가급적이면 천연 재료의 물성이 하나의 덩어리로 드러나 그것이 그대로 집의 아이덴티티가 되도록 했는데, 그것이 느슨한 해변 풍경을 해치지 않으며 적절한 긴장감을 부여하는 재료와 색감이라고 판단했다. 롱브릭의 매지색은 돌과 구분되지 않게 처리하고 바닥과 벽, 천정에 걸쳐 사용된 노출 콘크리트 마감이 몇 가지 면 처리 기법을 통해 공간에 따라 조금씩 다른 물성으로 표현되었다.









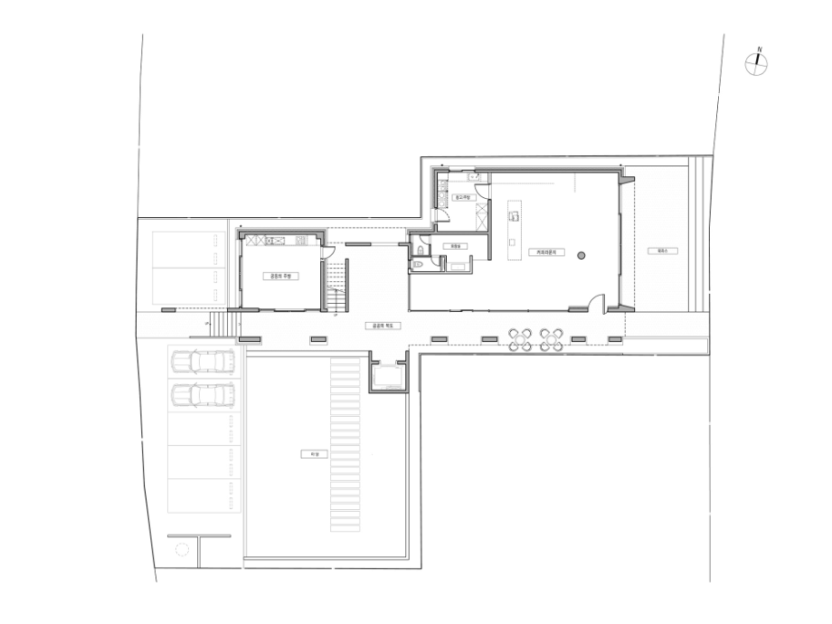
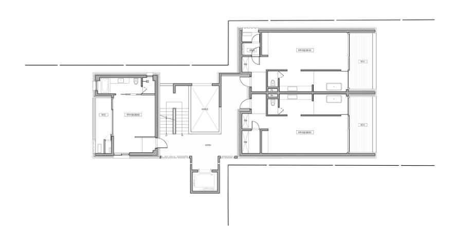
Plan_1F
집 안팎의 공간은 원래 이 장소가 갖고 있던 풍경의 아름다움을 잘 드러나게 해주는 역할이다. 복도의 끝, 실내에서 보이는 큰 창, 발코니의 벽 프레임, 밖도 아니고 안도 아닌 계단홀...은 인구 해변의 빛과 날씨, 바람을 가장 극명하게 체감하게 한다.
땅을 중심으로 해변 앞 도로와 이면 도로가 있었다. 집이 들어서면 두 도로를 가로지르며 오가던 동네 분들의 지름길은 사라질 것이고 해변의 풍경도 이면도로에서는 단절될 것이었다. 건물을 동서로 관통하는 40미터 길이의 1층 외부 복도는 오랜 시간 동네 사람들이 오가던 이 땅의 쓰임새를 지속하려는 건축주의 결정이었다. 외부 복도를 통해 사실상 카루나의 1층은 공공에 개방된다. 복도의 좌우엔 주차장과 정원, 공동키친과 계단홀, 커피 라운지와 접해있고 복도 곳곳엔 손님을 위한 쉴 자리가 마련되어있다.







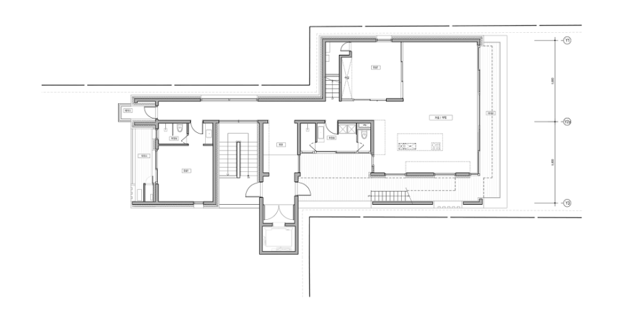
Plan_2F

Plan_3F
2~3층은 숙박 손님을 위한 스테이 공간이다. 객실은 최소한의 칸막이로 침실과 욕실을 구분하며 공간적으로는 하나로 연결되어 있어서 침실과 욕실에서 바다를 충분히 만끽할 수 있다.





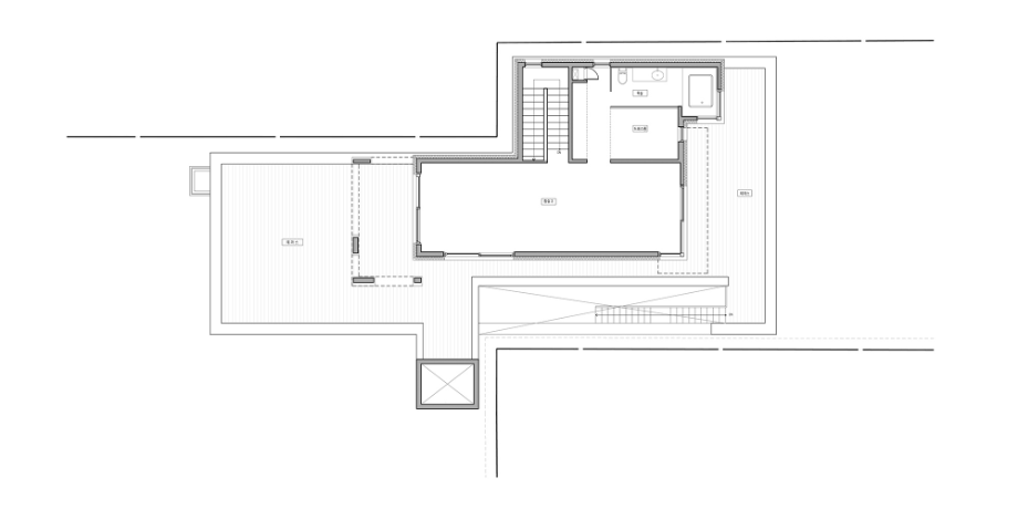
Plan_4F

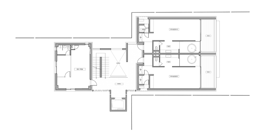
Plan_5F
4~5층은 90평 규모의 펜트하우스 주택이다. 넉넉한 외부공간을 갖는 독립된 단독주택을 3층짜리 상가와 결합시킨다는 개념으로 설계했다. 주택은 동해의 수평선을 담아낸 큰 거실을 중심으로 다양한 외부 테라스가 집 주변을 감싸고 있고 바다의 반대편엔 산과 촌 풍경이 펼쳐진다. 완전한 프라이버시를 보장하는 거주 공간으로서 인구리의 다양한 풍경을 주택의 안팎에 충분히 즐길 수 있도록 의도했다.




카루나(KARUNA)의 의미는 산스크리트어로 '자비'다. 건축주에게 카루나는 허공, 빈 마음, 있는 듯 없는 듯 존재하는 공간, 의 의미였다. 그녀가 원했던 집인지는 알 길이 없으나, 좀 살아보니 이 집이 자신의 작은 우주라는 건 알 것 같다는 한마디에 마음이 놓였다. 그녀의 집을 찾는 손님들에게도 그런 집이면 더할 나위 없을 것 같다.◼︎


















