
시공사



Elevation

Elevation
기존 아동공원 내의 대지에 지어져, 작은 놀이공원과 함께 있는 이 문화센터는 도서관과 지역아동센터 그리고 경로당이 복합된 공공 문화시설이다.
우리는 이 복합시설의 개념적 성격을 마을주민들의 문화적 친교의 장소로 해석했고, 이 문화센터의 주요 프로그램인 공공도서관 계획에서, 정적이고 폐쇄적이며 엄격한 공간성으로 구성해 온 과거의 보수적 공간형식을 탈피해서, 동적이고 개방적이며 자유롭고 자발적인 학습행위가 발생할 수 있는 공간적 프로그램을 도입하여 '우연한 학습', '의도하지 않은 학습', '형식을 벗어난 개방적 학습' 등의 자유로운 학습적 기회를 공간적으로 유발함으로써 도서관의 근본적 역할이어야 하는 평생학습의 기회를 극대화한다는 디자인전략을 설정했다.



Elevation

Elevation

Section
이 복합문화센터의 외관계획은 내부의 공간적 프로그램이 입면의 표피에 그대로 표출된 순수한 매스형태를 기본으로 하여 움직이는 누드 엘리베이터와 내부의 각 행위공간이 투시되어 보이게 한 흥미유발적 개념으로 설정되었으며, 이는 외부 주민들의 호기심을 유발하여 결과적으로 이 문화센터의 주민 이용률을 보다 높힘으로써 평생교육 기회의 제공을 극대화하는 역할을 하도록 해야 한다는 이 프로젝트의 기본계획 개념을 실현하기 위한 조형적 노력이었다.







Plan_1F

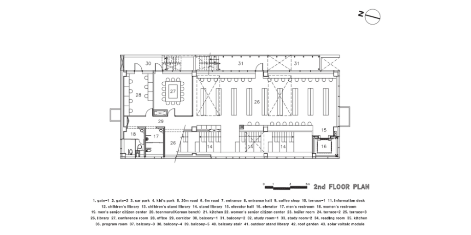
Plan_2F

Plan_3F
그를 위해 필연적인 수직적 이동동선인 3개층의 계단 넓이를 대폭 확대하고, 그를 이동 동선으로서의 계단을 겸한 독서계단으로 기획하여 계단의 난간과 스탠드내부를 책장화하는 동시에, 스탠드를 열람 좌석화해서 어떤 이용자도 수직 이동시에는 항상 시각적, 공간적으로 다양한 정보들을 자연스럽게 접촉할 수밖에 없도록 함으로써, 우연하고 자발적인 정보습득의 기회를 극대화하고자 했으며, 이 3개층이 연속된 거대한 지식의 계단언덕이 주민들의 화합적 만남의 장소이고, 어린이들의 학습적 놀이의 장소가 되기도 하는, 복합적 기능을 가진 주민 친교의 언덕이 될 수 있기를 기대했다.
이 지혜의 계단 위에 주민들의 수많은 행위의 흔적들이 누적된 마을 친교의 언덕으로서, 이 지역의 문화 상징적 장소로 자리하기를 기원한다.◼︎


















