




Elevation

Elevation
지방에서 상경한 건축주 가족이 서울에 처음 자리 잡은 곳이 봉천동이었다. 당시에는 지금처럼 번듯한 도로도 없었고 임시로 지은 집들만이 언덕을 따라 늘어서 있었다. 시간이 흐르고 2대에 걸쳐 살아온 터전은 상전벽해를 이뤘다. 장성한 자식들은 독립해서 봉천동을 떠났지만, 부모님은 쭉 봉천동에 살았다.
서울의 대표적인 달동네였던 봉천동은 현재는 다세대, 다가구 주택들로 빼곡한 지역이다. 복잡하게 얽힌 길들과 경사지를 따라 늘어서 있는 건물의 밀도는 입체적인 동네 풍경을 자아낸다. 도로가 좁고 복잡하지만, 신도시에서는 느낄 수 없는 다양함이 있다. 폐쇄적인 아파트 단지와는 다르게 서로가 거미줄 같은 길로 엮여 있다. 누군가에게는 불편한 환경이지만 이러한 자연발생적 동네 환경은 도시에 활력을 가져오는 요소이기도 하다.



Section

Section
각자의 가족을 꾸리며 흩어져 살던 두 형제는 가족의 역사가 있는 집터에 다시 부모님과 함께 살 수 있는 공동주택을 원했다. 임대와 분양만을 목표로 하는 건물들과 다르게 가족과 이웃이 함께 건강하게 살 수 있는 공간을 요청했다. 형제는 설계의 중요성을 알고 있었다. 면밀한 건축 설계를 통해 불확실한 요소들을 최대한 잡아내는 과정은 예상 밖의 비용을 최대한 줄이는 일임을 공감했다.
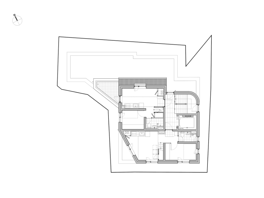
도시 주택은 크게 두 개의 요소 사이에서 균형을 잡는 일이 중요하다. 찌글찌글한 땅 모양과 일조권으로 인한 높이 제한 속에서 최적의 세대수를 계획하는 것과 적정한 공사비 속에서 건전한 공간 구조를 만드는 것이다. 우리는 5층 규모로 12세대 모두 개별 발코니를 갖는 다세대주택을 제안했다. 10평 남짓한 작은 세대지만 외부 발코니는 사용자와 동네 환경에 신선한 활력을 줄 것이라고 기대했다. 대한민국은 수십 년의 아파트 역사를 거치며 발코니 문화를 잃어버렸기에 대부분이 외부와 단절된 채 살아가고 있다. 이후 여러 논의를 거치며 아쉽지만 8개의 세대에 발코니를 적용하는 계획으로 진행하게 됐다





Plan_1F

Plan_4F
건강한 다세대주택을 만들기 위해 몇 가지 적용했던 방향이 있다. 처음부터 시공사가 결정되었기에 도면을 그리며 많은 협의를 나눌 수 있었다. 첫 번째는 끊이지 않는 단열선이다. 쉽게 얘기해 건물을 보온병과 비교하면 이해하기 쉽다. 대부분의 다세대 주택들이 외단열과 내단열을 섞어서 취급하기 때문에 그 교차점에서 결로와 열 손실이 일어난다. 일체타설(단열재를 미리 집어넣고 콘크리트를 타설)을 배제하고 벽과 상·하부 슬라브 모두 외단열로 적용했다. 또한, 창호 주변에 기밀 테이프와 단열 조치를 확실히 했고 열교(Thermal Bridge)가 발생할 수 있는 곳에는 모두 열교차단재를 적용했다. 이것들은 겉으로 보이지 않지만, 장기적으로 건축물의 환경을 건전하게 유지 시켜주는 기본적인 방법이다.
두 번째는 전체 세대에 기계 환기장치를 설치한 것이다. 30세대 미만의 공동주택에서는 의무 대상이 아니기에 간과하기 쉬우나 패시브 공법으로 적용된 건물은 기밀성이 뛰어나기 때문에 자연 환기만으로는 적정 CO2 농도를 유지하기 어렵다. 또한, 콘크리트 양생 후 수년 넘게 습기가 배어 나와 기계 환기장치로 습도를 조정하여 쾌적한 실내환경을 구축하는 것이 필요하다. 마지막으로 낮은 층고에서 최대한 공간감을 확보하기 위해 노출 천장을 부분 적용한 점이다. 이를 위해서 콘크리트 타설 전 전등 및 설비 시설을 매립할 수 있도록 공간을 만들어주는 세심한 배려가 필요했다.







Plan_5F

Plan_Loft
국내 다세대주택의 건설 품질은 열악하다. 이는 높은 수익성만을 쫓은 결과로써 현재의 법령과 규정만으로 건강한 주거 환경을 기대하기 어렵다. 건강한 건축을 위해서는 경험과 역량이 우수한 건축사사무소와 시공사도 필요하지만, 무엇보다 건물주의 의지가 중요하다. 봉천동 다세대주택 ‘연수래’도 좋은 공간에서 이웃과 더불어 건강하게 살고자 하는 건축주의 결심이 좋은 결과로 이어졌다.◼︎



















