
사진






Elevation

Elevation

Elevation

Sketch



Site Plan
'아레피(ALEFFEE)' 남동측 영인 저수지는 아산의 40여개 저수지 중 하나이며 영인면 일대에 농업용수를 공급하고 있다. 남서측 둑방은 폭 5m, 길이 460m에 달한다. 저수지 너머에는 해발 365m 영인산, 북측은 평범한 농가와 창고, 공장 시설들로 이루어져 있다.




Section

Section

Section
아산에서 청년 농부로 성장한 건축주는 저수지 인근에 6,652㎡ 대지를 매입하고 지역 주민을 위한 여가시설을 의뢰했다. 농업용수에 불과했던 저수지는 시대적 변화에 맞춰 도시민의 활동 공간으로 확장할 수 있는 계기가 마련됐다. '아레피'는 농촌의 도시화 과정에서 변방으로 밀려난 저수지, 둑방, 농지가 “어떻게 도시 프로그램과 새로운 접점을 찾고 유형화되어 지속성을 답보할 수 있는가?”의 물음에 답하는 중이다.








Sketch
하나의 경관, 두 개의 날개
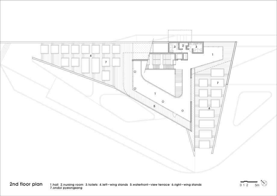
농경을 위한 저수지를 조망 영역으로 전환하고 사용자 중심 여가활동 영역으로 환기하기 위해 외부 스탠드를 설치했다. 스탠드는 두 방향으로 전개되는데, 남서쪽은 2층에서 시작하여 광장과 만나고 이내 낮아져서 둑방으로 이어지는 활동 중심 영역이다. 이곳에서는 농경지 일몰 전경을 부감(俯瞰)하고 활주로처럼 긴 둑방길로 활동 범위를 넓힐 수 있다. 다른 측 스탠드는 접힌 날개처럼 건축에 바싹 붙여서 느슨하게 펼쳐진 저수지와 영인산 풍경을 집중적으로 조망할 수 있도록 했다. 두 방향의 스탠드는 다 같이 콘크리트 좌식 가구(평상)를 설치하여 신발을 벗고 눕거나 앉는 행위가 가능하도록 했다.






건축의 온도
계단과 일체화된 평상은 한국인의 좌식 생활을 반영한 전통 옥외 가구로써 콘크리트 좌식 가구다. 각각의 평상은 입식 가구와 다르게 수용량을 사용자가 신축성 있게 조절할 수 있다는 점에서 다중이용시설에 적합한 가구로 차용했다. 평상 바닥은 사용자의 체온에 맞춰 온돌 시스템을 적용했다. 사용자는 다양한 기후조건에도 외부 활동이 가능하고 특히 추운 계절에는 평상과 온도를 나눌 수 있다.







Plan_1F

Plan_2F

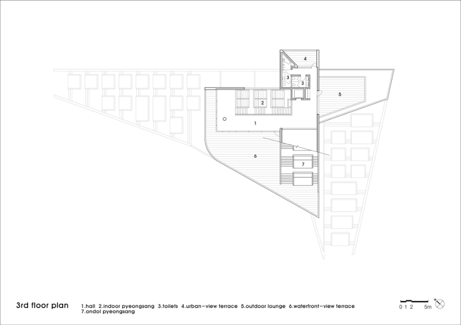
Plan_3F

Sketch
건축의 전개
진입로는 정원과 경작지, 연못과 저수지, 긴 보행로와 둑방을 병치하여 구성했고 캔틸레버(Cantilever) 하부이자 수 공간 상부에는 파우더 룸을 설치하여 내 외부 공간 간 상호 교감이 이루어지도록 했다. 1층 접객 공간에서는 전 층을 비워서 수직적 공기 감을 확보하고 수변광장을 수평으로 열어서 파노라믹한 경관을 즐길 수 있도록 했다. 전층 보이드에는 동선을 노출하여 내부의 공간적 흐름이 단절되지 않도록 했다. 2층은 두 방향의 외부 스탠드와 만나고 3층과 연결되는 플랫폼으로 계획했다. 2층과 3층 이동 간에 콘크리트 평상을 설치하여 다양한 내부 공연, 집회에 대응하도록 했다. 3층은 옥상 루프탑과 연계하여 옥상 파티, 전망 등을 유도했고 다층적 내 외부 조망과 일광욕이 가능하도록 했다.◼︎




















