



ⓒ일상건축사사무소
전주시 택지개발지구는 모두 담장을 두지 못하고, 하더라도 투시형만 가능하다. 전주뿐만 아니라, 대부분의 택지개발지구는 비슷한 지침을 가지고 있다. 주민 간의 커뮤니티 활성화를 위해 만들어졌지만, 개인의 프라이버시가 보장되어야 다른 이에게 조금 더 편하게 손을 내밀 수 있지 않을까 생각하며 '사이집'은 중정형으로 계획됐다.





30대 중후반의 부부와 두 명의 아들을 위한 이 집은 2층으로 계획했다. 주변 집은 모두 3층으로 구성돼 왜소해 보이지 않을까 우려하면서도 건축주는 이층집을 원했다. 이를 해결하기 위해 형태적 긴장감을 주어 주변 집보다 먼저 시선을 끌도록 했다. 2층 매스가 6m 떠 있는 캔틸레버 주택은 당당함을 드러낸다.




Section
공사를 진행하며 6m 켄틸레버 때문에 구조 심의를 받아야 했다. 2층 매스를 철골 구조로도 검토했으나, 소규모 현장 특성상 1층 철근콘크리트와 2층 철골 접합부 시공 품질에 대한 우려가 있어 전체를 철근콘크리트로 계획했다. 캔틸레버를 견디기 위해 2층 슬래브에서 2층 창 하부까지 약 1.5m 높이의 역보를 계획했고, 시공자의 노력으로 완성할 수 있었다.





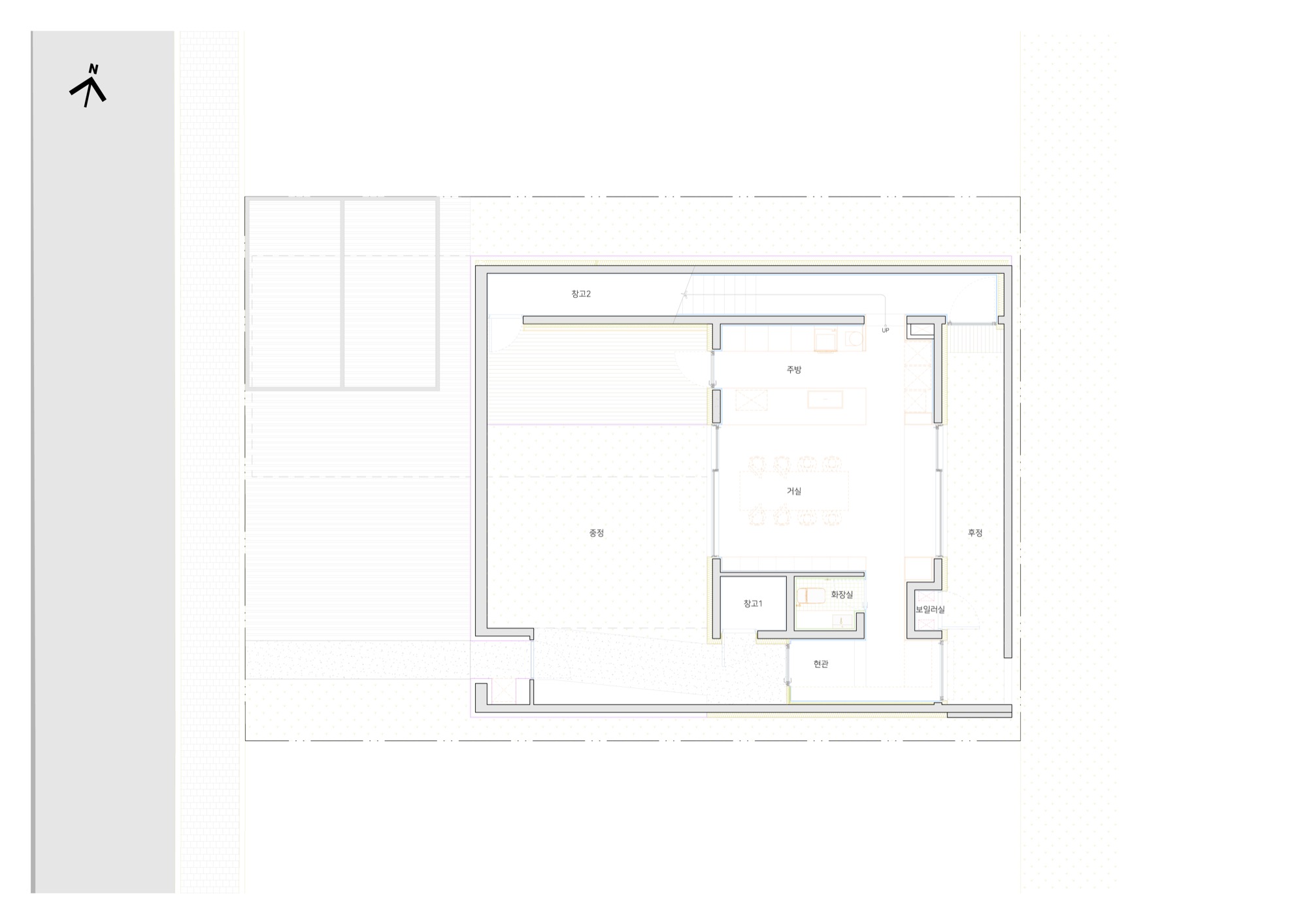
Plan_1F
집으로 들어가는 동선을 가능한 한 길게 계획했다. 주차하고, 집안에 들어가 가족을 만나기 전에 긴 동선을 걸으며 밖에서 겪은 이런저런 이들을 조금이라도 정리하고, 조금 더 온화한 마음으로 만날 수 있길 바랐다. 그래서 사이집은 대지의 끝에서 끝까지를 진입 동선으로 사용한다. 대문을 열고 들어서면 비를 맞지 않고 진입할 수 있는 동선이 나온다. 마당을 지나 현관문을 열고, 후정의 푸른 식재까지 바라보는 일련의 진입 과정을 거친다.



1층의 외부에는 중정과 후정이 있고, 실내에는 주방과 다이닝, 공용화장실이 있다. 건축주는 깔끔한 인테리어를 원했고, 그에 맞춰 최대한 눈에 거슬리는 것들이 없도록 했다. 조명, 에어컨도 돌출되지 않도록 astro사의 프레임리스 매입 등과 발목 등을 사용했고, 에어컨은 쇼파 위 상부장 속에 숨겼다. 여닫을 때 불편함을 없애기 위해 상부장의 도어를 살짝 누르면 자동으로 열리고, 또 자동으로 닫히는 버튼을 두어 편안하고 깔끔한 인테리어를 완성했다.





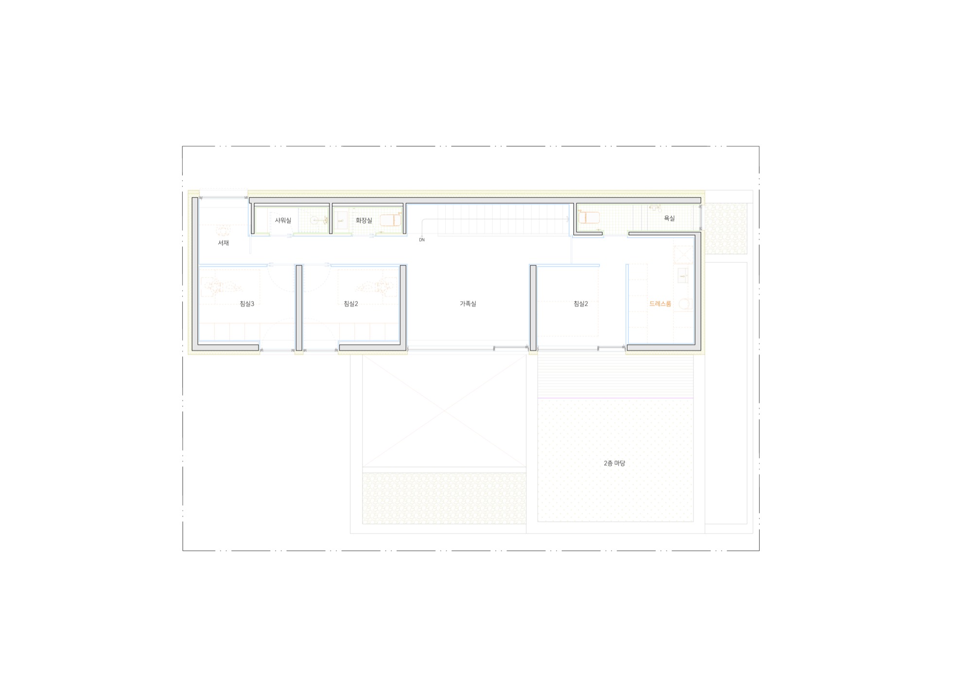
Plan_2F
2층은 가족만의 공간으로 가족실과 부부침실, 아이방, 놀이방, 서재, 화장실, 샤워실 등이 있다. 계단을 통해 2층 가족실로 올라오면 통창으로 1층 중정에 심은 산딸나무가 보인다. 부부침실에는 외부로 나갈 수 있는 조경 공간을 두어 어디에 있어도 계절의 변화를 느낄 수 있도록 했다. ◼︎




















