



'펫포레스트 김포' 프로젝트는 반려동물의 장례식장으로 신축이 아닌 기존 건물 리모델링 형식으로 진행됐다. 논밭과 공장, 자연이 한데 뒤섞여 있는 김포시 외곽에 자리한 건물은 국내 최초의 반려동물 장례식장으로 1999년부터 운영되고 있었다. 반려동물 장례에 관한 법률적 체계가 갖추어지지 않은 상황에서 올바른 반려동물 장례문화의 증진을 위해 설립됐다.




부정적인 시선으로 화장시설 유치에 반대하는 주민 민원과 그것을 의식하여 소극적인 자세를 보이는 각 지자체의 움직임은 건축주에게 장례식장으로 운영되던 기존 건물을 인수하여 리모델링하는 것이 신축보다 합리적이라 판단하도록 이끌었을 것이다. 현행법상 동물은 물건으로 분류되어 반려동물의 사체는 폐기물관리법에 따라 처리해야 한다. 의료 폐기물 또는 생활 폐기물로 분류되어 가정에서 사망할 경우 종량제 쓰레기봉투에 넣어 버려야 한다. 반려동물과 이별한 보호자를 더욱 슬픔에 빠뜨리는 이와 같은 장례와 사체처리 방식은 반려동물 장례문화와 인식에 대한 현재 우리 사회의 자화상일 것이다. 성숙해지는 양육문화, 반려인구의 지속적인 증가로 반려동물 장례식장이 이제는 혐오나 기피시설이 아닌 필요 시설이 됐다. 보호자와 건강하고 의미 있게 이별할 수 있는 동물장례문화와 장례시설의 변화가 더욱 절실하다.



기존 건물은 인접부지와 경계에 여유 없이 가득 들어서 있었다. 그리 크지 않은 내부는 앞으로 운영에 필요한 각각의 실과 공간으로 가득 채워져야 했다. 본 건물을 둘러싼 법규와 제약 등 여러 상황이 있었는데, 외적으로는 기존 외장재를 뜯었다 다시 붙이는 반복적인 행위만을 허용하고 있어 덧대거나 덜어내는 것을 제한했고, 내적으로는 공간들의 기계적인 배치만을 강제했다. 외부나 내부로 더하거나 뺄 수 없는 현 상황에서 공간을 나누는 것을 고민하기 시작했다. 크지 않은 공간을 모으고 통합하는 일반적인 방식과는 사뭇 다른 방식으로 접근이었다. 공간을 나눠 크지 않은 공간을 한눈에 직관적으로 파악되는 공간 구성을 피했고, 이는 작은 여러 공간을 만들어 슬픔에 잠긴 보호자들이 같은 공간이 아닌 나누어진 공간에서 각자의 시간을 가질 수 있도록 하기 위함이었다.




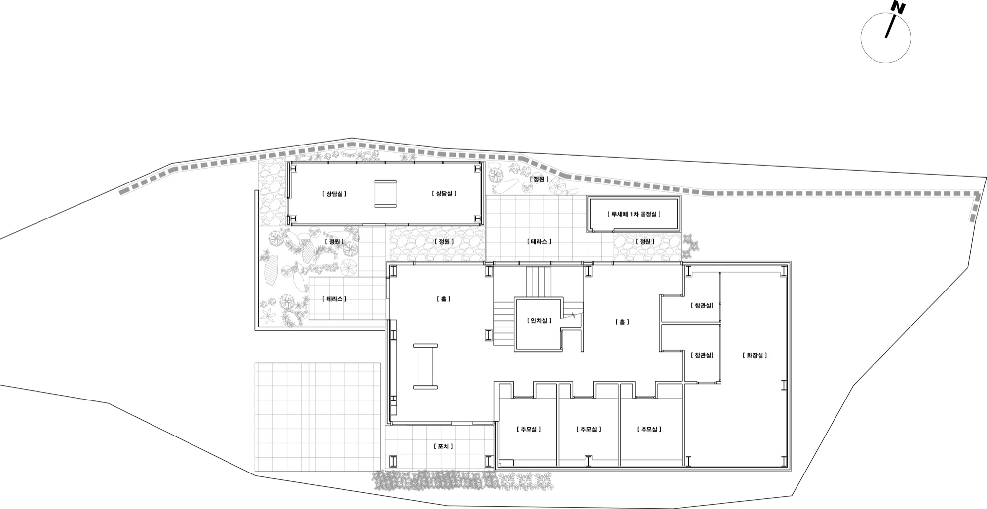
건물은 3개 동으로 이루어진다. 기존 건물의 내부 계단 형태를 바꿔 공간의 가운데로 옮겨 내부를 분절했고, 옮겨진 계단의 빈자리는 현재의 출입구로 대체됐다. 가운데 자리한 계단을 축으로 필요한 실들을 배치했다. 건물로 들어선 방문자는 유리로 마감된 홀과 상담실, 그 사이 외부 정원을 지나 바깥으로 이어지는 풍경으로 시선을 옮긴다. 물리적으로 크지 않은 공간의 답답함을 상쇄하고, 중첩되는 여러 켜는 공간에 깊이감을 더한다.





Plan_1F
이곳을 방문해 가장 먼저 찾게 되는 상담실은 메인 건물의 홀을 지나 외부 정원을 거쳐야 하는 동선으로 단조롭지 않다. 내부와 외부가 교차하는 공간 체험은 지루하지 않고, 그 사이 다채로운 식재는 보는 이의 마음을 가다듬게 한다. 내부 각 실로 출입하는 동선을 안쪽으로 끌어들여 출입문이 곧바로 노출되지 않도록 설치해 이곳이 사적인 공간이라는 것을 강조했다. 출입문의 선들과 움직임이 사라진 각 실의 모습은 정적이고 간결하다.





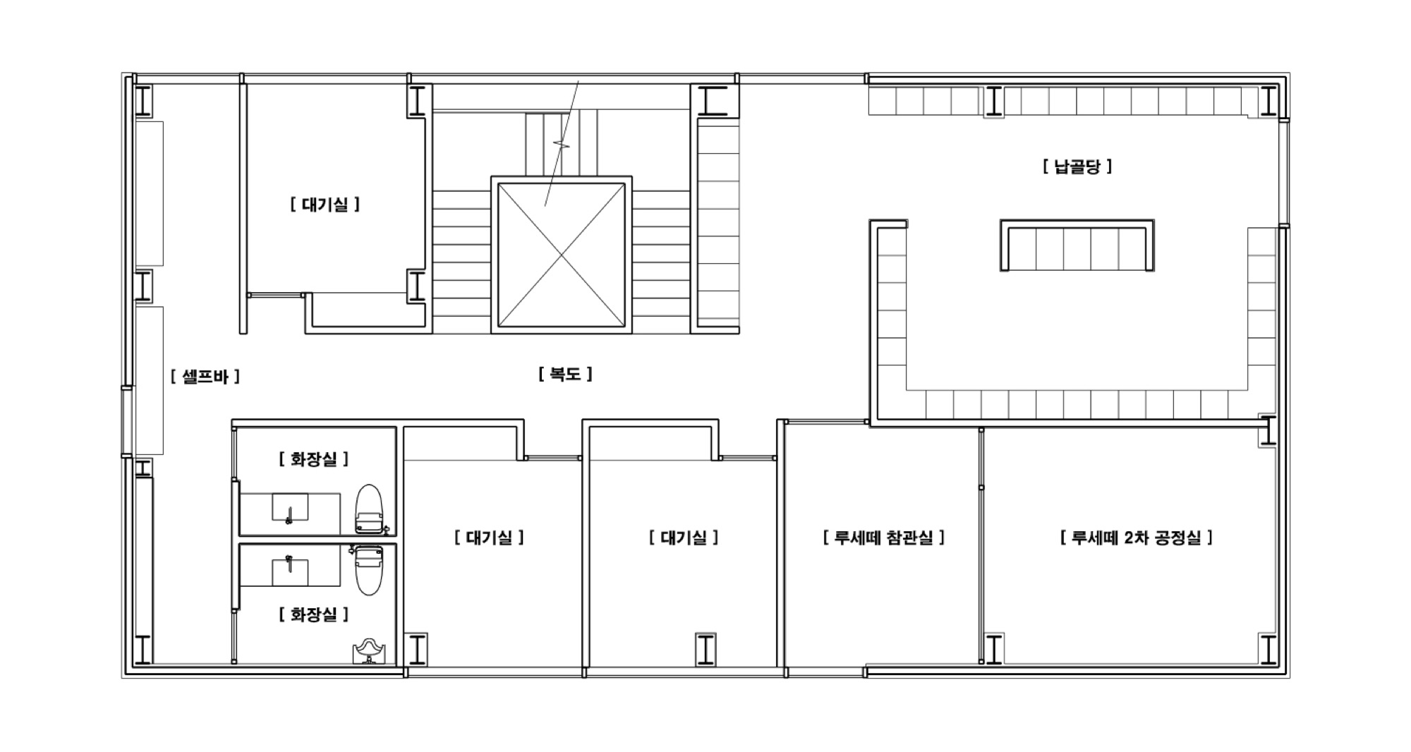
Plan_2F
건물을 받치고 있는 뼈대, 철골 기둥은 최소한의 면 처리와 투명유리로 마감해 예전 모습을 드러냈다. 국내 반려동물 장묘업의 효시인 건물을 지지하고 있던 기둥은 새로운 기둥의 모습으로 그 명맥을 이어받는다. 옥상 정원은 휴게 공간의 바닥은 나무껍질을 잘게 부수어 마감해 배수가 잘되고 통기성이 뛰어나며 무게가 가벼워 기존 건물 구조에 하중 부담을 주지 않는다. 걸을 때 전달되는 폭신한 촉감은 보호자의 마음을 가라앉히고, 자연소재의 물성은 마주한 산자락과 결을 같이하며 서로의 경계를 허문다.




Plan_3F
외피 구성 역시 내부의 나누기가 그대로 투영되어 여러 면과 소재로 자연스레 나누어졌고, 내부가 기능과 효율성에 근거했다면 외부는 오로지 의도된 비율을 단서로 정교하게 나뉘었다. 높낮이를 달리해 이식된 식재들과 면과 면을 가르는 창호, 주변 자연이 투영된 타일은 존재감을 드러내며 마치 선물상자 여러 개를 포개놓은 듯 서로 얽힌 모습을 하고 있다. 정제된 선과 면, 그 속에 피어오르는 식재로 오가는 이의 궁금증을 자아내는 이곳은 찾아오는 이의 슬픔을 이해하고 위로하며, 서로에게 의미 있는 마지막 인사를 돕는 마지막 선물 같은 장소가 되길 바라는 마음으로 계획했다. ◼︎



















