



서교동의 과거와 현재
'서쪽의 다리'라는 뜻에서 유래된 서교동은 서북 쪽의 중심지의 역할을 수행하고 있으며, 가장 붐비는 홍대거리와 함께 양화로 건너편의 동교로를 중심으로 하는 지역까지 홍대 거리의 대부분을 차지한다. 2000년대 홍대거리의 부흥과 함께 대중들의 관심을 받게 된 이곳은 패션, 음악, 유흥, 젊음의 상징으로 대변돼왔다. 2010년 이후 트렌드의 변화와 주변 연남동을 비롯한 다양한 '위성상권'이 들어서며 현재는 비교적 정적인 분위기로 변화하고 있으며, 유흥에서 보다 개성있는 개인 음식점들과 카페가 들어서며 다채로운 색을 내고 있다.



Diagram
해당 프로젝트의 위치는 홍대거리 건너편의 서쪽이며, 홍대거리와 합정, 연남을 잇는 교두보의 역할과 동시에 역동적인 홍대거리에서 파생되어 나온 정적인 프로그램들이 주를 이루고 있다. 불특정 다수의 방문객이 지나다니던 거리를 넘어 정적인 분위기의 공간과 쾌적함을 찾는 이들의 발걸음이 늘어나고 있다. 빌라와 상업시설이 밀집해있어 강한 색감과 무채색의 건물이 혼합되어 거리를 전체적으로 어둡게 만들고 있었다. 이에 우리는 시야를 차단하지 않는 열린 입면을 제시해 눈에 띄지 못하고 묻히는 건물을 되살리며, 나아가 거리 분위기의 중심으로 역할을 할 수 있길 기대한다.

Diagram

Elevation

Elevation
디자인프로세스
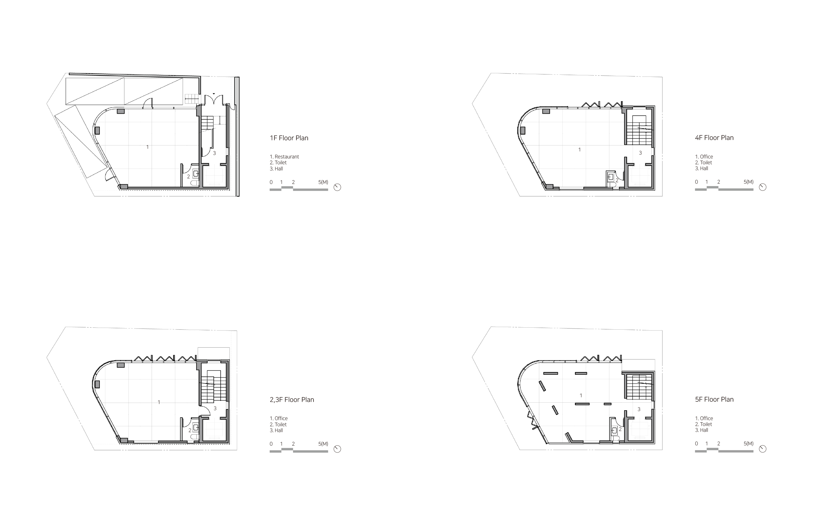
현재 건물은 동교로 삼거리의 교차로에 있다. 이는 건물의 접근성에도 영향을 끼치는 요소다. 망원역, 합정역, 홍대입구역에서 모두 접근하기 용이하며, 3개의 거리 어디에서든 건물이 발견된다. 특히 건물 바로 정면의 주차장과 대지 앞 주차공간은 교차로에서 열린 공간을 보여주며 건물의 주목성을 끌어내고 있다. 건물의 입면 또한 정형적인 사격형의 입면이 아닌, 대지의 형태를 따르는 곡선으로 만들어져 노출되는 입면의 면적 또한 넓은 상황이었다.



Section

Plan
하지만 기존 입면의 불투명한 유리와 전형적인 무채색 석재의 마감은 열려있는 모습을 단절시키며 폐쇄적인 느낌으로 주목을 이끌어내지 못하고 있었다. 이에 세 골목이 만나는 교차점에 자리한 기존 건물의 조형적 특성에 어울리는 투명하고 가벼운 파사드를 덧씌우기로 결정했다. 다소 짧은 임대차 주기와 빠른 프로그램의 변화가 있는 지역성을 고려하여 외부는 이중외피를 활용한 가변적인 입면 시스템을, 내부는 크고 투명한 띠창을 적용하여 상황에 유연하게 대응할 수 있는 공간을 계획했다. ◼︎


















