



'House 1981' 리노베이션 프로젝트는 역사적 층위가 지닌 공간적 맥락을 존중하면서도 현대적 개입을 통해 건축물에 현재성을 부여하는 것을 목적으로 한다. 이 주택은 1970년대 이후에 진행된 대한민국의 도시화 과정에 있는 서민형 주택으로, 연와조와 시멘트 기와로 지어져 현재까지 본래의 구조와 재료를 유지하고 있었다.



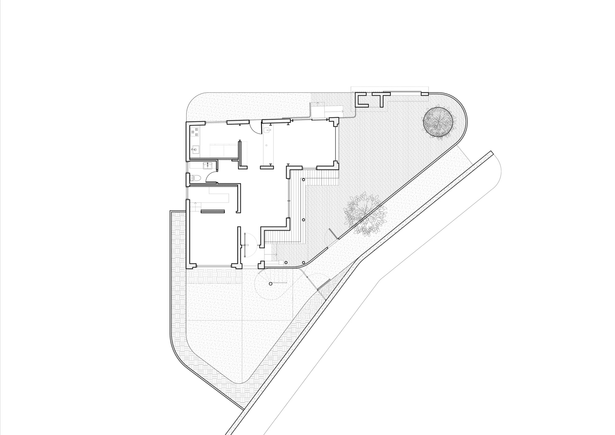
Plan_1F
건물은 경사진 두 도로의 교차점에 자리 잡고 있으며, 다양한 속도와 방향의 교통 흐름이 주변을 둘러싸고 있다. 이러한 다층적 맥락 속에서 새로운 개입은 기존 건축물과 외부 환경의 관계를 새롭게 재구성한다. 절제된 변화와 조정은 과거의 층위에 현재를 연결하는 동적 흐름을 만들고자 했다.



Plan_2F
기존의 대문에서 바로 이어지던 계단은 철거하고, 낮은 담장으로 구분된 1층과 2층 마당의 경계 가까이 계단을 설치하여 시각적 연속성과 기능적 분리를 동시에 구현했다. 증축된 금속 계단을 지지하는 기둥은 기존 연와조 구조를 보강하는 동시에 계단 아래의 테라스에 자연스러운 그늘을 형성하고 있다.



Before_Site plan

Before_Plan, Elevation
마당의 바닥과 담장에는 기존 건축물에 사용된 벽돌과 유사한 적벽돌을 사용하여 본래의 질감과 미학적 정체성을 유지했다. 새로 추가된 요소들은 절제된 재질감을 적용해, 붉은 벽돌과 석재 장식 그리고 타일이 지닌 시간성과 고유한 매력을 더욱 돋보이게 한다. 이러한 조화는 건축물의 원형적 요소와 현대적 개입이 상호작용하며 공간과 시간의 의미를 확장한다.
내부는 최소한의 개입을 원칙으로 하며, 구조적 보강이 필요한 부분에 시멘트 블록 벽을 추가하고 기존 천장 보와 콘크리트 슬래브를 통합해 건물의 내구성을 강화했다.◼︎


















