
사진



소금 공장의 기억을 품은 장소, 부안 예술공방
부안 상설시장 인근, 원도심에 있는 부안 소금공장은 민족 고유의 제염법으로 재제염을 생산하던 공장이었다. 수산업이 발달한 부안에서 중요한 역할을 하던 시장 인근의 소금 공장은 지난 2009년 운영이 중단된 후 폐허로 남아있었다. 부안 예술공방은 이 소금공장이 있던 자리에 계획되었다. 건물이 위치한 비정형 필지는 입구가 좁고 안으로 깊은 형태이다. 시장을 오가는 지역 주민을 대상으로 한 도시재생 시설로서, 길게 펼쳐진 2층의 금속 파사드는 상설시장을 향해 강한 인지성을 가진다.




Site Plan
1층의 뒤로 물러난 벽돌 매스와 2층의 돌출된 금속 박공 매스가 교차하며, 행인을 맞이하는 감싸는 듯한 외벽을 만든다. 둔탁한 매지의 적벽돌을 적용한 1층은 저층의 오래된 주택가의 연장이며, 매스가 뒤로 물러나 만드는 공간은 대지 뒤편 주택에 대한 배려이자 골목길의 연장이다.





Section

Section
2층의 박공지붕과 반사도가 높은 금속 외장재는 소금 공장을 모티브로 한다. 매스를 떠받히는 Y자 기둥은 긴장감을 형성하며 매스 하부에 휴식 공간을 만들고, 시장 입구에서부터 뒤편 휴식공간에 이르기까지 4개의 레벨에 걸쳐 시선이 통하도록 한다. 낮은 높이의 2층 테라스에서는 행인과 자연스레 시선이 마주치며 건물 내의 활동을 바깥으로 전파한다. 테라스에서 박공의 매스까지 경사를 따라 건물의 높이가 단계적으로 상승하여 건물의 크기가 주는 압박감이 줄어든다. 두 개 층이 열린 내부 공간은 철골 구조가 그대로 노출된 공장 건물의 유형을 가진다. 남동 측을 향해 활짝 열린 박공 매스의 창을 통해 깊은 필지를 극복하는 풍부한 자연광이 쏟아진다.




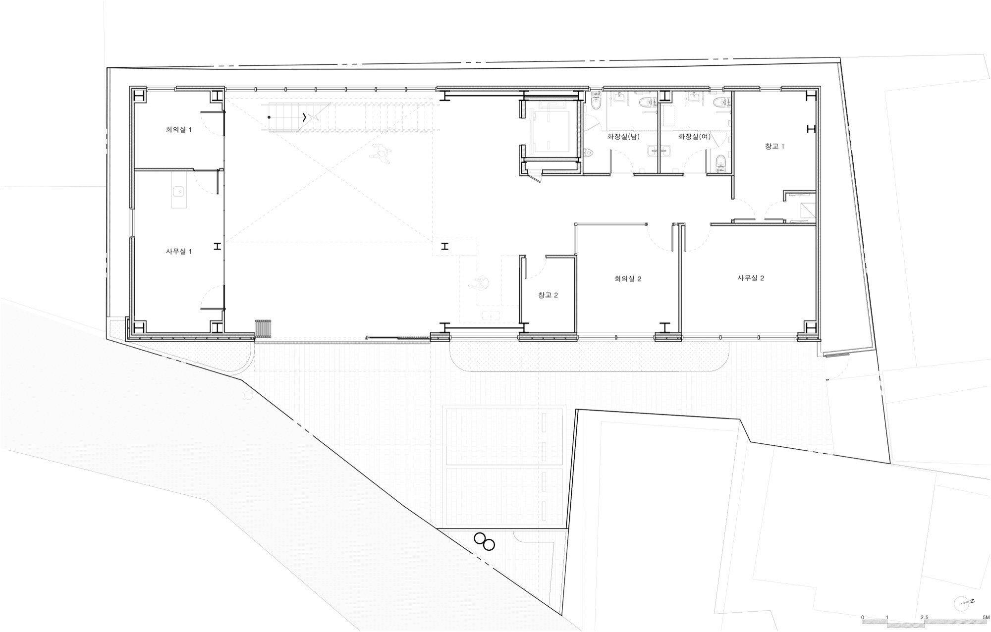
Plan_1F

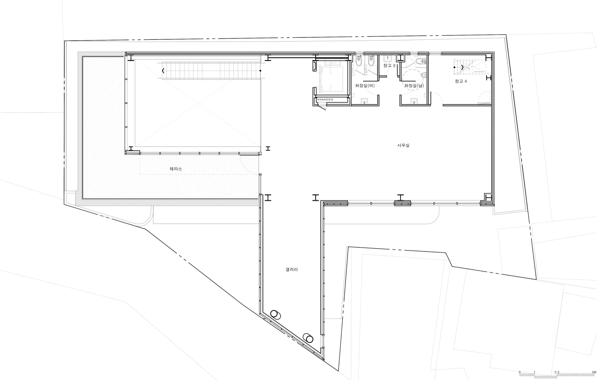
Plan_2F
비대칭의 돌출 구조 내부를 제외하고는 각 실과 조명은 매우 단순하고 규칙적인 배치를 하며, 은색의 데크플레이트가 그대로 노출된 천장은 조명을 반사하는 역전된 소금 가마솥과 같다. 1층의 구획을 가볍게 나누는 투명한 폴리카보네이트는 사무실 내부로 자연광을 유입하고, 소금 포대를 이용한 테이블의 상판으로 쓰이며, 납작한 솥에 맺힌 소금 결정을 떠올리게 한다. ◼︎

















