



Elevation

Elevation
군집 Community
개발 붐으로 오래된 동네에 새로운 것이 들어오며 거리가 들썩인다. 가로에서 조금 떨어진 골목에 자리한 대지는 주목받지 못하는 곳이었는데, 용감하게도 옆 땅의 소유자가 흰색 건축물로 변화의 물결을 일으키며 신축하려는 분위기가 조성되었다. 이러한 분위기에서 서로 튀려고만 한다면 난개발이 될 것이 뻔했다.



Section
골목의 풍경을 만드는 데는 형태를 단순화하고 주변 건축물과 조화를 꾀하는 것이 큰 기준이라 생각하고 접근했다. 그러한 이유로 과감하게 옆의 흰색 건축물과 비슷한 형태와 색채를 사용해 건축물이 더 크고 넓어 보이도록 착각하게 하는 전략을 구상했다. 군집의 힘은 분명히 개별보다는 강할 테니까.



Plan_1F
오솔길 Path
일조 사선의 제약으로 인해 건축물은 사선의 벽이 필연적일 수밖에 없고, 그러한 형태로서의 군집은 주변의 땅에도 동일하게 주어질 컨디션일 것이다. 군집의 힘은 강하지만 다소 획일화된 골목 풍경을 유발할 수밖에 없다는 한계는 나무와 풀과 같은 자연 요소를 적극적으로 드러내는 것으로서 자연스럽게 건축물 안에서도 삭막한 옆 건축물의 벽면이 아닌 푸르른 나뭇잎이 함께 하게 했다.




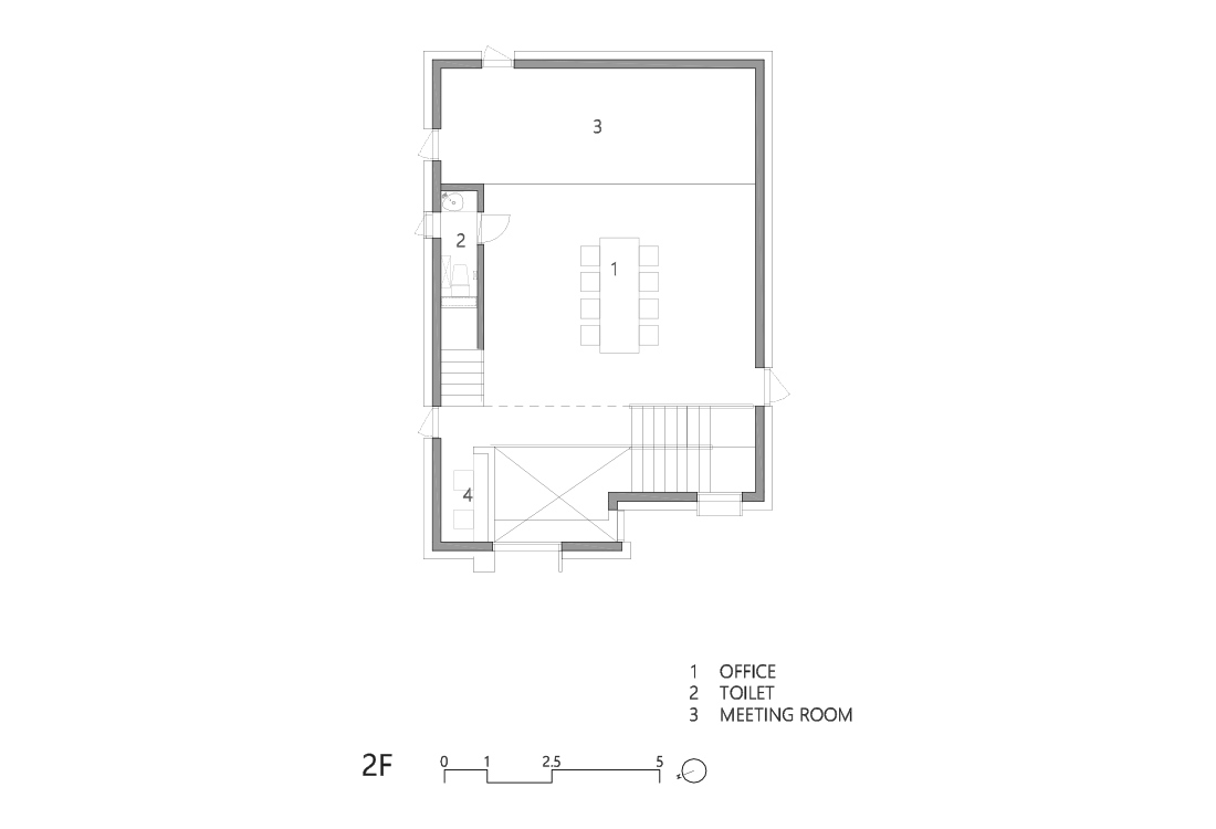
Plan_2F

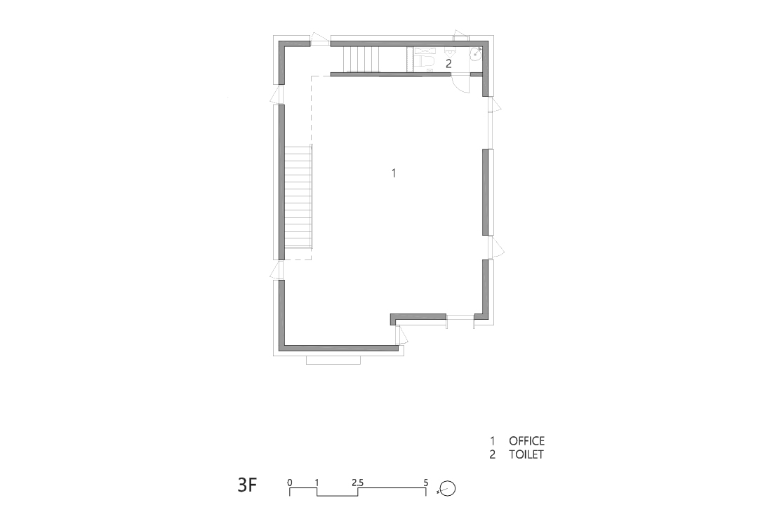
Plan_3F
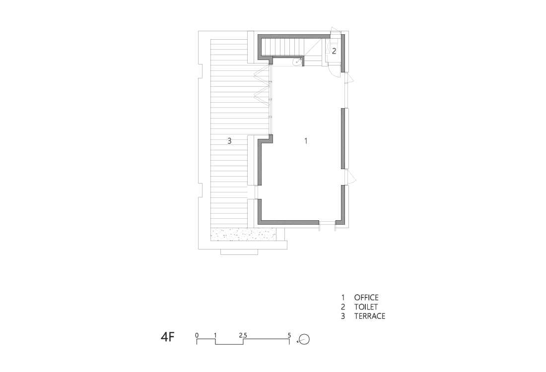
숲속 오솔길을 걷듯 5개 층을 아우르는 동선을 자유롭게 배치했다. 좁은 공간을 극복하기 위한 시선을 획일화되지 않게 하는 방법이었고, 동선의 흐름이 유연하게 되어 창의적이며 효율적인 업무 환경을 마련할 수 있도록 함과 동시에 각 층 소통의 장점을 극대화하고자 하였다.




Plan_4F

Plan_RF
플래티스(Platys)는 그리스어로서 ’넓다‘라는 뜻이다. 플라타너스(Platanus)의 어원으로도 사용된 이 건축물의 이름은 비록 작은 공간이지만 넓게 사용하고 싶은 바람이기도 하고, 초여름 초록의 밝고 상쾌한 느낌을 언제나 느끼길 희망하는 마음일지도 모르겠다. ◼︎



















