



교회건물이지만, 종교적 상징이 과하게 사용되지 않도록 절제하면서 습관적으로 적용되었던 형태와 공간에 대하여 다시 생각해 보았다. 하늘 높이 커다란 십자가를 설치하는 대신 작고 겸손한 십자가를 바닥에 두었다. 전면 필로티를 받치는 세 개의 원기둥으로 삼위일체 교리를 은유하였고 예배실 전면 천창 아래 빛이 쏟아지는 벽을 붉은색으로 칠하여 그리스도의 보혈을 상징하는 동시에 공간에 생동감을 주도록 하였다.




Section

Section
단층의 낮은 건물이지만, 각 부분의 높이를 달리하여 외형에 리드미컬한 느낌을 주었다. 실내에서 높고 낮은 천정의 변화는 각기 다른 고유한 공간을 체험할 수 있도록 한다. 전면도로 쪽에 필로티 공간을 두어 도시의 길이 넓어지게 했다. 길이 넓어지면서 도시의 속도가 느려지고 여유가 생겼다. 그곳에 벤치를 두어 이웃들이 쉬어갈 수 있는 새로운 장소를 만들었다.





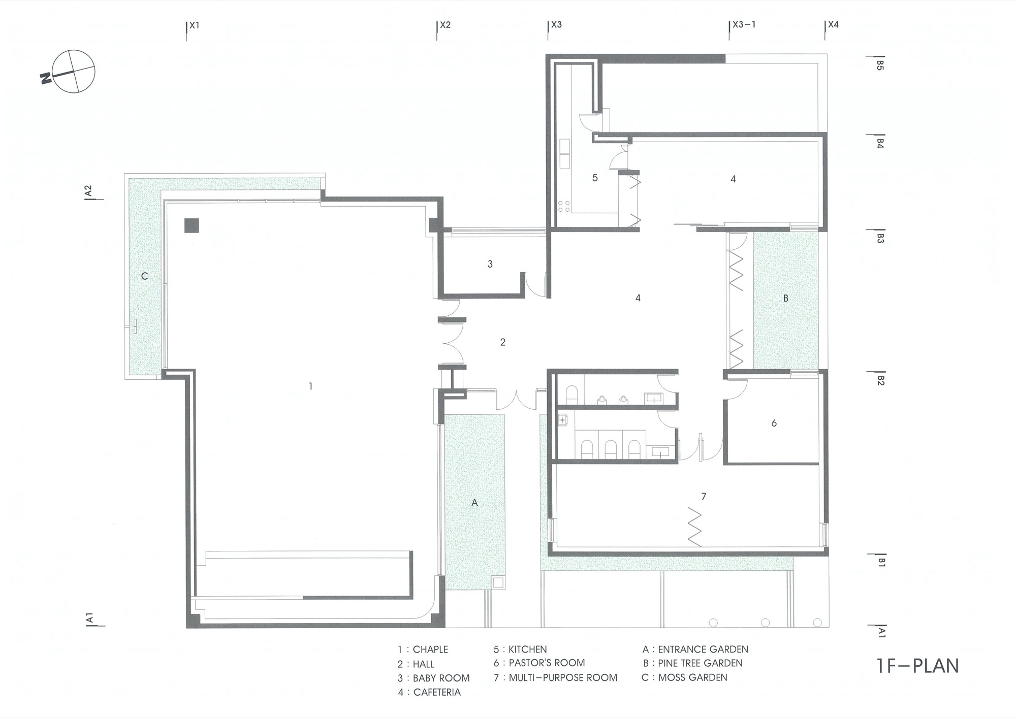
이 건물을 구성하는 중요한 개념은 하나의 볼륨 사이 3개의 다른 정원을 끼워 넣어 나누는 것이었다. 나뉘어 들어간 정원은 내부 깊숙이 빛을 들이고, 공기의 흐름을 만든다. 진입정원, 소나무 정원, 이끼 정원은 각각 다른 목적을 지니며, 인접한 내부 공간에 고유한 역할을 수행한다.




Plan_1F
진입 정원은 도시의 길을 건물의 중심부까지 끌어들이며 생동감 있는 진입 시퀀스를 만든다. 식당 옆에 자리한 소나무 정원은 빛과 바람, 나무로 실내에 자연의 풍성함을 느끼게 더해주고, 이끼 정원은 은은한 북향의 빛이 예배실로 흘러들어 가게 하여 차분한 묵상의 공간으로 만든다. ◼︎




















