



‘달무지개 Moonbow‘에서부터 집의 이야기는 시작되었다. 건축주가 집짓기를 결심한 지 얼마 지나지 않은 날, 가까웠던 가족을 떠나보내고 돌아오는 길 풍경을 보며 이 단어를 떠올렸다고 했다. 우리는 '달무지개'라는 이미지를 구체화하기 위해 구성 및 재료를 상상하고 건물을 그려 나갔다.
“우리가 눈으로 보는 모든 것이 사물과 공간이기 이전에 ‘빛’이다. 그 빛들이 사물과 공간에 퍼지고 우리 눈에 담겨 시각적으로 인지되어 느끼고 기억되는 모든 것이 빛을 통해 이루어진다.” 『빛의 얼굴들』 - 저자 조수민





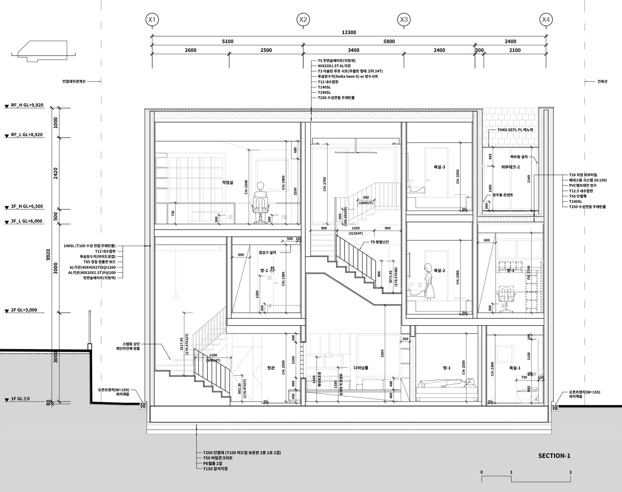
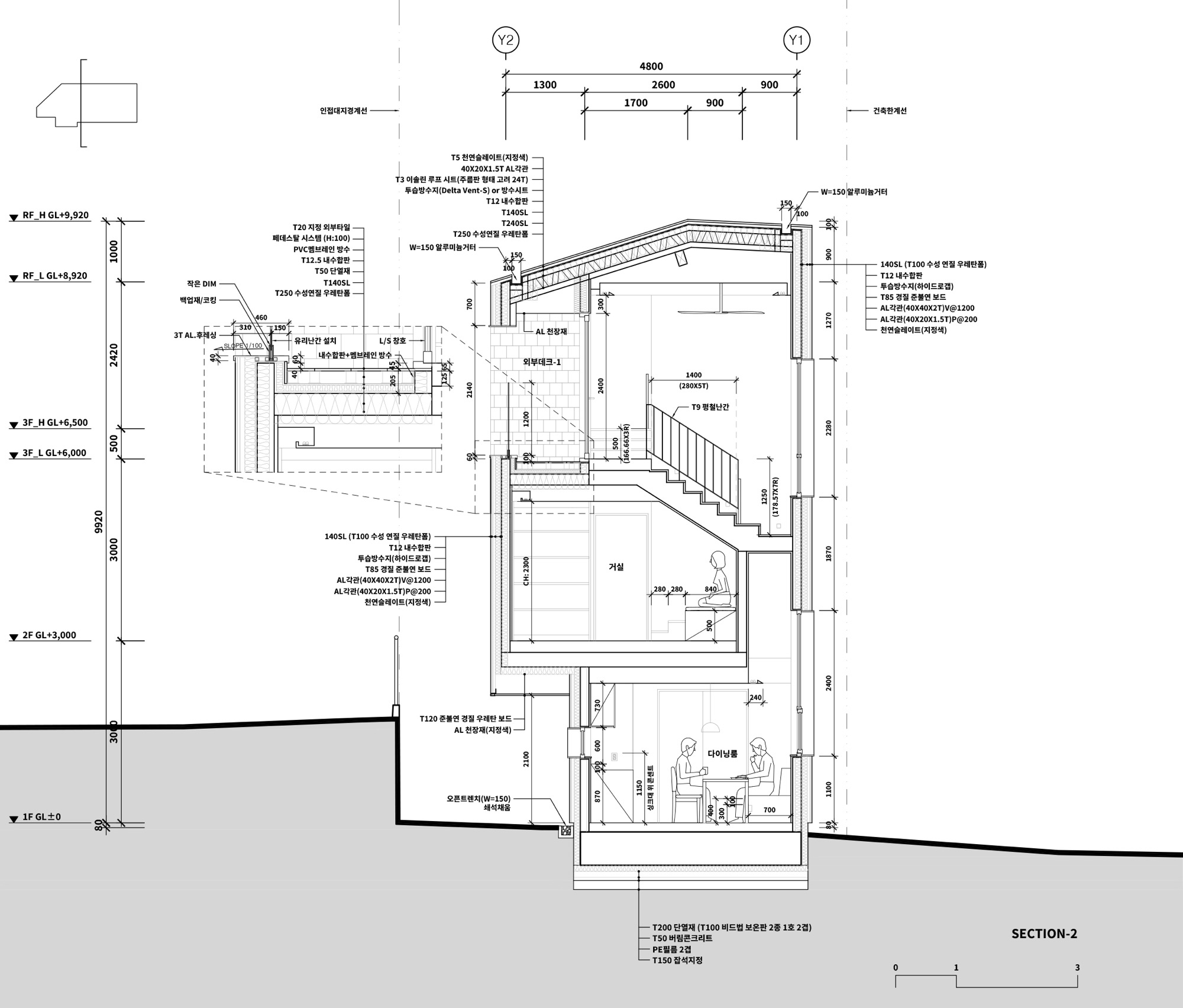
Section
‘빛’을 통해 떠올리는 기억
우리 눈에 보이는 것이 오직 ‘빛’일지라도 어떻게 보여줄지, 무엇을 통해 보여줄지, 어떤 재료를 통해 보여줄지에 따라 사용자에게 인식된 경험을 연상하게 하고 우리가 의도한 이미지를 경험하게 해줄 수 있다고 생각했다. 어슴푸레함, 푸른 빛, 고요한 분위기 등 달무지개에 대한 인식의 단어를 바탕으로 건물의 분위기를 정리하였다. 천연슬레이트는 이러한 분위기를 간접적으로 표현하기에 적합한 재료였다. 동틀 녘, 해 질 녘, 정오의 햇살, 인공조명 등 시간과 날씨에 따라 은은하지만 다채롭게 변하는 건물 표면의 빛을 통해 건축주가 달무지개를 느낄 수 있기를 바랐다.




Section
하루를 오롯이 함께하는 집
건축주는 조부님, 부모님과 함께 지내며 프리랜서 일과 클래스, 유튜브 작업을 병행할 수 있는 집을 원했다. 건축주의 동생 또한 재택근무자이기에 삼대에 걸친 가족구성원의 일상과 개인적 업무가 적절히 공존할 수 있는 공간이 필요했다. 건축주는 작업과 휴식, 가족 간의 시간 등 본인의 하루를 이 집에서 모자람 없이 온전히 즐기고 싶었다. 이에 일반적인 단독주택과 조금은 다른 공간 구성으로 건축주의 라이프스타일에 맞는 집을 설계하고자 했다.
“네모난 방에서 유튜브 촬영 등 작업과 잠을 자며 지냈어요. 하나의 공간에서 작업과 휴식이 번갈아 이루어지다 보니, 개인적인 일상과 작업을 명확하게 분리하기 어려울 때가 많았습니다. 잠자리에서 일어나면 출근의 과정 없이 바로 일터가 되는 식이에요. 그래서 작업과 생활의 흔적들이 뒤섞여 있을 때가 많았습니다.” - 건축주 인터뷰 중





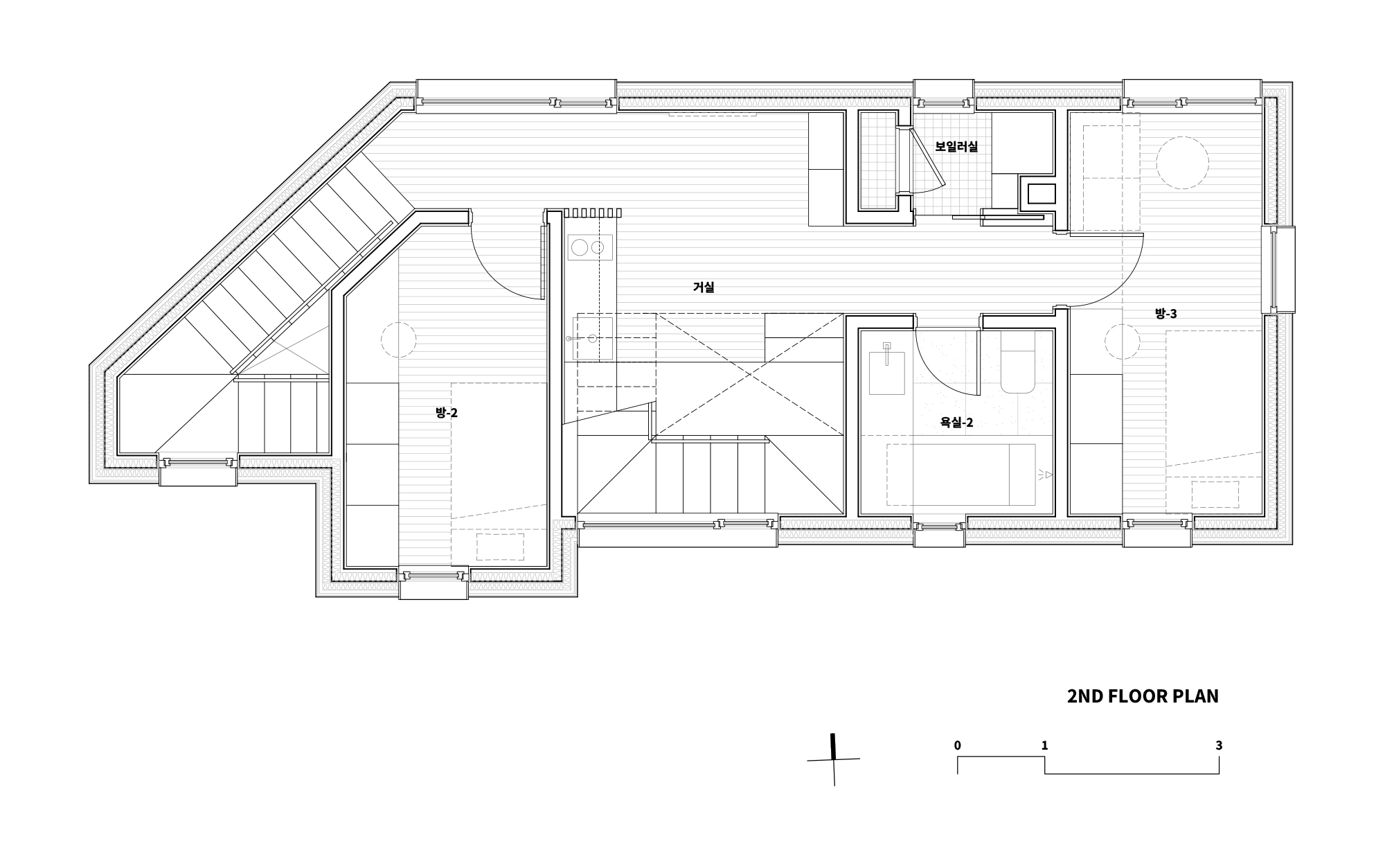
Plan_1F
시니어를 위한 1층 계획
1층 조부님의 공간은 주방, 거실, 침실, 욕실까지 단차와 재료 분리 없이 한 번에 이어지도록 계획했다. 각 공간의 경계에는 포켓도어를 설치하여 평상시에는 열어두어 시야를 확보하고 필요시 선택적으로 닫아 프라이버시를 지킬 수 있도록 했다. 거실과 방 사이에도 포켓도어를 두고 소파와 침대를 맞닿게 배치하여 가구 간 이동 동선을 줄였다. 또한, 1층 어디서든 손을 짚고 안전하게 이동할 수 있도록 가구가 없는 곳에는 안전 손잡이를 설치하여 조부님 거동의 편의를 도울 수 있도록 계획하였다.





Plan_2F
작업과 휴식의 전환을 위한 공간
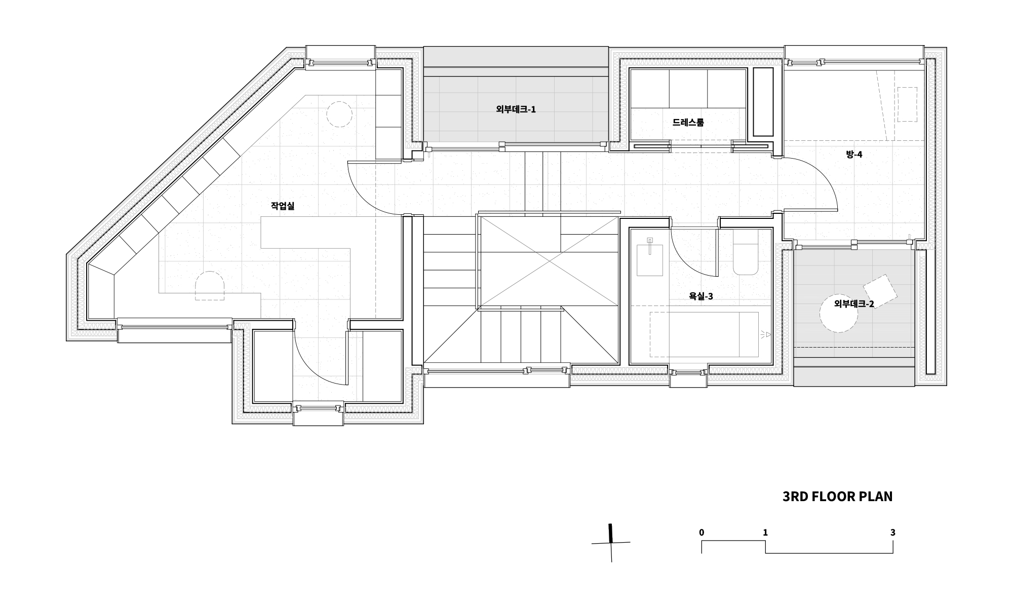
2, 3층의 일상 공간과 업무 공간은 최대한 직주분리를 위해 동서 방향 양 극단에 배치하였다. 복도는 동쪽 침실에서 나와 일하러 가는 물리적 거리를 만들고, 복도에는 드레스룸과 욕실을 면하게 계획했다. 씻고 옷을 입는 과정은 작업과 휴식 간에 심리적 환기를 위한 장치가 된다. 복도를 지나면 외부를 향해 열린 공간이 나오고 작업실을 마주하게 된다. 작업실 벽면은 외부 매스의 연장선상에서 별도의 건물로 인지할 수 있도록 창호 및 외부데크와 나란하게 계획했다. 천연슬레이트와 구로 철판도어로 마감하여 사용자에게 외부를 통해 작업실 건물로 들어가는 것 같은 경험을 제공한다. 작업실 내부 역시 편안한 느낌으로 일관된 나머지 공간과 상반되는 톤의 마감재를 사용하여 작업과 휴식의 전환이 어렵지 않게 이루어지도록 했다.





Diagram

Plan_3F
epilogue_새로운 풍경
이 집이 자리한 대지는 서울과 경기도의 경계에서 흔히 볼 수 있는 혼재된 풍경 속에 있다. 상점, 음식점, 공장, 창고, 주택이 질서없이 뒤섞인 모습은 단독주택과 어울리지 않는 듯 낯설게 느껴지는 곳이다. 그런 풍경 사이로 고개를 내민 ‘달무지개’는 주변 모습과 조화를 이루면서도 새로운 분위기를 만들어내고 있다. 무심한 대로와 무채색의 골목 가운데 자리한 이 집이 마치 달무지개처럼 주변에 잔잔한 빛이 되어 낯설지만 익숙하고, 조용하지만 생기 있는 마을의 또 다른 풍경이 되기를 바란다.◼︎


















