
설계
사진
시공사
북한강이 펼쳐진 풍경집




풍경인식의 맥락과 조건
병원 경영을 하는 부부는 일주일 중 4일은 도심에, 3일은 전원에서 생활하는 4도 3촌의 삶을 살고 있었다. 기존에 살던 집을 철거하고 새로 집을 짓고자 했다. 대지는 산자락 중턱에 자리 잡아 북한강이 펼져지는 곳으로 집안 곳곳에서 이 풍경을 누리고 싶어했다. 사업으로 많은 사람이 자주 방문하는 집이기에 손님들과 어울려 자연을 누리는 집을 원했다. 또한, 야외 수영을 즐겨 하기에 꽤 큰 수영장도 계획하길 바랐다.




Section

Section
대지의 흐름에 순응하는 삶의 기하학
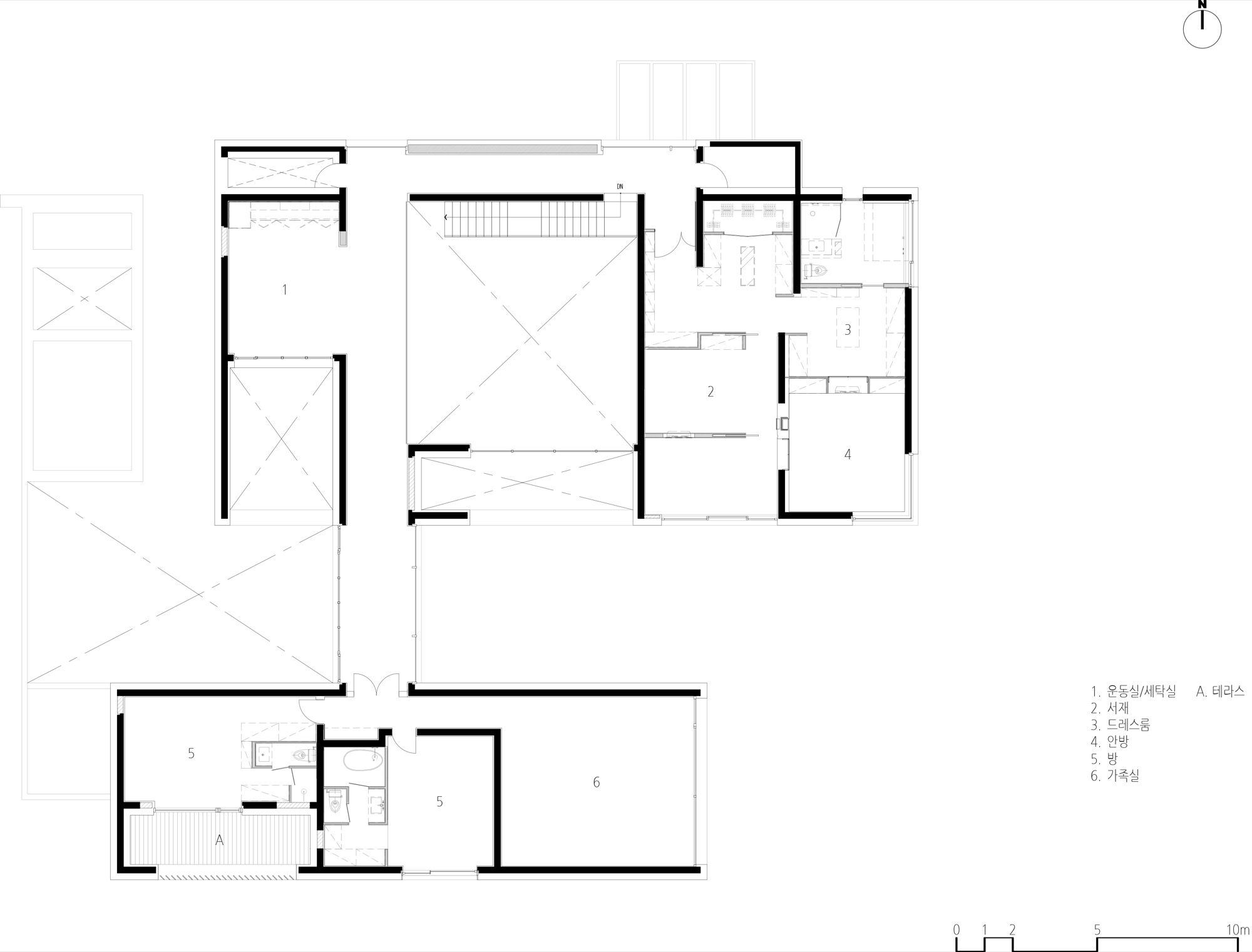
경사진 대지의 흐름은 그대로 건물의 배치로 이어진다. 두 개의 매스는 가운데 사이 마당을 두고, 서쪽 도로에 주 출입구를 형성한다. 1층은 사이 마당을 가운데 두고, 북쪽 매스는 복층의 거실과 식당, 주방으로 계획했고, 남쪽 매스는 필로티로 계획하여 야외 수영장을 배치했다. 2층은 두 매스를 잇는 'ㄷ'자 배치를 하여 북쪽에는 부부의 침실을, 남쪽에는 손님과 자녀 방들을 두었다. 이처럼 지형의 흐름에 순응하는 기하학의 배치는 삶과 풍경의 연결체로 다앙한 풍경 체험의 건축적 장치가 된다.




Plan_1F
삶의 움직임 속 다양한 거리감의 풍경들
집의 풍경은 삶의 움직임과 함께 다양한 거리감의 프레임으로 전개된다. 일상 속 어떤 순간에는 원경의 풍경을, 어떤 순간에는 근경의 부분적 풍경으로, 어떤 순간에는 중경의 압축적 풍경으로 이 풍경이 모여 삶의 움직임 속에서 다양한 감응과 체험을 준다.




Plan_2F
풍경은 주차를 하고, 두 매스 사이 마당을 진입하면서 누리게 된다. 필로티로 된 매스 하부로 야외 수영장과 함께 펼쳐지는 풍경은 진입과 함께 시작된다. 기하학적 매스선과 자연선의 관계적 풍경은 서로의 존재를 드러내고 상호보완적인 긴장감을 준다. 1층 현관과 오디오룸, 2층 운동실에는 가까운 풍경 프레임이 각 방의 용도와 함께 작동한다. 1층 거실과 응접실에서는 제일 중요한 장면이 연출된다. 2개 층 높이의 공간에 펼쳐치는 풍경은 깊은 처마와 사이 마당, 그리고 필로티된 야외수영장 너머 북한강의 모습이 압축되어 한 눈에 들어온다. 폴딩도어의 개방성은 풍경과 일체화되는 경험으로, 시각적 장면 뿐 아니라, 바람과 소리, 빛과 그림자, 무거움과 가벼움, 안정감과 불안감 등의 볼 수 없는 자연적 감성까지 넓어진 개념으로 인식된다. 이처럼 삶의 움직임 속 다양한 거리감의 풍경은 시각적 상품화로 소비되는 것을 넘어, 삶의 자리를 차지하면서 우리가 인식하는 범위를 넓히고 깊어지게 할 것이다.◼︎


















