






Diagram
풍경인식의 맥락과 조건
암사유적지 근처에 있는 암사동 선사마을은 오래전부터 자리를 지켜온 유서 깊은 마을이다. 마을은 동쪽으로 낮은 야산이 있어 안정적이며 동쪽 햇빛이 잘 들고, 남쪽인 암사동 쪽으로 도시 풍경이 펼쳐진다. 서쪽으로는 한강을 끼고, 그 너머 아차산이 한눈에 들어온다. 건축주는 부모님 세대와 같이 살 집을 원했고, 각 세대가 독립된 영역을 가지면서 일상 속에서 주변 풍경을 누리길 바랐다.




Section

Section
다시점을 품은 풍경 기하학
주변 풍경을 담아내야 하는 집은 대지를 채우는 삶의 기하학으로 출발했다. 동쪽 도로변 3m 건축선을 제외하고 남겨진 대지에 채워진 기하학은 건폐율을 조율하면서 비건폐지를 품는 형상이 되었다. 이 형태는 다방향의 풍경을 담는 방식으로 다층적 시선이 공존하며, 특유의 깊이감이 기하학적 조형 언어로 표현된다.




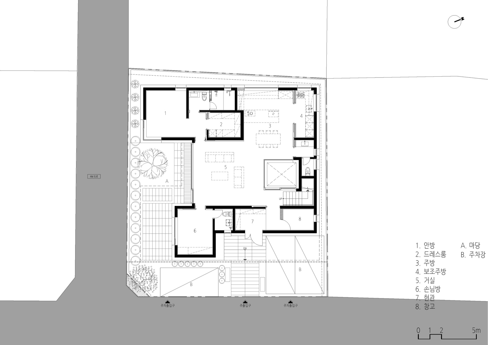
Plan_1F
여기에 입체적으로 내부화된 마당인 비건폐지와 테라스는 기하학 속에 만들어진다. 비건폐지는 개방적인 앞쪽 안마당과 폐쇄적인 뒤쪽 광장으로 나뉘고, 테라스는 2층과 다락으로 층층이 만들어 기하학 중심과 같은 축 선상에 배치된다. 높이와 깊이가 서로 다른 마당의 배치는 일상과 이어지면서 주변 풍경으로 확장되는 프레임으로 작동한다. 층마다 다른 거리감의 풍경은 여러 시점의 풍경으로 일상 속에 펼쳐진다.




Plan_2F

Plan_Attic
삼대의 삶과 풍경의 연결체
우리 삶으로 들어온 풍경은 하나의 시점과 여러 시점이 교차하며, 보는 사람의 시지각적 체험과 실제성을 모호하게 만든다. 일상의 움직임으로 풍경은 매 순간 새롭게 인지되는데, 비워진 공간이 거주자와 중첩되면서 기억과 시간으로 채워지는 것이다. 심향재 속 삶의 기하학은 하나의 방향성을 가진 것이 아니라, 다방향적이고 다층적인 시점이 끊임없이 재구성되며 변화하는 풍경 집으로 만든다.◼︎




















