


높은 옹벽 위에 자리한 대지를 처음 방문했을 때 눈앞에 펼쳐진 하늘을 넋을 잃고 바라보았다. 이 하늘을 담아보자 했던 마음은 자연스레 기본 개념으로 연결되었다. 또한, 하늘뿐 아니라 기존 주택 곳곳에 깃들어 있는 가족들의 삶이 남긴 흔적들도 소중하게 느껴졌다. 당사자가 아닌데도 아쉬운 마음이 컸다. 소중한 추억을 남겨주고 싶었지만, 임대용으로 신축되는 프로젝트라 여의치 않았다. 물리적인 흔적을 남기지는 못하더라도 건축주의 기억 속의 옛 주소라도 남기고자 했다. 그 의미를 담아 '하늘'을 뜻하는 불어의 'Ciel'과 주소지 '102-2'를 조합해 <Le Ciel 1022>란 제목으로 건축주에게 첫 PT를 진행했고, 결국 건축물의 이름이 되었다.



Elevation
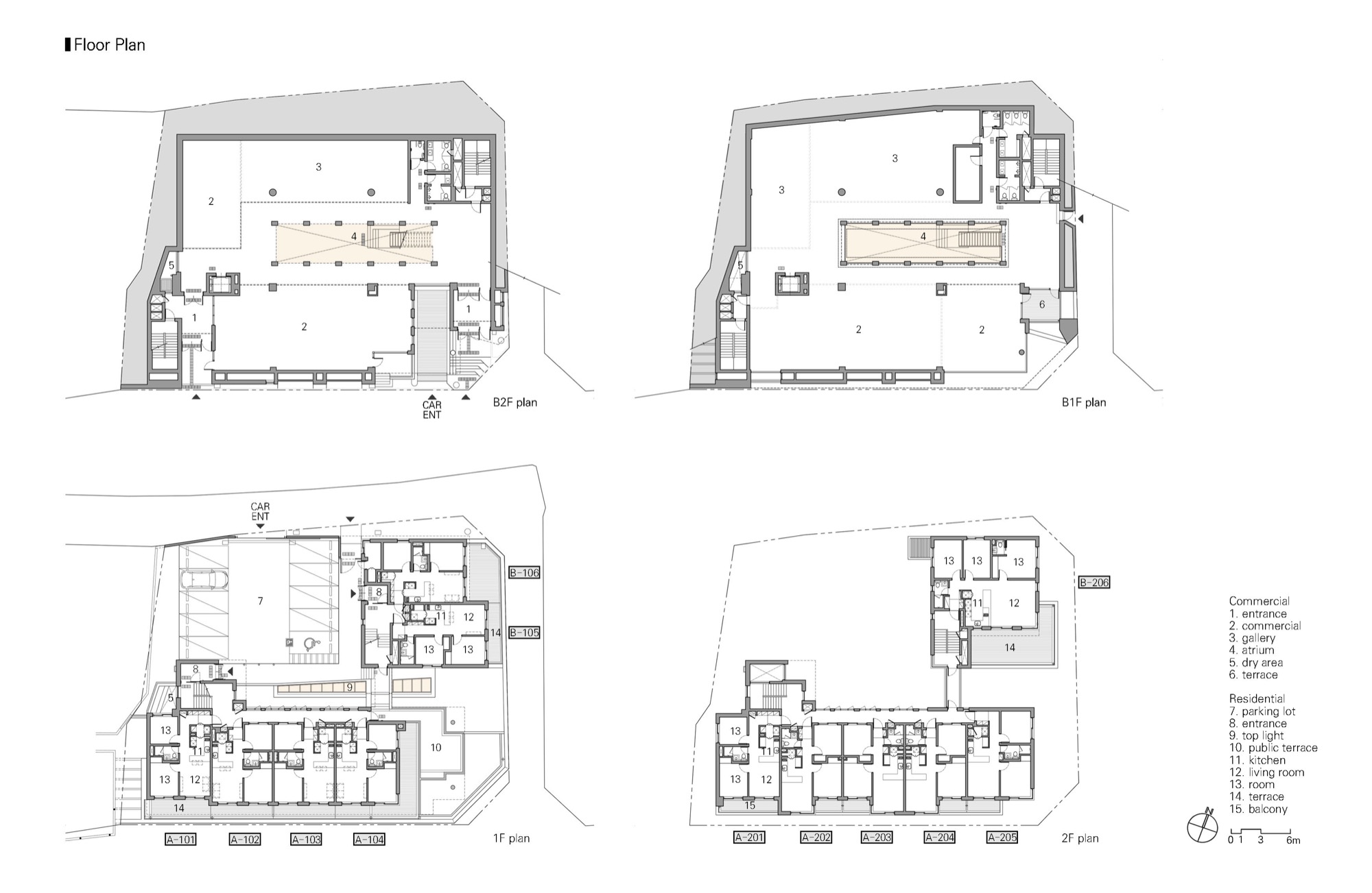
상업지와 주거지의 변곡점
대지 남쪽의 도로는 이태원로와 남산 소월길을 연결하는 도로로 주변 상업지역의 영향권 안에 있다. 반면 대지를 기점으로 북쪽으로는 저층의 고급 주거지가 형성되어 있다. 10m에 이르는 두 도로의 높이 차이만큼 주변 분위기도 많이 달랐다. 남쪽 도로변과 접한 지하에는 작은 아트리움 중심으로 mall을 계획하여 주변의 상업적 성격을 받아들였다. 북쪽 도로로 진입하는 지상에는 남서쪽 도로 면을 따라 임대용 주택을 길게 배치하여 주변 주거지와 적절한 공간을 유지하도록 하였다. 상업지와 주거지의 변곡점에 있는 건축물은 지하와 지상의 공간이 각각 도로의 환경을 받아들이며 주변에 적응하고 있다.




Section
아트리움
300평 조금 넘는 대지에 아트리움은 과해 보일 수 있다. 하지만 일부 출입구만 허용된 지하공간의 한계와 소규모 공간에 대한 임대 수요를 고려하면 최선의 선택이었다. 아트리움으로 폐쇄적인 구조를 극복하고, 자체적인 구심점으로 임대 공간이 활성화되도록 계획했다. 2개 층에 이르는 임대 공간의 중앙부를 비워 각 단위 공간이 하나로 연결될 수 있도록 했고, 방문자에게 선택의 즐거움을 제공하고자 하였다. 지하의 폐쇄성을 상쇄시키고 인상적인 하늘을 공유할 수 있도록 아트리움 상부에 길쭉하게 천창을 설치하였다. 천창은 계단 방향으로 좁아지며 내부의 움직임과 같은 방향성을 띤다.



Site Plan
12개의 주택
북쪽 도로를 끼고 고급 단독주택이 들어서 있어 주변의 조망권과 프라이버시를 존중하며 조망과 채광을 확보할 필요가 있었다. 남북으로 다단 조성된 기존 대지를 그대로 이용하여 낮은 부분에 주동을 배치했고, 주변과 충분한 높이차와 거리를 유지하며 대지 내 다른 동과의 간섭도 최소화하였다. 12개의 주택을 남측과 서쪽 도로면을 배치하여 모든 주택이 하늘과 별을 가까이할 수 있도록 하였다. 또한, 12개의 주택에 12 별자리를 부여하였다.



Plan
땅을 딛고 날아오르다
급격한 경사지다 보니 자연히 하늘을 올려보게 되고, 땅과 하늘 사이에 자리한 건축물을 바라보게 된다. 그래서 <Le Ciel 1022>는 땅을 딛고 하늘을 향해 날아오르는 이미지를 담고 싶었다. 거친 사비석을 벽돌처럼 쌓은 기단부는 구축적(tectonic) 이미지를 따뜻하게 표현하고 모카크림의 매끈한 상부는 경사지붕을 더하여 가볍게 비상하는 이미지를 형상화한다. 이렇게 하늘은 프로젝트 전체를 관통하는 중요한 주제로 반영되어 있다.

















