



Elevation

Elevation
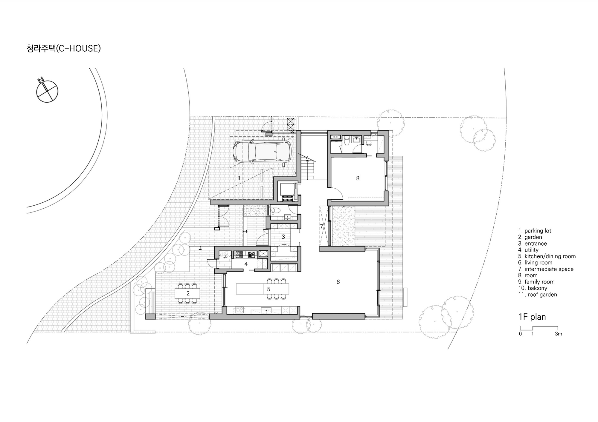
모난 대지의 극복
청라 더 카운티는 베어즈베스트 골프장 안에 있는 주택단지로 용지만 분양하는 방식으로 조성되었다. 초기 단지 내 주택들은 비슷한 대지 모양과 면적으로 공간 구성이나 외관이 정형화됐었다. 대상지는 단지 쿨데삭*의 시작 부분, 부채꼴 대지와 직사각형 대지의 연결부에 자리하여 평행사변형에 가까운 모양이 특이했다. 또, 호수를 끼고 단지 전체를 조망할 수 있는 좋은 위치에 자리하고 있다.
*쿨데삭: 주로 주택단지에 설치되는 도로의 유형으로, 단지 내 도로를 막다른 길로 조성하고 끝 부분에 차량이 회전하여 나갈 수 있도록 회차 공간을 만들어주는 기법을 말한다. 출처: 건축도시연구정보센터 AURIC 용어사전




Section
본래 아파트 펜트하우스에 거주하던 건축주는 단독 주택에 대한 기대감이 남달랐다. 기대도 있었지만, 높은 곳에서 펼쳐지는 파노라마 같은 전망에 익숙해져 수직으로 분산된 단독주택이 좁고 답답하게 느껴질까 우려하기도 했다.
대지의 특이점과 건축주의 라이프스타일을 고려하니 주변 대지와 다른 접근이 필요했다. 도로 측으로 모나게 뻗어 버려질 수 있는 공간을 적극 이용할 방법을 고민했다. 단순히 개방된 내부 공간에서 외부 공간으로 시각을 확장하고, 자연스럽게 내부와 외부가 이어질 수 있도록 공간의 연결을 고려하며 설계를 시작했다.
전면 폭이 좁은 대지의 양쪽 면은 옆 주택과 간섭이 생길 수 있기에, 전면으로 주요 실들을 배치하고, 앞마당을 최대한 확보할 수 있게 배치했다. 좁은 전면 폭으로 건축주가 원하는 프로그램을 앞쪽에 모두 배치할 수 없었기에, 도로 측으로 길게 뻗은 곳에 후정을 두고, 연결할 수 있는 프로그램들을 길게 배치하여 대지 모양을 극복했다.




Section
매개 공간
평면을 보면 가운데 매개 공간을 중심으로 공간들이 단순하게 연결된 것을 볼 수 있다. 매개 공간은 보이드와 계단을 통해 상하부를 연결하고, 외부 공간을 주택 내부 깊숙이 끌어들이며 시각적, 공간적 여유를 제공한다. 또한, 현관을 들어서며 처음 마주하는 공간으로 하늘과 맞닿은 너른 초록의 풍경은 일상의 긴장을 풀어준다. 위로 열린 매개 공간의 개방감은 거실로 이어지며, 일렬로 배치된 식당, 주방과 앞뒤로 연결된 마당이 연출하는 중첩된 깊이감으로 전환된다.



Plan_1F
ONE THEME
한국인의 복잡한 라이프스타일은 고난도 프로그램을 요구한다. 프라이버시와 개방감, 자연과의 조우와 쾌적한 실내공간, 가족 간의 유대와 독립적인 공간 등 상반된 것들이 동등하게 요구된다. 고유 영역의 독립성을 확보하며, 유기적으로 연결해야 하고, 설비를 통한 제어도 충분히 고려되어야 한다. 주택 설계에서 평면 계획이 우선되는 이유다. 이로 인해 외부 형상은 단순한 내부와 달리 다소 복잡한 모습을 띄게 되었다. 단지의 관점에서 보았을 때, 개별 주택은 전체를 구성하는 요소로 가능한 절제된 모습으로 자연스럽게 어우러지길 바랐다. 이를 위해, 모카크림 한 가지 재료를 사용했다. 돌나누기의 변화로 절제된 위계를 형성하고, 수평적 프레임으로 하나의 흐름을 만들어 단지 안에서 존재감을 드러낸다. 수평적 프레임은 분절된 매스를 연결해 단순한 외관을 만들고, 해안가 특유의 낮게 펼쳐진 환경에 순응하게 한다. 또한, 외부 공간에 켜를 만들고, 앞뒤로 열린 내부 공간과 중첩되며 풍경에 깊이를 더한다.
한 가지 재료만으로 외관을 구성하고 있지만, 중첩된 공간의 깊이와 수평적 안정감, 목재 루버와 조화를 이루는 따뜻한 색감은 시간의 축적이 부족한 단지에 정서적 안정을 부여한다.

















