





Elevation
한창 뛰어놀 나이의 남자아이, 반려동물들과 양평에 자리 잡았던 젊은 부부는 인근 단독주택에서 살았던 경험을 바탕으로 가족과 반려동물들이 오붓하게 즐길 수 있는 새로운 집을 짓기로 했다. 프라이버시가 확보되면서 초화류를 좋아하는 건축주가 정원을 마음껏 가꿀 수 있는 집을 꿈꿨다.
집을 짓기 위해 찾은 대지는 양평 시내에서 조금 떨어진 한적한 단독주택단지 끝자락이었다. 능선에 자리해 전망이 좋은 곳이었다. 의욕적으로 주변 건축하는 곳을 찾아갔으나 첫 단추는 순탄하지 않았다. 신축을 위해 계약했던 시공사와 건물을 계획하고 지하 주차장까지 지었지만, 이어지는 건물계획 구상 단계에서 소통에 문제를 느꼈다. 원하는 집이 지어지지 않을 것 같은 불안감에 결국 새로운 건축사사무소와 다시 계획을 해보기로 했다.






Elevation

Elevation
계획할 때 가장 신경 써야 했던 부분은 이미 조성되어있는 주변 건물들, 지하 주차장의 관계를 고려하면서 요청사항을 반영하는 것이었다. 프라이버시 확보를 위해 도로와 맞닿은 북쪽과 동서쪽을 벽으로 막고, 기능적으로 필요한 창은 입면과 평면의 '틈'안에 제한되도록 했다. 단층으로는 넓은 마당과 원하는 공간을 모두 충족하기 어려웠기에 일부 기능을 2층으로 올려 마당 정원을 넓히고, 곳곳에 포켓 정원 공간을 계획했다.
북쪽에 현관이 있는 집은 주요실들을 남향에 배치할 수 있는 장점이 있다. 건물을 최대한 넓게 펼쳐 거실, 주방, 침실, 작업실, 복도 등 최대한 많은 곳에 건강한 남향 빛을 받을 수 있도록 큰 창호를 설치했다. 창문 위엔 처마를 계획해 겨울철 길게 들어오는 빛을 조절한다.


Plan_B1




Section

Section
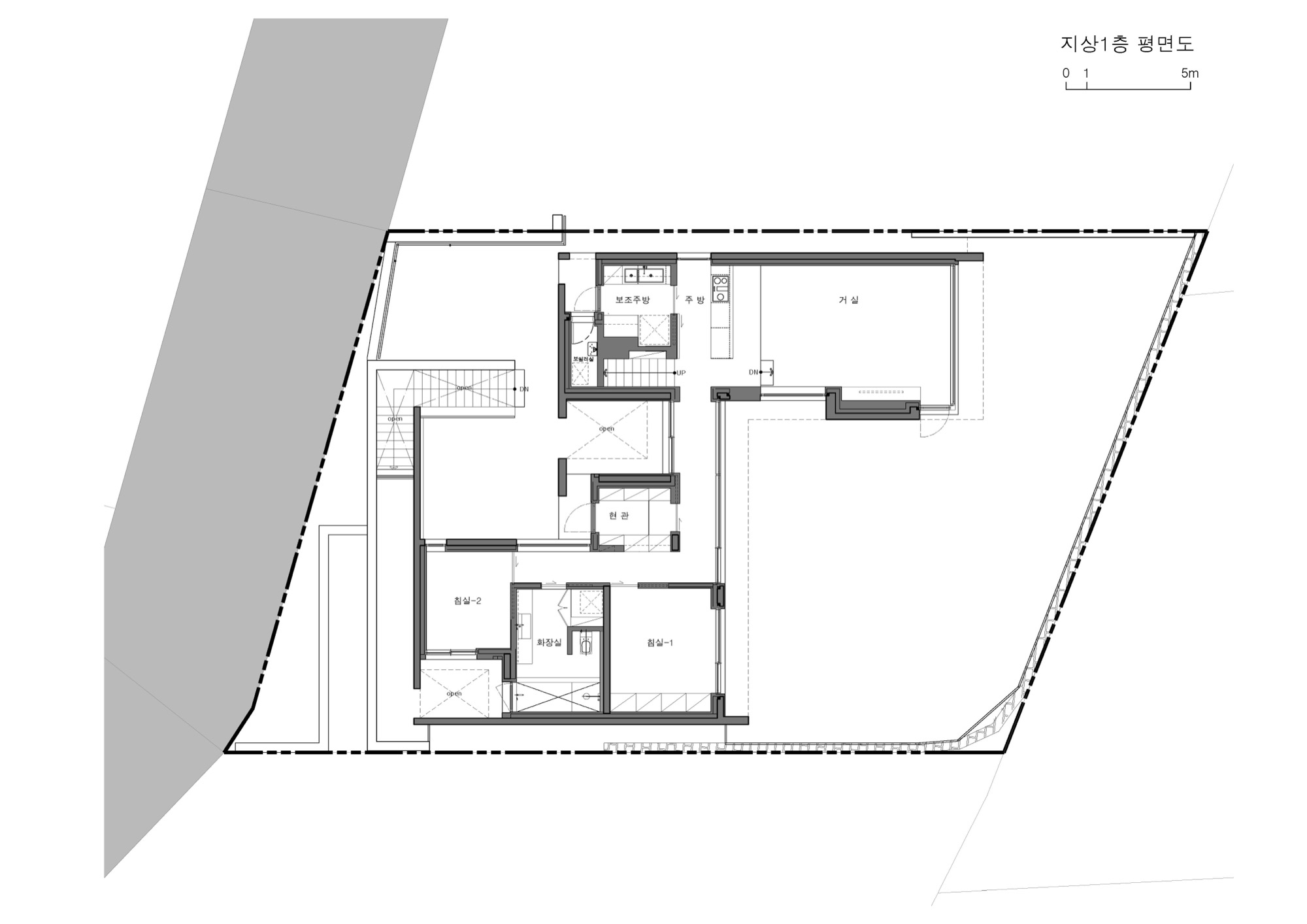
지상층은 중정과 복도를 중심으로 공용공간과 개인공간으로 나뉜다. 현관을 들어서자마자 마주하게 되는 투명한 복도는 남향의 빛을 중정까지 통과하여 끌어들이고, 단순한 동선이 아닌 내외부 공간이 중첩되고 다양한 방향에서 풍경을 즐길 수 있는 공간으로 활용되도록 하였다.





Plan_1F
하루중 가장 오랫동안 머물고 조망이 필요한 공용공간은 주변 건물들 사이의 틈으로 시야를 확보하고 주방과 거실공간 사이에 단차이를 통해 공간의 위계와 개방감을 느낄 수 있도록 했다. 주방은 아일랜드만 노출되어있고 지저분해질 수 있는 개수대와 소형가전, 냉장고 등은 보조 주방에 배치했다. 주방 옆 계단실은 덧문을 닫아놓으면 방문역할을 하도록 계획했다. 향후 자녀가 자라면 독립된 생활이 가능하도록 침실, 화장실, 외부 베란다 공간으로 구성되었고, 아이가 크는 동안은 부모님의 작업실로 사용하도록 했다.



침실영역은 남쪽에 있는 부부침실과 북쪽의 방 사이에 충분한 크기의 화장실과 세탁실을 같은 공간에 배치했다. 특히, 자녀 방은 건물의 틈이 만들어낸 중정을 바라보는 창호를 계획해 개방감을 느끼되 외부의 시선은 차단했고, 자녀 방을 여유 있게 사용하기 위해 붙박이장을 방 대신 복도 신발장 공간에 배치했다.




Plan_2F
다양한 건물들이 어깨를 맞대고 있는 마을에서 겉모습은 단단하고 우직해 보이는 건물이지만 그 안은 따뜻한 햇살이 가득한 여유가 흐르는 집으로 기억되길 바란다.


















