




Elevation

Elevation
설악산 옆에 자리한 스테이 ‘돌담’은 주변 자연환경과 조화를 이루는 돌담처럼, 단순한 주거 공간을 넘어 건축물, 사람, 식물 등 다양한 생명체가 공존할 수 있는 하나의 매개체로 상상했다. 주변 바위가 형성된 모습과 계절의 나무 변화로부터 영감을 얻어 지속해서 변화하는 자연환경의 특성을 디자인에 반영했다.





Section

Section
들어서는 길에 보이는 ‘돌담’의 앞 벽을 담으로 구성하여 대지의 경계가 자연스럽게 건물로 이어지게 했다. 동시에 주황색 게이트를 설치하여 게스트들은 문을 열고 닫을 때마다 경계의 다양성을 경험할 수 있다. 은은하게 사면이 기울어진 외관은 설악산 산지의 특징인 돌산의 모습을 닮아, 바라보는 시각에 따라 형태가 변화하는 느낌을 전달한다. 또한, 갈라진 돌 속에서 광물이 나오는 것처럼 패여 노출되는 외관의 표면들은 단풍과 같은 주황색으로 공간을 감싼다.






Site Plan
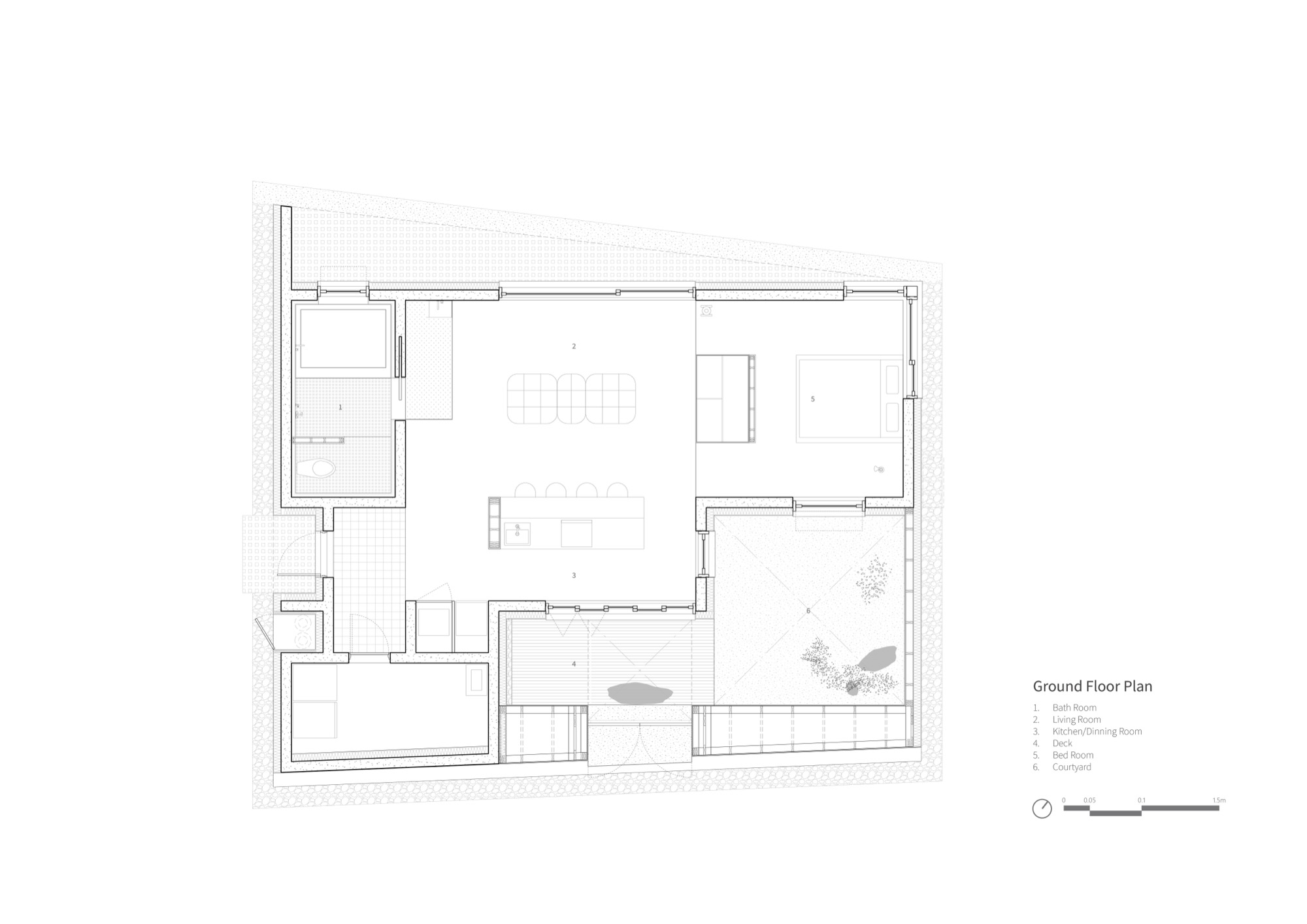
담 너머에는 4m 폭의 3개 칸이 2열로 총 6칸의 공간이 구성되며, 각 칸은 주거에 필요한 공간을 수용하면서도 개방적인 구성으로 하나로 연결된다. 남동쪽에 자리한 두 칸은 중정과 야외 데크로 조성하여, 빛과 바람 그리고 담 너머로 보이는 주변 나무들의 모습을 집 내외부에서 느낄 수 있게 한다. 주황색 게이트와 동일 선상에 있는 북쪽 큰 창문은 설악산의 전경을 담아내고, 자연과 공기의 순환을 자연스럽게 연결한다.





Plan_1F
‘돌담’은 건물의 자연 채광, 공기 흐름과 주변 자연환경과의 관계를 고려하여 풍경을 색다른 관점으로 바라보게 하고, 시각적으로도 흥미로우면서 평온한 휴식 공간을 제공한다.




















