



Elevation
'상일재'는 먼 미래 손주와 함께하는 삶을 그려보며 건축주가 지은 이름이다. 바깥채의 아들 가족이 안채의 부모와 적당한 거리를 유지하며 소중한 추억을 함께 쌓아가길 바라는 마음이 담겨있다. 대지는 남측의 막다른 도로, 동쪽의 인접지, 서쪽과 북쪽의 산림과 접해있다. 서쪽의 구릉지로 시각적, 공간적 확장이 이루어지고 산의 풍광을 감상할 수 있는 좋은 조건을 갖추고 있다. 장성한 아들과 서로의 취향을 존중하는 부부는 독립된 공간에 대한 욕구가 강했고, 평상시는 집약된 공간을, 손님 초대 시에는 넉넉하고 여유로운 공간을 제공할 수 있는 프로그램을 요구하였다. 지하주차장과 구릉지로 열린 지하의 취미 공간도 중요한 요구였다.



Elevation
공간의 변주를 담은 배치
서쪽 산의 능선이 제공하는 풍광은 훌륭했지만, 점점 뜨거워지는 여름과 아침의 기분 좋은 햇살은 무시할 수 없는 요소였다. 다행히 넉넉한 대지 덕에 서측의 풍광을 끌어들일 공간적 여유가 허락되었기에 남향 배치를 기본으로 하여 풍경을 담을 방법을 모색하였다. 도로로부터 긴 대지의 깊이를 이용하여 안쪽에 동서로 긴 매스를 배치했고, 바깥쪽에 짧은 매스를 두어 내외부 공간에 위계를 부여하였다. 두 개의 매스가 연결되며 외부 공간은 여러 모습의 마당으로 나뉘고 내부 공간은 마당을 받아들이며 변주를 보인다. 대문에서 현관에 이르는 진입 마당, 현관과 식당 사이 차 한잔의 여유를 즐길 수 있는 작은 마당, 거실 앞 주변 산세를 조망할 수 있는 시원한 앞마당, 그리고 구릉지와 완만하게 연결된 지하의 선큰 마당은 주택의 표정을 다채롭게 한다.



Section

Section
담백 그리고 여백
현관에 들어서면 작은 마당의 단풍나무를, 중문을 지나며 앞마당의 연못과 살랑이는 실새풀을, 거실로 다가가며 뒷마당의 벚나무를 조우하게 된다. 분리된 영역으로 길어진 동선이지만 여러 풍경을 받아들이며 시간의 흐름과 호흡하는 순간을 마련해준다. 마당을 가로지르는 연결 복도는 내외부의 바닥이 동일하게 마감되어 양측의 슬라이딩 도어를 개방하면 좌우의 마당이 하나로 이어진다. 담백하게 마천석과 라임스톤으로 Tone on Tone된 외관은 식재된 나무들을 돋보이게 하고 햇빛과 그림자, 빗방울의 인상적 모습을 발견하게 한다.



Site Plan
따로 혹은 더불어
도로측 매스는 주택 접근 시 주 공간을 뒤로 살짝 숨기며 앞에 나와 맞이하는 역할을 한다. 상대적으로 낮은 높이와 작은 규모로 겸손한 첫인상을 주며 주공간의 채광과 조망을 방해하지 않는다. 도로 측 바깥채에 게스트 룸과 아들의 영역이 별도의 현관과 계단을 갖추고 있다. 안채와 연결하는 복도에는 필요에 따라 공간을 분리할 수 있는 문이 설치되어 있고 설비는 별도 제어가 가능하도록 고려되어있다. 지하주차장을 통해 주로 출입하는 건축주는 아들 부재 시 안채만 이용하며 관리의 효율성을 높일 수 있다. 또한, 향후에는 독립된 영역을 형성하여 두 세대가 적당한 거리를 유지할 수 있다.
안채에 들어서면 조금씩 아껴 놓은 풍경을 아낌없이 드러내며 활짝 열린 개방감을 제공한다. 처마와 캐노피가 과도한 햇빛을 거르고 밀도와 수형을 달리하는 조경이 시야를 적절하게 집중 또는 제한하며 개방감을 보완한다. 아내의 영역인 2층은 천장의 높이 변화와 고창으로 풍성한 공간감을 느낄 수 있다. 지하는 실제로 가족을 맞이하는 공간이며 남편의 취미 공간이다. 지하주차장과 지상 출입구를 연결하는 선큰 그리고 취미 공간과 앞마당을 연결하는 선큰은 지하 공간의 답답함을 해소하고 지상으로 공간적, 시각적 연계를 강화한다.



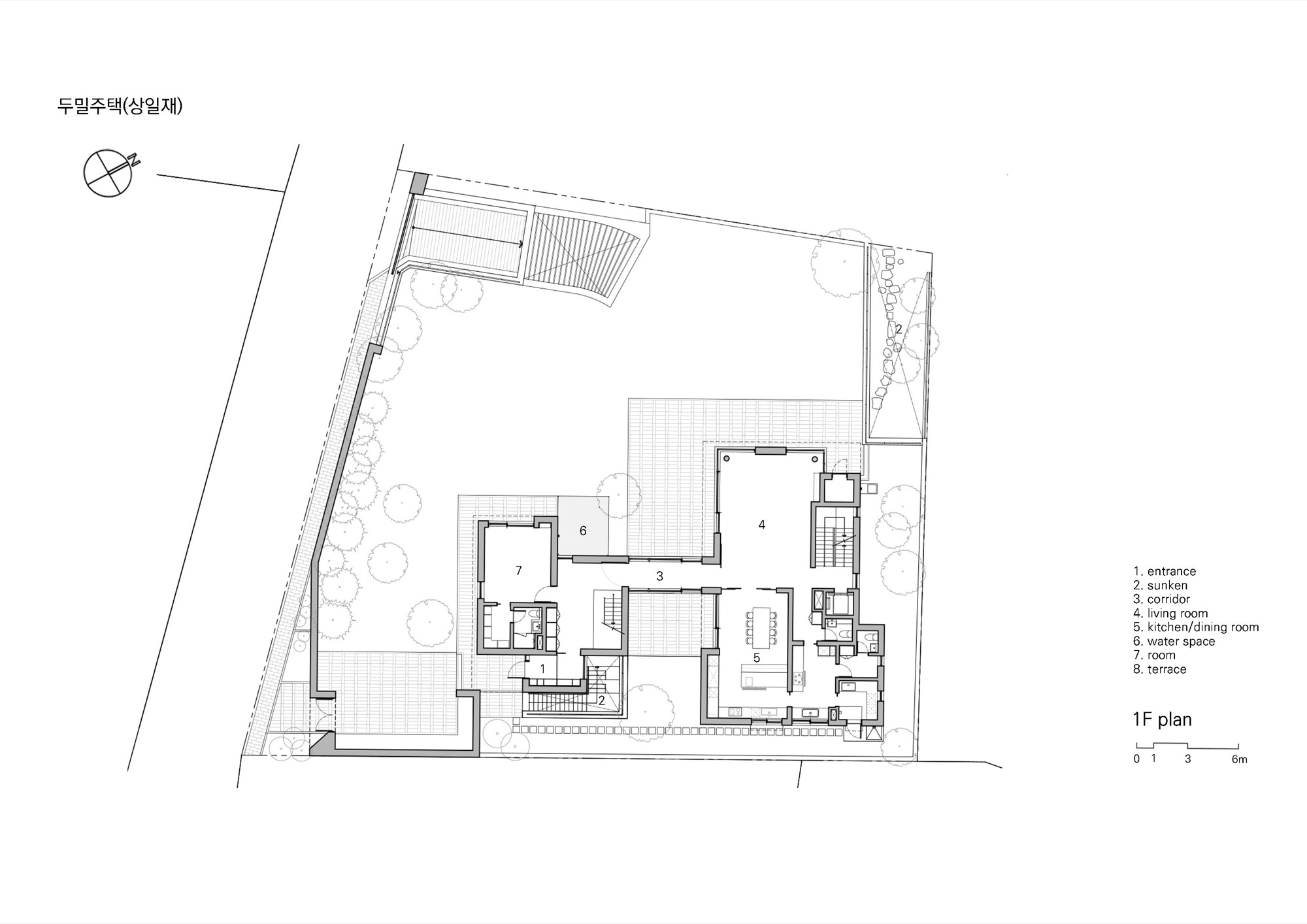
Plan_1F
대상지가 위치한 주택 단지는 설계 단계에서 단지와 조화를 이루고 주변 대지를 배려하도록 협의 과정을 거친다. 계획안은 협의 과정에서 두 개의 분리된 매스 사이로 시원하게 드러나는 산자락과 하늘을 인접지들과 공유할 수 있다는 이유로 바람직하다는 평가를 받았다. 두 개의 매스로 나뉘면서 주택은 두께가 얇아지며 내부공간이 파노라마처럼 펼쳐지고, 외부 공간이 내부 깊숙이 관입하며 주택뿐 아니라 단지 전체에 여백을 남긴다.

















