




Diagram

Elevation
2020년대 현재. 강남구 이면도로 변의 모습은 어떠한가? 저마다 사업성에 대한 욕심, 그리고 과도한 자기표현으로 완성된 도시풍경에서 질서라고는 찾아보기 힘들다. 사업주의 목적을 달성하면서도 무질서한 가로변의 이미지를 개선하는데 일조하려 노력하였다.





Section

Section
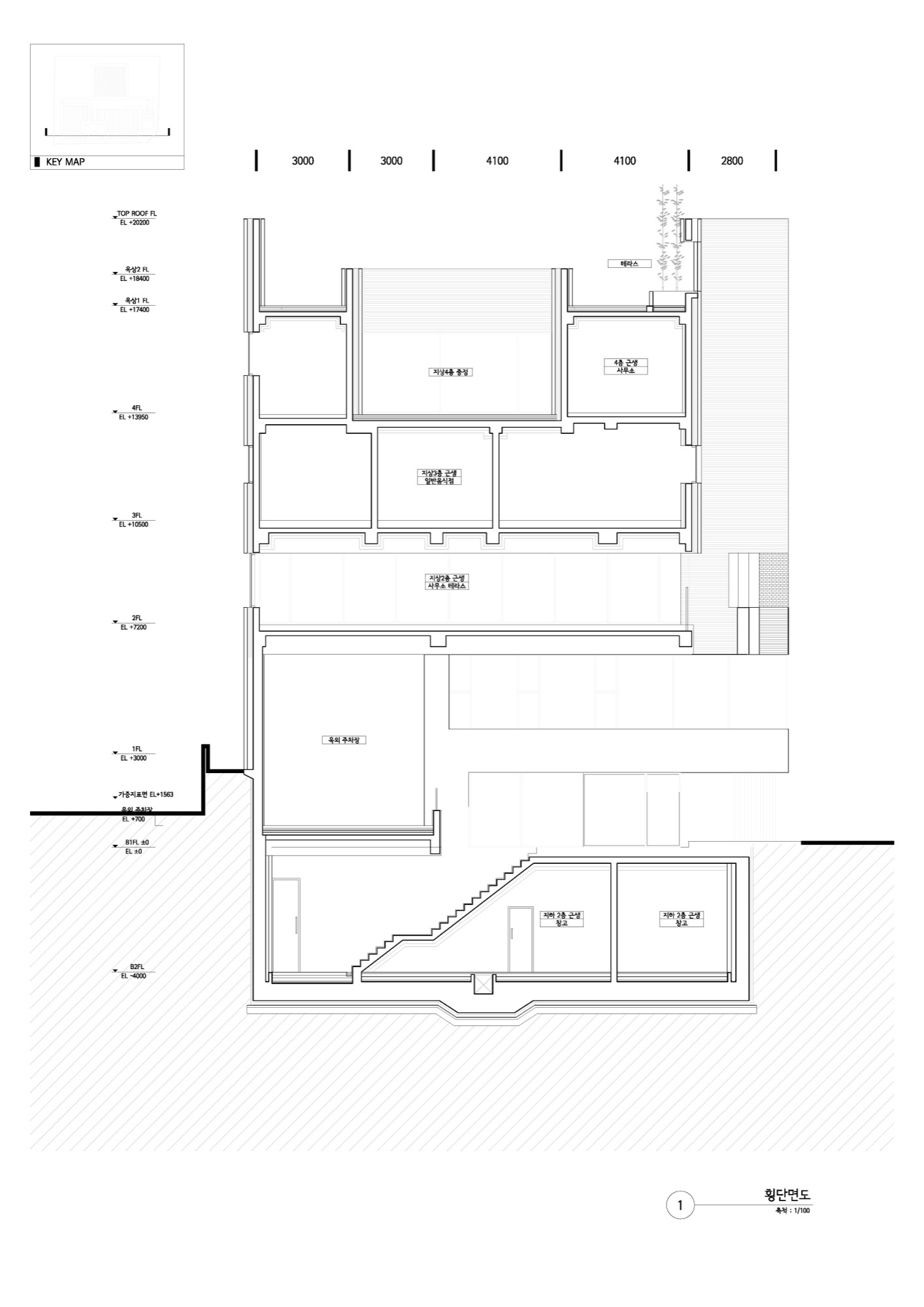
강남구 역삼동에는 지형의 특성상 대지 내의 고저차로 진입도로에 접한 상가가 지하 1층인 경우를 종종 볼 수 있다. 이 경우 지하층이 용적률에 포함되지 않기 때문에 건축물의 층수가 1개 층 더 지어지는 효과를 볼 수 있다. 이는 사업주에게 큰 이익이 되는 중요한 이슈이다.





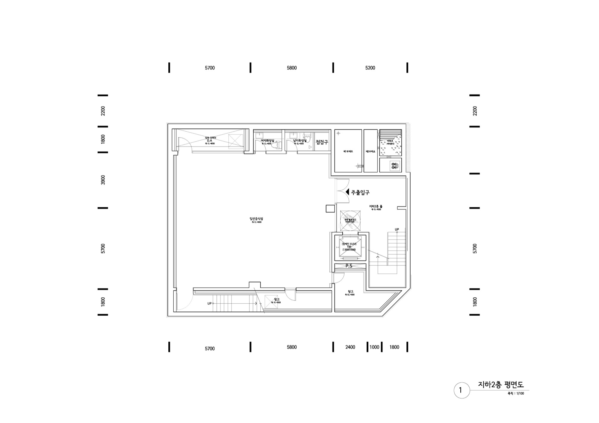
Plan_B2

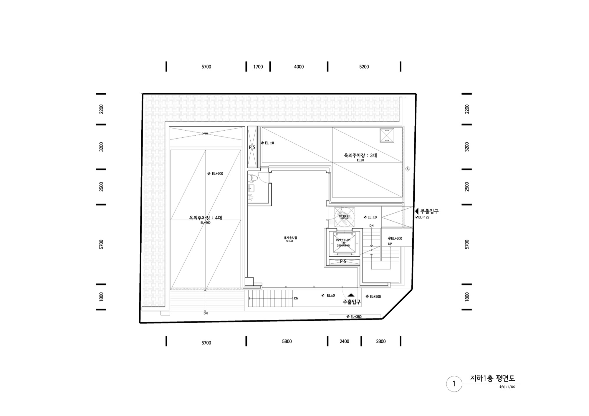
Plan_B1
앞의 내용을 포함하여 설계자가 목표로 하는 계획의 주안점으로는 다음과 같다. 첫째, 진입도로의 층이 지하층으로 인정받게 하는 것. 둘째, 일조사선에 영향을 받는 매스의 형태를 최대한 단순하게 정리할 것. 셋째, 재료 및 컬러의 선정, 디테일 처리 등을 통하여 절제되고 차분하게 디자인할 것. 설계가 진행되면서 위 목표들을 실현하기 위한 어려움이 많았다.




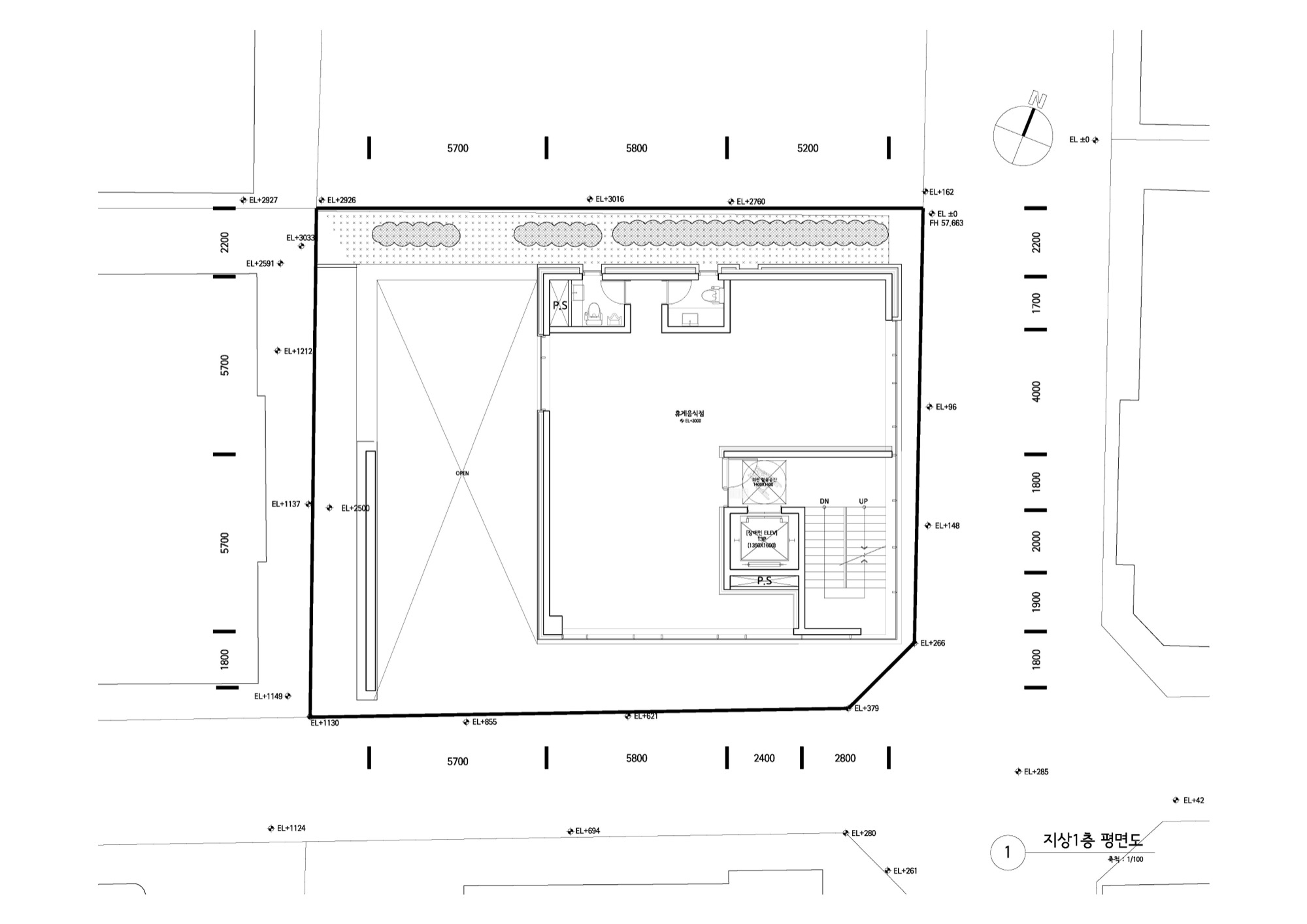
Plan_1F

Plan_2F
우선 현황실측 결과, 사업부지에 접한 인접 대지의 고저 차가 그리 심하지 않았고, 부설주차장 중 일부가 높은 레벨에서 진입해야 해서 더욱 어려운 상황이었다. 지하층 인정을 위해 층고를 낮추게 되면 높은 레벨 주차장 진입 높이가 확보가 안 되는 상황이었다. 이를 해결하기 위해 바로 위층의 매스를 비워내어 차량 출입구 유효높이를 확보하였고, 주차장 부분을 선큰으로 처리하여 인접 대지의 높은 레벨을 지하층 지표면으로 산정할 수 있게 하여 문제를 해결하였다.





Plan_3F
평면계획 시 층별로 가장 합리적인 위치에 코어를 배치하였으나 계단실의 위치가 건물 중앙에 놓이게 되어 건축물의 미관에 영향을 주는 상황이었다. 일반적으로 옥상 층에 계단 탑을 설치하지만, 본 프로젝트에서는 지상 4층 계단실의 중간에 내, 외부 공간의 경계를 두어 옥상으로 연결되는 계단을 외부계단으로 변환시켜 건물 가운데에 옥탑이 돌출되지 않게 하여 디자인의 완성도를 높였다. 외장재로는 유행을 타지 않고 따뜻한 느낌의 벽돌과 투명유리를 사용하여 절제되고 차분한 이미지를 주려고 노력하였다.






Plan_Roof
















