



전주시 끝자락 호성동. 군부대가 이전하고 들어선 신도시 옆에 예배당이 건축되었다. 인근에 화려한 고층 건물들이 빽빽하게 들어섰지만, 교회가 들어선 대지는 붉은 흙, 참나무와 대나무 숲 배경을 갖고 있었다. 교회 옆 황토밭에 자란 옥수수가 익어가는 한여름에는 멀지 않은 곳에 큰 도시가 있다는 것을 잊게 하는 장소였다.




Section
무채색의 작은 예배당을 건축하고자 했다. 사납고 요란한 자기과시 시대에 지치고 피곤한 영혼들에게 교회가, 교회건축이 어떠해야 할지 고민했다. 무채색의 심심함이 오히려 다가가기 편하고 친근할 거라 생각했다. 노출콘크리트와 검정 벽돌은 소박하고 검소한 이미지를 주기 위해 선택했다. 또한, 외벽과 내벽에 같은 재료를 사용해 시각적 통일성을 주었다. 회색 톤의 건물은 배경의 푸른 숲, 붉은 흙과 제법 잘 어우러진다.




Section
건물의 형태는 사각형의 기본 볼륨에서 1층 진입공간과 중정, 2층 테라스를 크게 파냈다. 각 면이 깊이감을 가지고 레이어를 이룬다. 기본 형태를 파내어 조각하는 건축방법은 단순하지만, 단조롭지 않게 깊이 있는 입면을 만들어낸다. 비워낸 부분은 내부와 외부의 전이공간이 되어 건물의 숨통을 트게 한다. 교회 마당을 꽃밭으로, 차를 마시며 담소하는 잔디정원으로 만들고 싶었던 바람은 또다시 다음 기회로 미루었다. 최대한의 주차와 관리의 편리함. 여전히 상대하기 쉽지 않은 강적이었다.




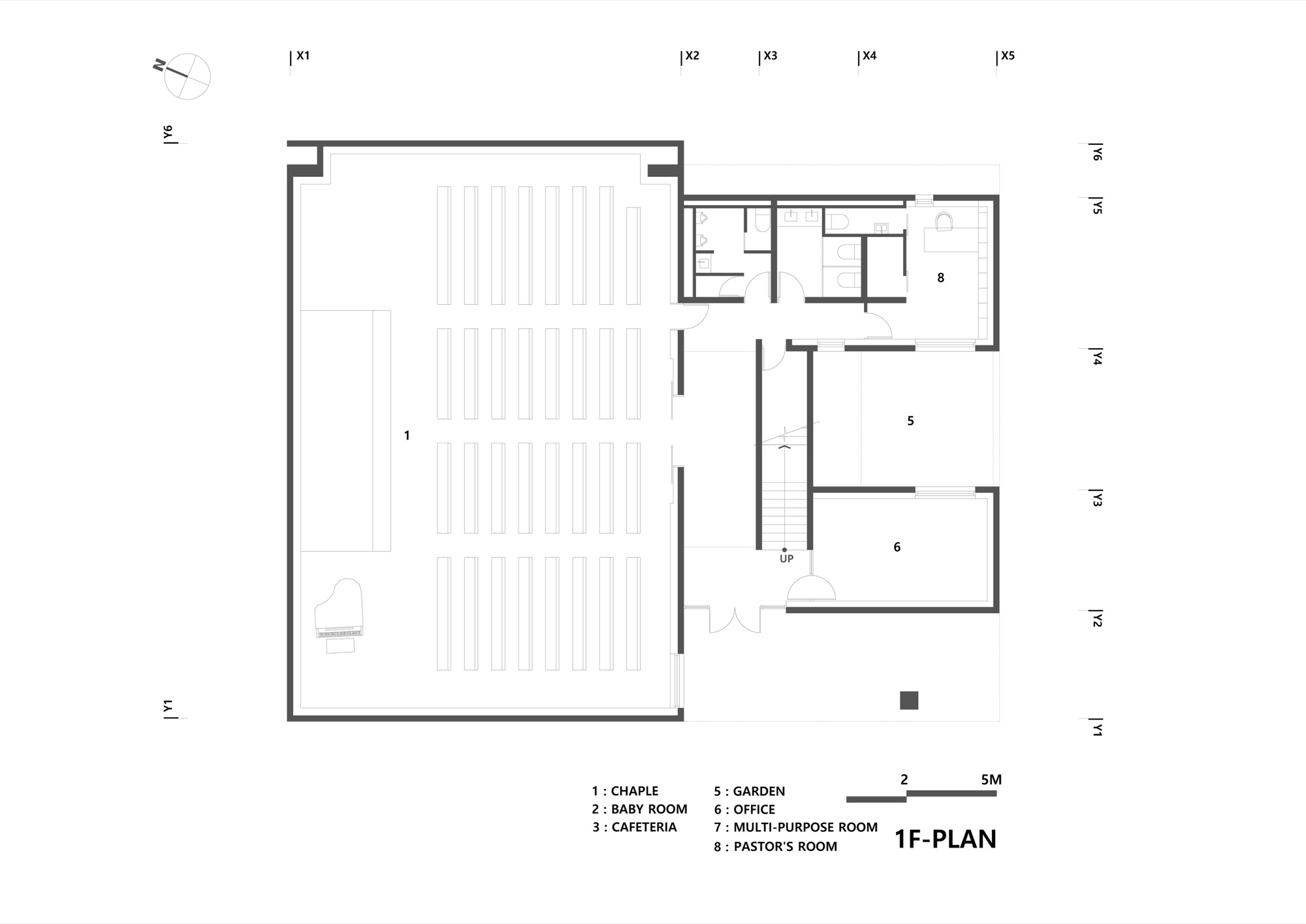
Plan_1F
예배실은 목재와 벽돌로 마감하여 차분하고 따뜻하게 계획하였으며 전면의 천창과 측면의 천창으로 스며드는 빛이 공간을 장식한다. 정해진 예산은 부족하고 예배실 면적은 줄이기 어려워 140여 평 연면적의 절반 이상을 예배실로 만들어야 했지만, 사무실, 식당과 카페, 회의실과 유아실까지 구석구석 알차게 사용하였다.




Plan_2F
스무해가 넘는 오랜 시간 건축설계를 해왔지만, 교회건축은 언제나 어렵고 또 즐겁다. 높은 층고와 장스팬의 구조를 다루는 솜씨. 하나의 건물 안에 큰 볼륨의 집회실, 식당, 카페, 유아실과 회의실 등 서로 다른 성격의 공간을 조화롭게 만드는 유연함. 의견과 취향이 다양한 많은 건축주를 설득해 한 방향으로 끌어가는 노련함, 까다로운 주변 이웃의 심사를 거스르지 않는 눈치. 이 모든 것을 습득하고 수련하는 일은 늘 어렵다.



하지만 소란스런 도시에 기도와 묵상을 위한 침묵의 공간을 구축하는 보람과 상대적으로 개구부가 적어 순수한 덩어리와 재료의 느낌을 표현할 수 있는 자유는 어려운 교회건축을 계속하게 하는 즐거움이다.


















