




Elevation
양평군 지평면 시내에서 마을 길을 따라 걷다 보면 숲과 맞닿은 그리 멀지 않은 곳에 단정한 반려견들을 위한 은빛 건물이 나타난다. 기존 건물을 새롭게 단장한 공간이지만, 항상 그곳에 있었던 것처럼 자리 잡고 있다. 낮은 석축과 그 위로 사람 키만한 나무 담장이 주변의 짙은 산록과 어우러지며 건물 주변의 경계를 흐리고, 가로로 단정한 건물은 주변에 위화감 없이 스며든다.




Elevation
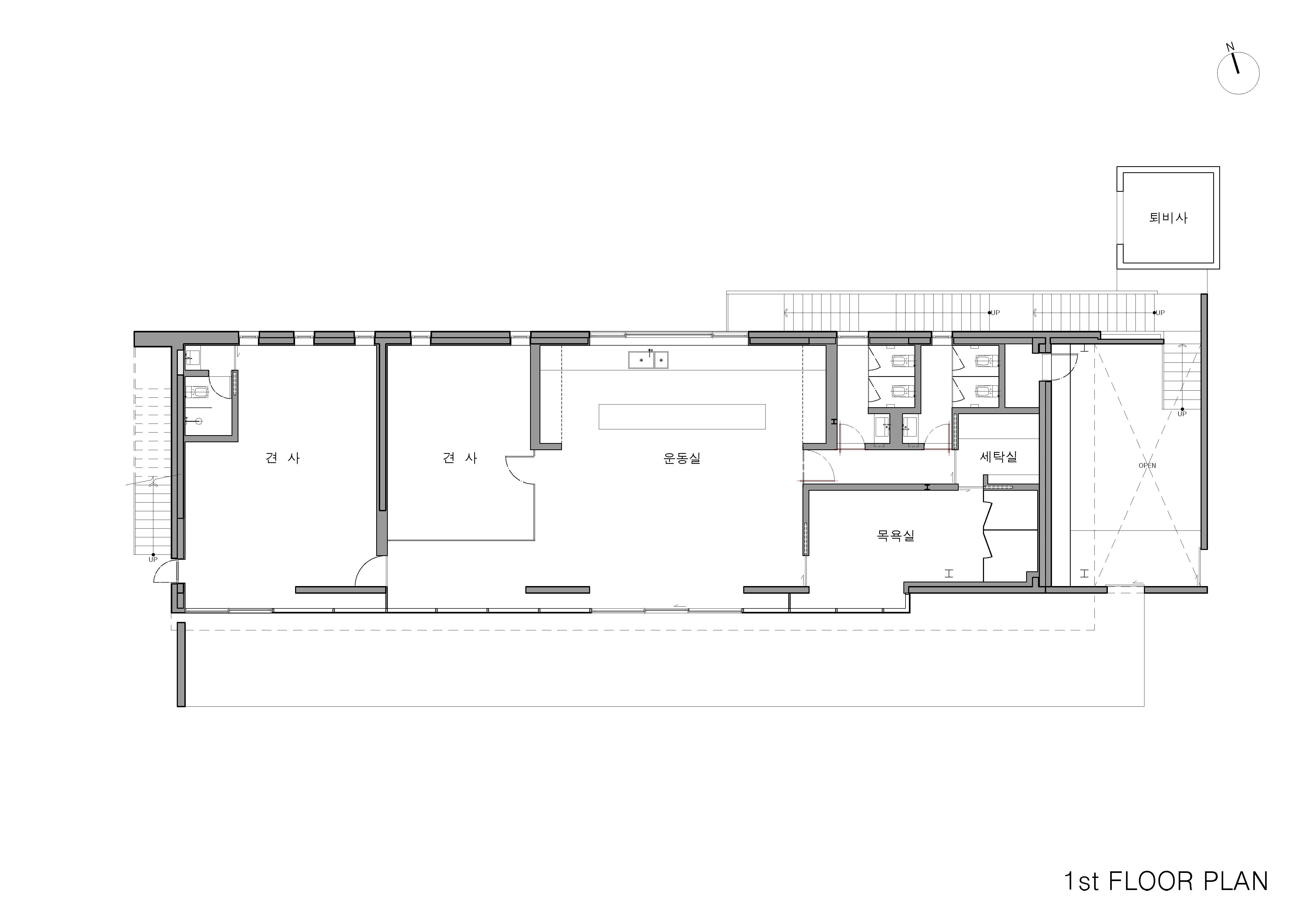
증축을 의뢰받고 찾아간 기존 건물은 다섯 개의 공간으로 구분되어 외부로만 이동할 수 있는 불편한 구조였다. 게다가 부실한 시공으로 2층 지붕 방수가 제대로 되지 않아, 비가 안 오는 날에도 1층 실내로 고인 물이 떨어지는 상황이었다. 건축주는 사용하기 불편하지 않고, 단열, 방수가 잘된 기본에 충실한 공간이었다. 운영 중인 공간이었기에 부족한 부분을 최대한 빨리 보완해 다시 사용하길 바랐기에, 증축 부분을 철골조로 시공하여 공사기간이 짧아질 수 있도록 제안했다. 두 개의 층으로 구분된 공간은 외부 활동이 많은 반려견을 위해 층별로 진입하도록 구성했고, 부족한 공간 일부를 증축하여 보완하기로 했다.





Section
본래 하나의 마감재로 되어있던 건물 외관은 유리, 콘크리트, 골강판, 나무 네 가지 재료를 층과 기능에 맞춰 직관적으로 구분되게 적용했다. 외부활동이 많은 1층은 전체를 창으로 계획해 감시와 관리의 편의성을 고려했다. 대지와 맞닿은 1층 외부는 나무 담장을 둘러 주변의 간섭없이 산책, 교육 등 외부활동을 편하게 할 수 있도록 했다. 실내는 운동공간, 주방, 목욕실, 세탁실, 화장실 등의 공용공간을 두었고, 어린 강아지들과 임신한 반려견을 위한 공간으로 구성했다.





Plan_1F
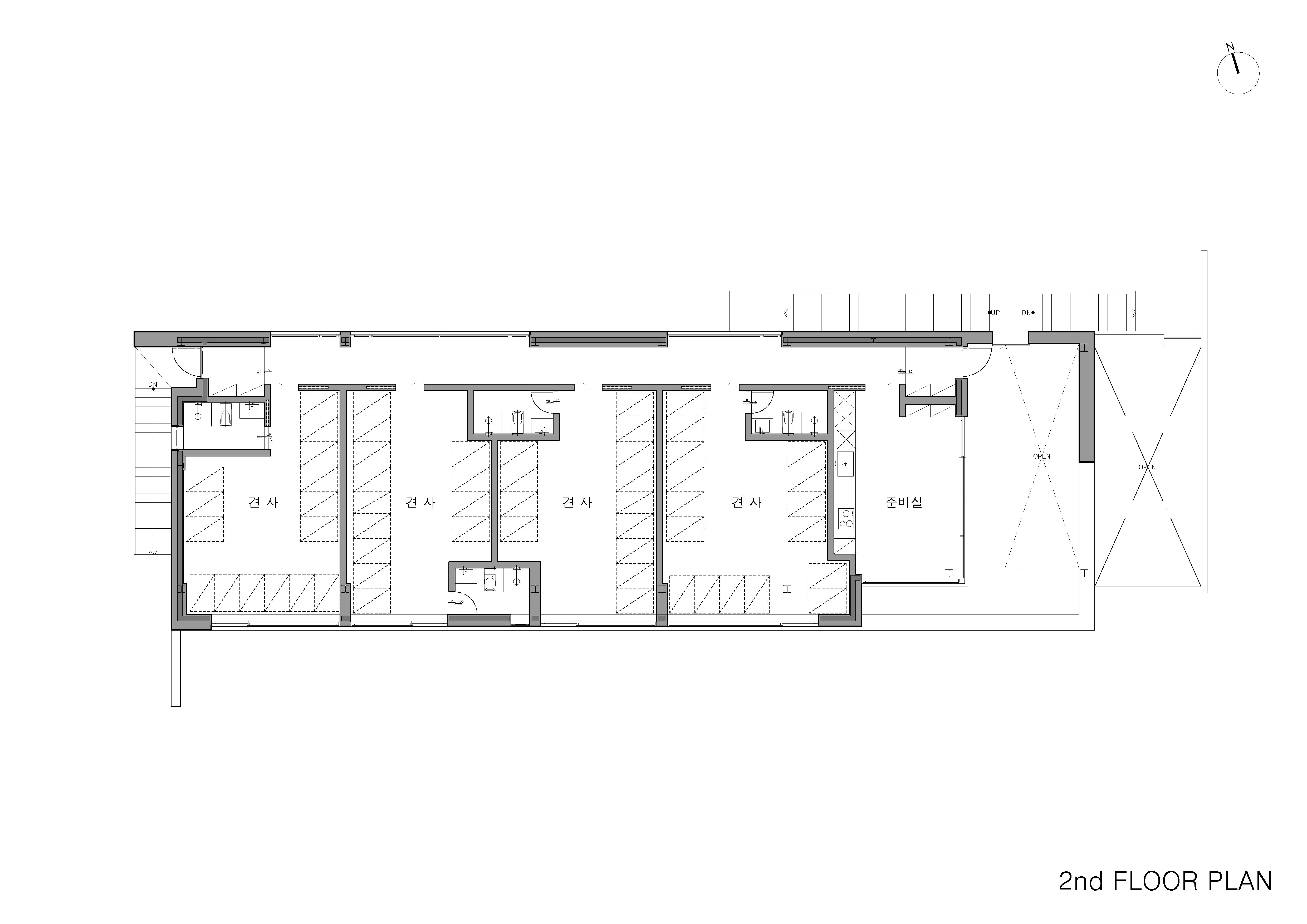
콘크리트 담장으로 둘러싸인 중정을 지나 외부계단을 통해 2층으로 올라가면 주변 자연이 파노라마로 한눈에 들어오는 외부 테라스가 나온다. 테라스를 거쳐 실내로 들어가면 실내공간은 식사준비를 위한 주방과 성견을 위한 네 개의 공간으로 구분된다. 골강판으로 둘러싸인 2층은 반려견을 돌봐주는 사람의 눈높이로 가로로 긴 창을 통해 채광과 조망을 확보했고, 반려견 눈높이에는 창을 두지 않아 편안하게 휴식할 수 있는 공간이 되도록 했다.





Plan_2F
동물관련시설 중 견사는 축사로 분류되어 신축 시에 주변의 동의가 필요하기에 한적한 동네에 자리할 수밖에 없다. 숲과 맞닿은 곳에 자리한 이 건물에서 오히려 자유롭고 행복한 휴식을 갖길 바란다.



















