




Elevation
식물과 건물도 인간과 같이 성장하고 늙어가는 과정을 거친다.
전주 팔복동, 한때 공장 노동자들을 위한 기숙사였던 건물들은 주변 공장들이 폐쇄된 후 같이 버려졌다. 오랫동안 방치되어 있던 만큼 건물은 손상되었다. 비를 막던 지붕은 하늘로 열렸고, 바닥은 땅으로 되돌아갔다. 쇠락해가는 마을과 함께, 사람들이 거주하던 방은 자연으로 채워져 식물들의 안식처가 되었다.



Before
Structure

Diagram

Site Plan
이러한 맥락에서 부지에 사람과 자연이 공존할 수 있는 공간을 만들기 위해 기존 건물의 벽과 지붕, 땅을 개방하고, 기능적 문제와 구조적인 제약을 극복하기 위해 분리된 건물들을 하나의 지붕 구조로 통합했다.





Plan_1F
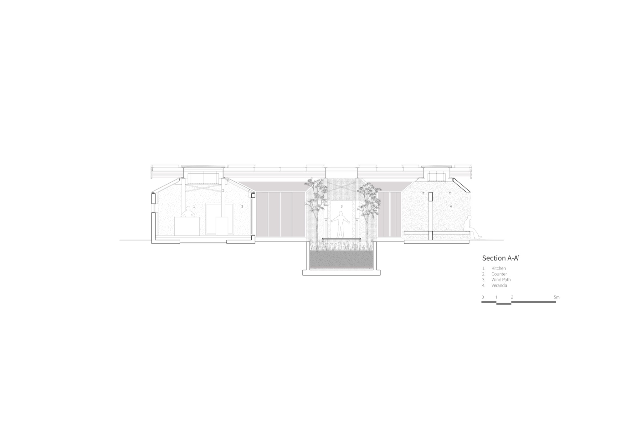
부지에는 세 건물이 있었다. 가장 북쪽에 자리한 두꺼운 건물은 기숙사를 관리하는 가족의 주거지로 사용되었고, 가운데 3개 방으로 구성된 건물과 남쪽 4개 방이 있는 가느다란 건물은 공장 근로자와 그 가족들을 위한 숙소로 사용되었다. 그러나 작은 실들의 크기와 근접한 건물 간 이격 거리는 현대적인 프로그램을 수용하기에 적합하지 않았다. 카페 프로그램에 맞춰 벽과 지붕 일부를 체계적으로 철거하고, 새로운 기둥과 지붕 구조물을 설치하여 공기 순환과 자연 빛이 유입되는 환경을 조성했다. 이를 통해 자연을 건물에 담아내면서 사람들이 자유롭게 거닐 수 있는 공간을 만들었다.





Before

Section

Section
카페 카운터가 있는 북쪽 건물은 단열과 온도 조절이 가능한 유일한 실내 공간이다. 중간 건물은 양 옆면을 제외한 모든 벽을 철거하고 메탈 격자 벽을 설치해 빛이 통과할 수 있게 했다. 또한, 땅을 파내 선큰 정원을 조성하여 나무와 풀 사이를 걸을 수 있는 중정을 만들었다. 남쪽 건물은 내부 벽을 보존하고 가운데 건물과 공원을 마주하는 외벽을 허물었다. 외벽이 허물어져 외부가 된 공간에는 대청마루와 같은 공간을 만들어 주위 자연경관을 즐길 수 있도록 했다. 또한, 동쪽에는 기존 세 건물을 연결하는 하나의 통로를 두어 각 건물의 변화된 모습을 경험하며 이동할 수 있게 했다.




이렇듯 다방면은
茶房면
차(茶)와 음료를 판매하며, 사람들이 담소를 나누거나 쉬어갈 수 있는 장소를 제공하고
多房면
다양한 활동을 수용할 수 있는 많은 방이 있고
多方面
여러 방면으로 소통이 이루어지는 곳이다.




















