
사진
시공사




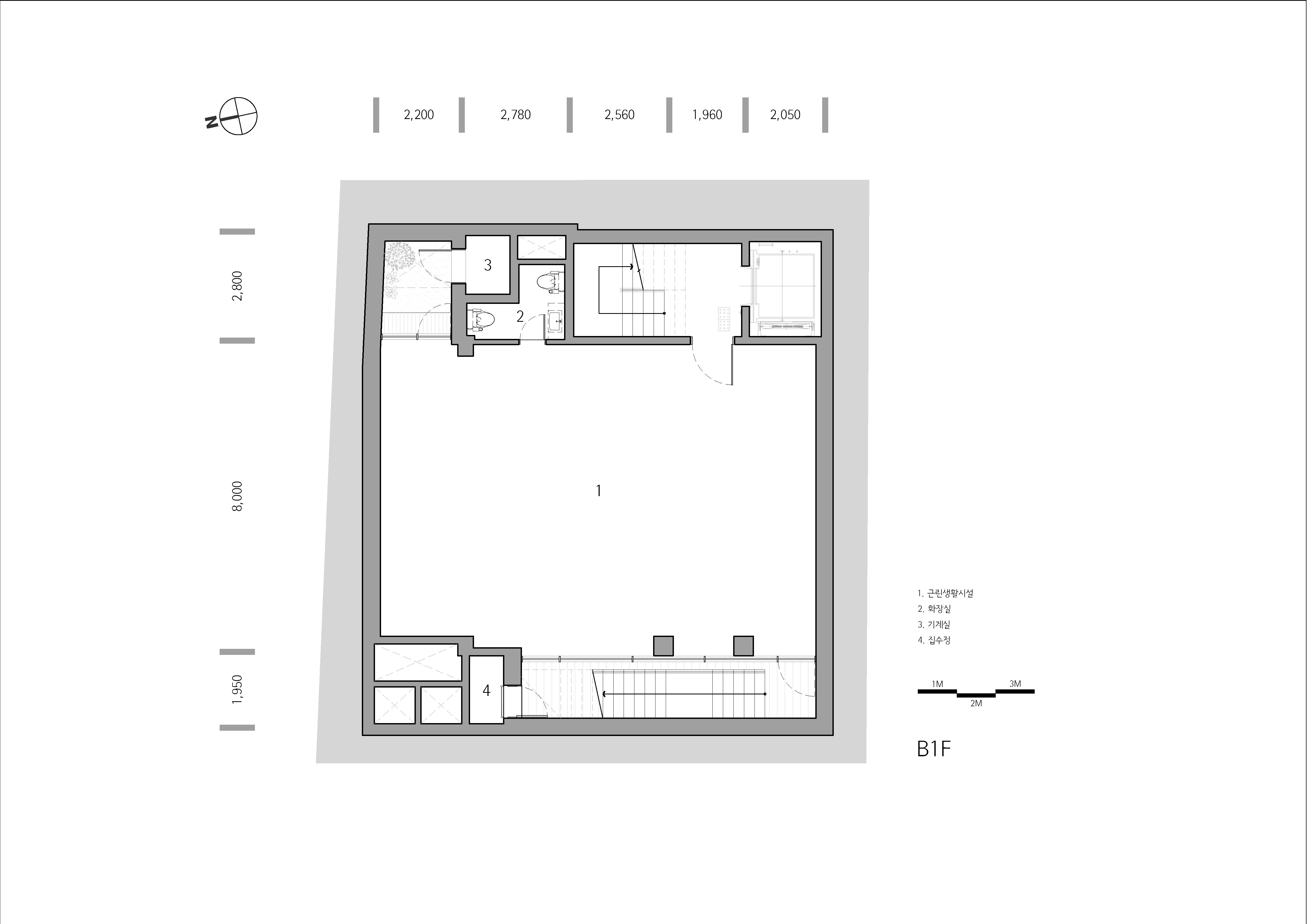
Plan_B1
경사가 심한 좁은 골목길 부지에 가볍게 부유하는 상자들을 교차하며 분절되도록 계획했다. 교차하며 부유하는 상자들은 모든 층에 크고 작은 마당을 만들어 중간 영역을 선사한다. 중간 영역은 거주자는 물론이고, 방문객과 골목길을 지나는 사람들에게도 풍성한 공간감을 느끼도록 한다. 일반적으로 내부와 외부로만 단절된 근린생활시설과는 달리 내 외부는 끊임없이 연결되며 소통한다. 정북일조사선 등 법규를 따르면서도 그 결과가 법규에서 기인한 느낌을 지우려고 했다.





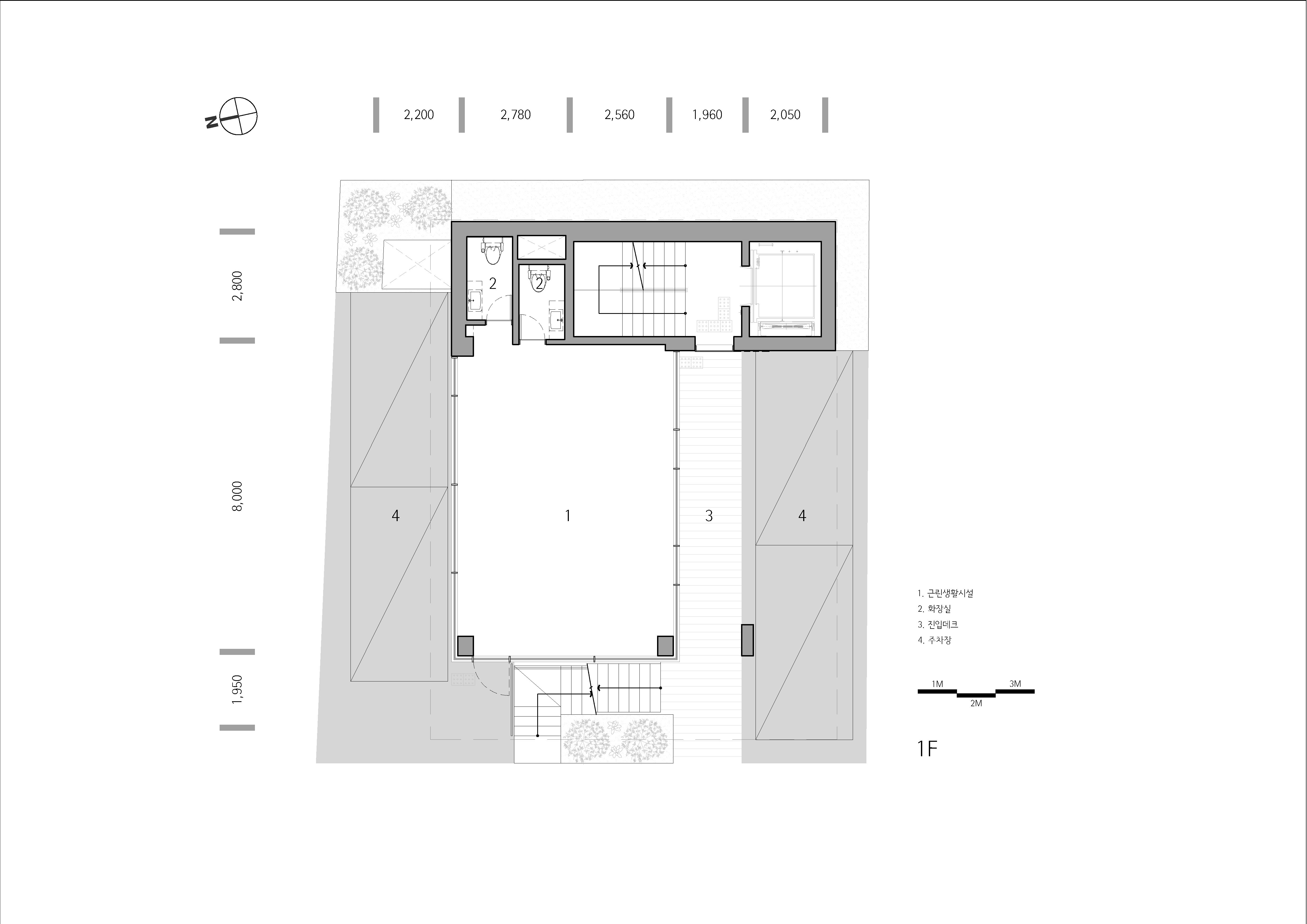
Plan_1F

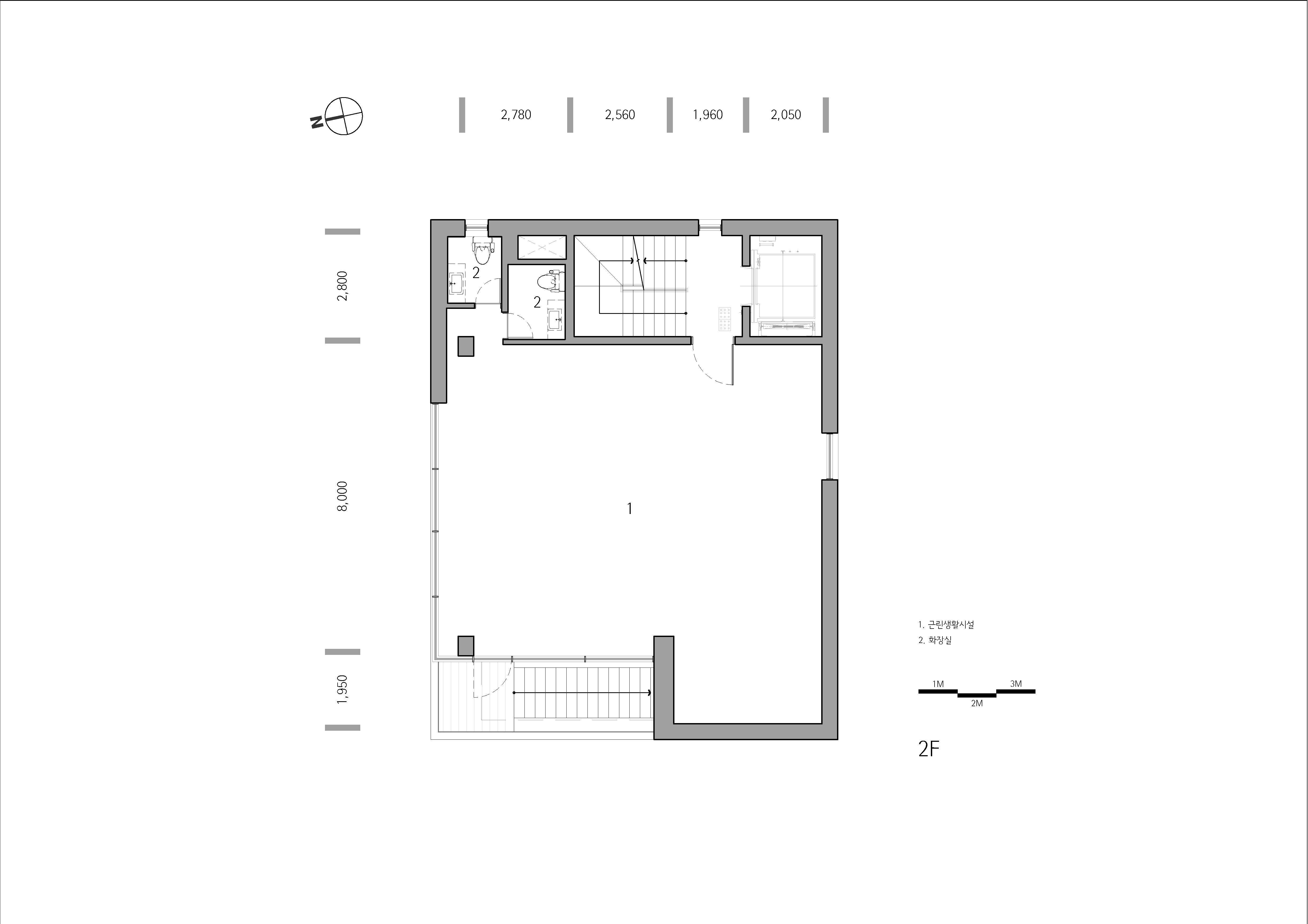
Plan_2F
대부분 도심 속 작은 상가 건물은 1층이 상업적으로 가장 중요하다. 그 결과 위 아래층은 다소 저평가되는 경향을 보인다. 청담동 골목길은 대로변이 아니고 상가가 작더라도 각 층에서 활성화되고 방문객들이 직접 찾아가는 경향을 보인다. 이에 1층뿐만 아니라 지하 1층과 지상 2층도 가로에서 직접 동선이 연결되도록 했다.




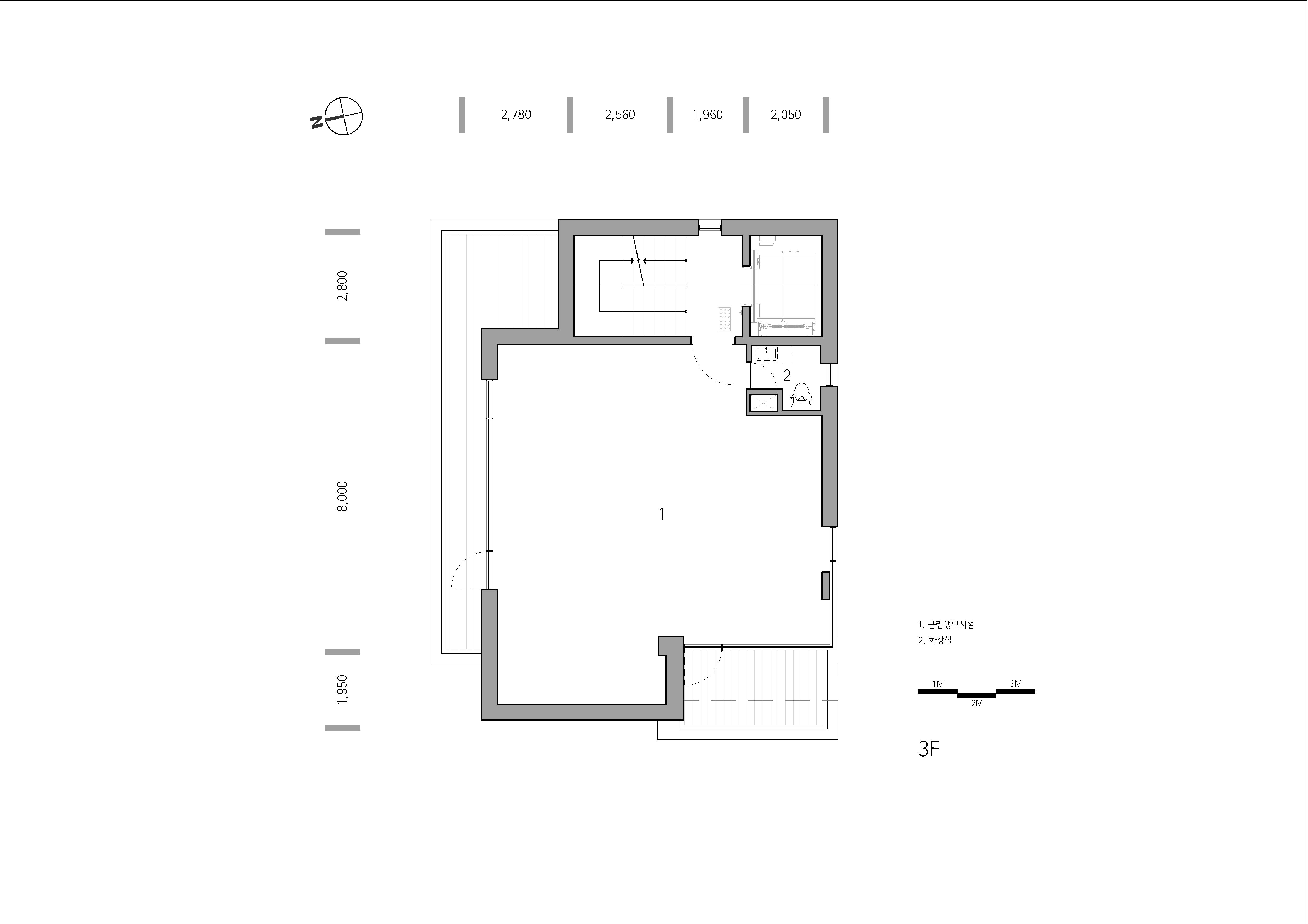
Plan_3F

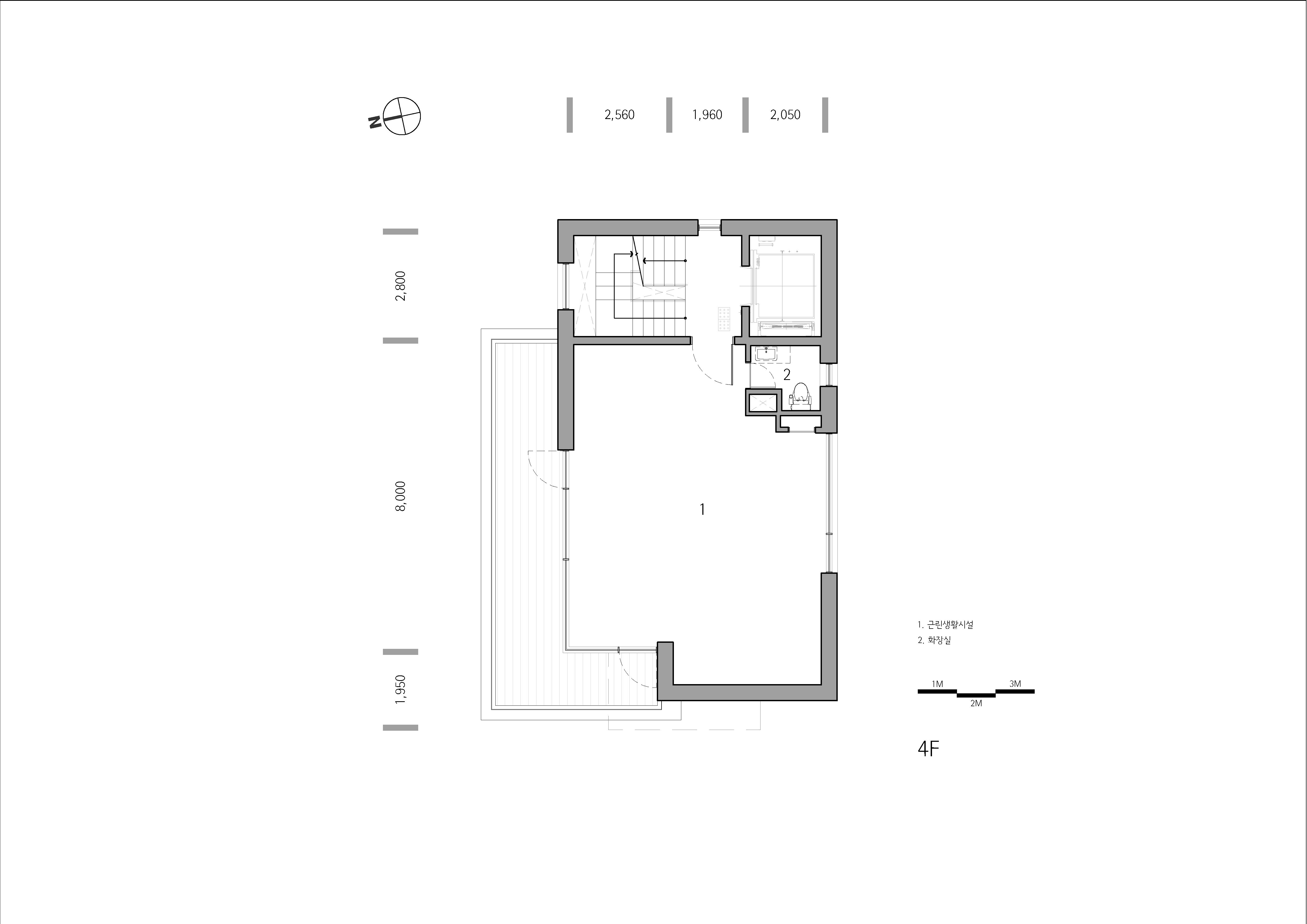
Plan_4F
1층은 자연스럽게 뒤로 물러서 작은 마당을 가지고, 상부로 기존 골목길의 경사와 자연스럽게 연결되는 2층 진입 계단 그리고 지하로 이어지는 선큰 계단이 마당에서 연결된다. 대부분의 상가 건물들이 피난 동선과 엘리베이터를 통해 상점으로 연결되어 공간적 경험이 없는 반면 이곳은 골목길이 확장된 마당과 외부 계단을 통해 공간적이고 입체적인 경험이 더해진다. 방문객은 본인의 움직임에 따리 달라지는 도시 풍경을 더하며 한층 깊고 다이나믹하게 출입한다.




Plan_5F
외부 마감재는 석재라는 무거운 재료지만, 리드미컬하게 떠있는 매스들로 가볍게 느껴진다. 이를 통해 건축물이 명확한 개념으로 보이도록 했다. 외부로 창문 없이 쌓아 올린 큐브들은 차별성으로 상업 건축물의 가치를 높이도록 했고, 도심 골목길에서 다양한 행위를 담을 수 있는 여백이 되고자 한다. 무표정한 골목길에 즐겁지만, 너무 과하거나 화려하지 않은 풍경이 되길 기대해본다.

















