



Plan_B1
구도심의 도시공간 재조직
오래된 구도심의 도시공간은 낡음과 불편함, 그것으로 야기되는 부족한 투자와 심리적 불안은 도심을 점점 위험지대로 만든다. 하지만 구도심이 가지는 투자 가치는 작지 않다. 이번 프로젝트는 낡은 도심에 숨어있는 투자 가치를 되살리면서, 낙후된 구도심에 새로운 변화를 만드는 두 가지 목표를 함께 가지고 시작됐다.




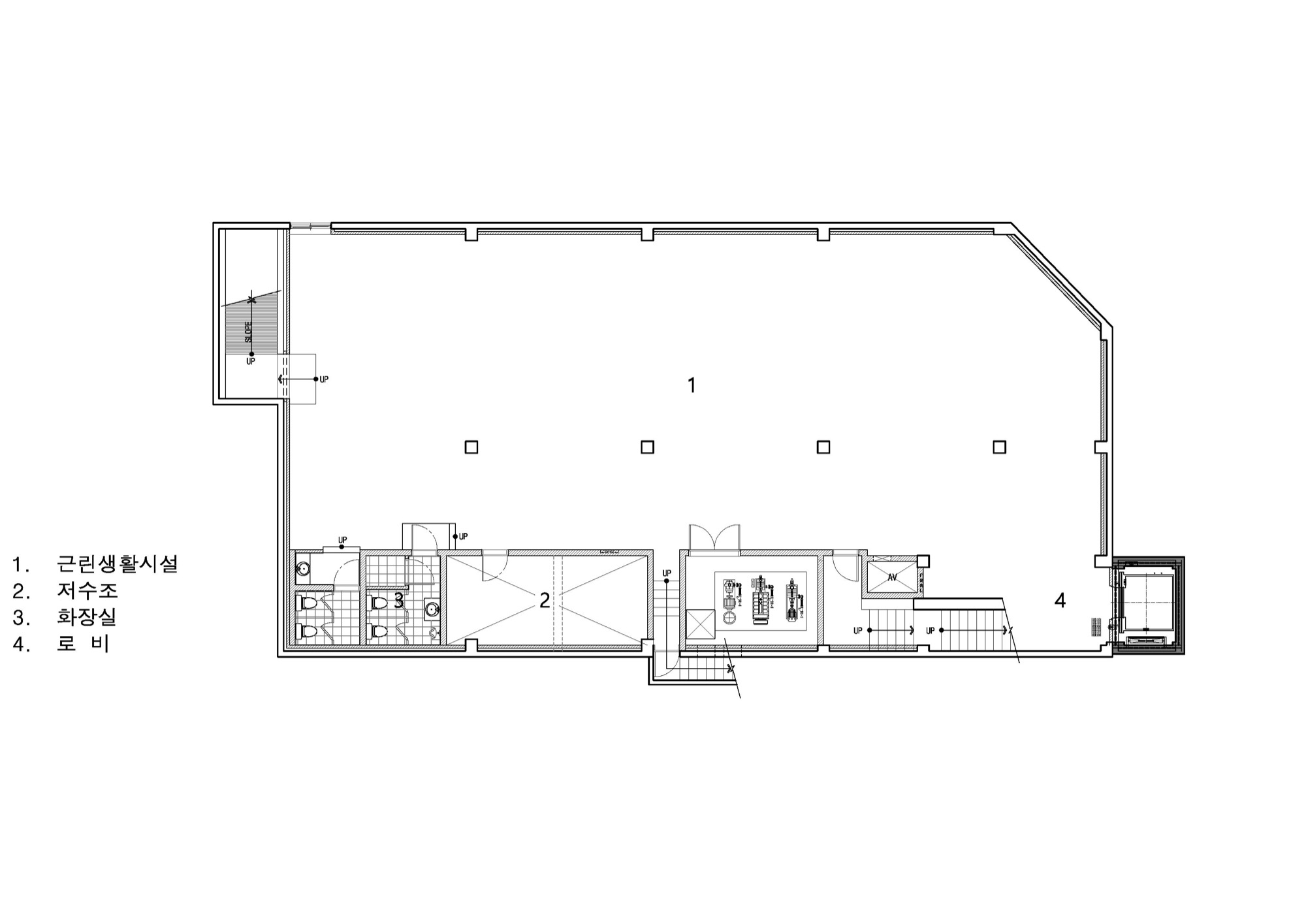
Plan_1F
리모델링을 이용한 법규 제약의 탈피
기존 건축물의 뼈대를 가진 상태에서 새로운 외피와, 수직동선(EV), 용적률을 고려한 증축이 이뤄져 있는 위의 건물을 유지할 때 가질 수 있는 상당한 이점이 있다. 기존 법규로 적용되어, 건축면적, 주차장 등 과거 건축물이 적용받는 사항에 대한 특례다. 특히 이번 프로젝트에서 가장 유리하게 적용된 점은 주차공간이었다. 신축으로 지었다면 10대 정도의 주차공간을 확보하기 위해 1층 상업공간의 많은 부분을 주차장으로 사용했어야 했지만, 증축 부분만 적용되어 최소한의 주차면적만 충족하면 됐다. 근린생활시설의 특성상, 주변 이웃 주민이 많이 방문하고, 이용객 대부분이 도보로 접근하기에 주차 공간을 최소화한다는 것은 밀도가 높은 도심에서 상업적으로 유리하게 적용되는 부분이었다.




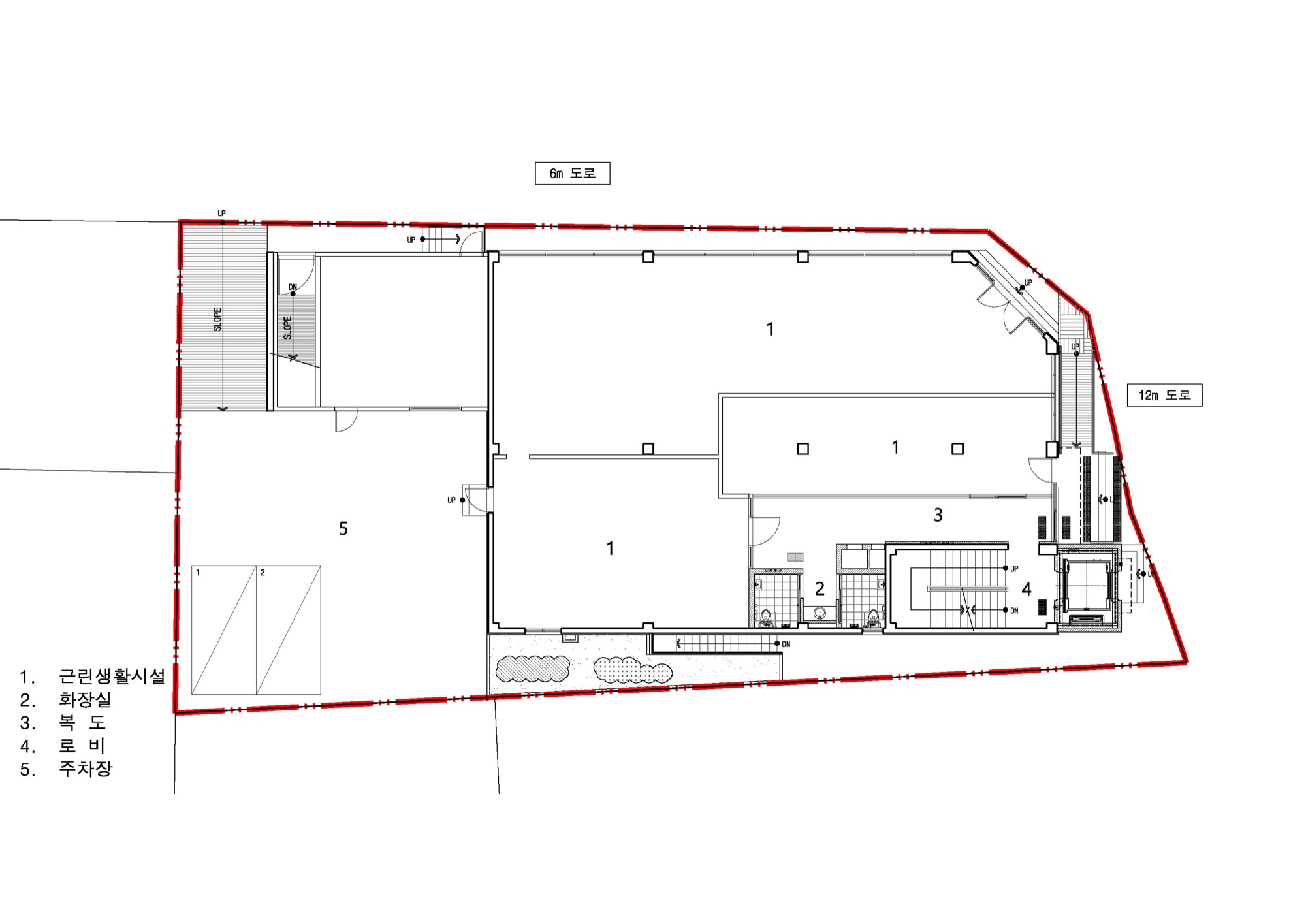
Plan_2, 3F
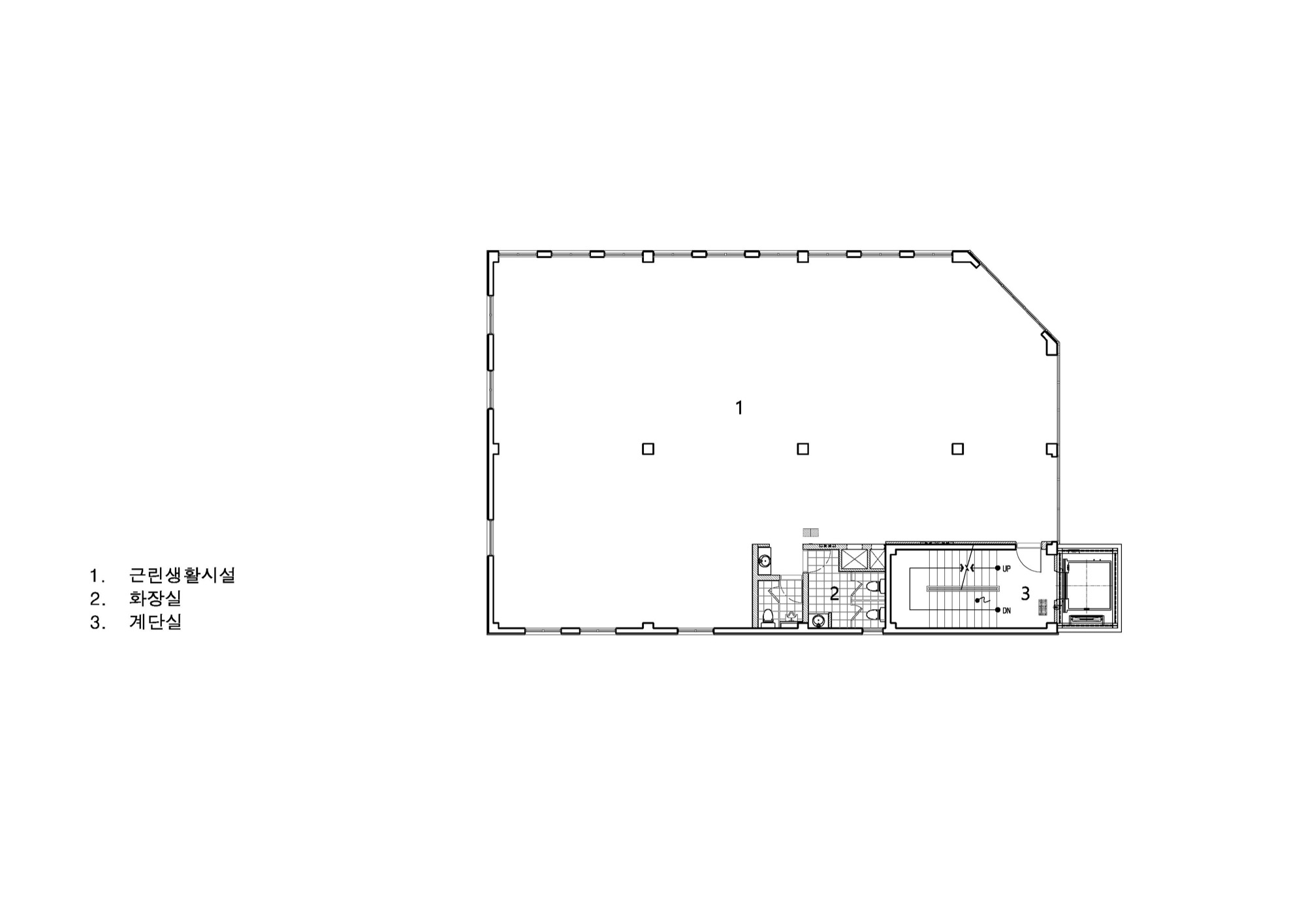
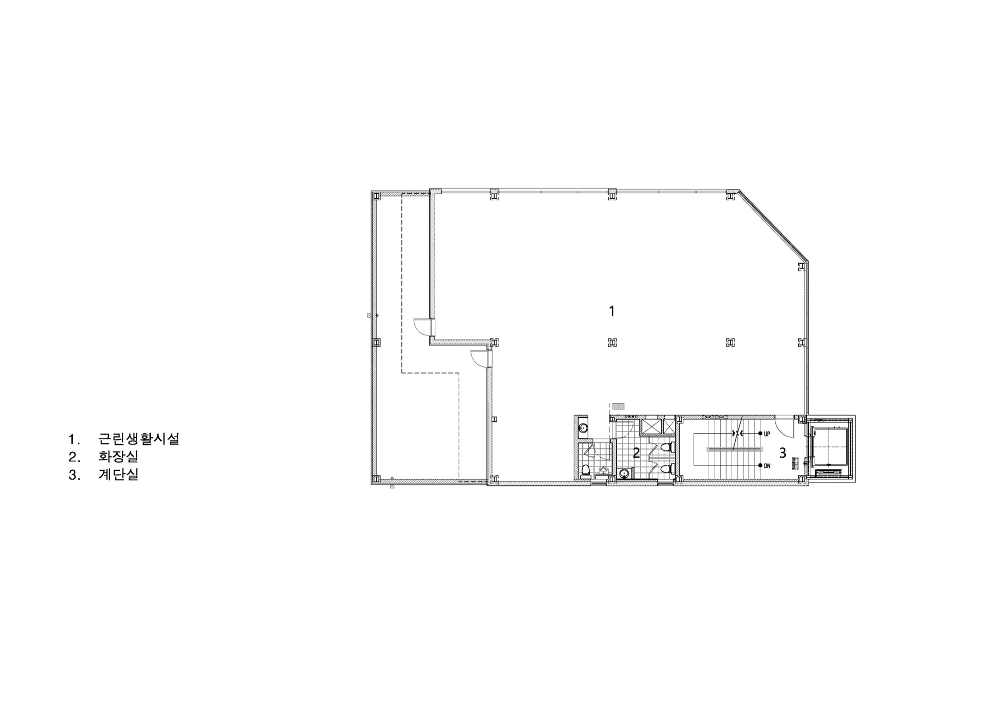
합리적으로 최소화된 공용공간과 편의성
외부에서 바로 이용할 수 있는 엘리베이터는 '원하는 곳으로 바로 들어갈 순 없을까?'라는 생각에서 시작되었다. 외부 엘리베이터는 바로 원하는 층으로 이동하게 해주고, 불필요한 로비 공간을 줄였다. 진입 동선 확보를 위한 로비는 큰 건물에서는 효율적이지만, 중규모 건물, 특히 상업성을 목적으로 하는 건물에서는 계륵과도 같은 존재다. 필요하지만, 관리의 어려움이 함께 따라온다. 관리 업체가 있다면 다행이지만, 중규모 건물에서 관리 업체를 두는 것은 쉽지 않다. 그렇기에 이번 프로젝트에서는 과감하게 로비 공간을 최소화하고, 도로에서 바로 출입이 가능한 전망용 엘리베이터를 설치했다. 엘리베이터는 길을 지나는 사람들의 시선을 끄는 랜드마크 역할을 하는 동시에, 불필요한 공용 공간을 줄이는 두 가지 역할을 한다.




Plan_4F










