



건축주는 종교를 기반으로 한 기독교 공동체다. 공동체 가족을 위한 공동주택 마을은 이미 지어져 있는 상황이었고, 추가로 예배와 공연을 위한 예배당, 아이들을 위한 교육시설, 친교를 위한 모임 공간 등이 건축주가 요구한 공간이었다. 건축주는 기존 교회에서 흔히 보이는 높다란 십자가 탑 같은 상징성 있는 설치물을 최대한 배제하고, 주변 자연경관과 어우러지는 교회, 마을과 함께하는 친숙한 모습의 교회를 원했다.




Section
건물이 위치한 여주시는 경기도긴 하지만, 수도권이라 하긴 조금 어려운 곳이다. ‘여주 쌀’이 유명할 정도로 논이 많고, 시내를 가도 높은 건물이 별로 없다. 여타 지방 도시들보다 서울과 비교적 가까울 뿐,자연의 정취를 그대로 지니고 있어 정겨운 곳이라 느낌이 드는 고장이다.
‘뉴라이프 처치’는 여주시에서도 비교적 외곽에 자리한다. 주변에 산도 많고, 논도 많은 말 그대로 자연 속에 파묻혀 있다 느낄 정도이다. 대지는 기존에 있던 산 일부를 깎아 조성되었다. 산이 남아있는 부분의 경사와 나무 등이 그대로 살아 있어서 대지를 휘감듯이 감싸고 있다. 그만큼 건물이 단독으로 서 있기보다 자연과 엮여 있다는 느낌이 강하게 든다. 주변 공동체 마을에서 자연스레 접근할 수 있는 곳에 자리를 잡았다.





Section
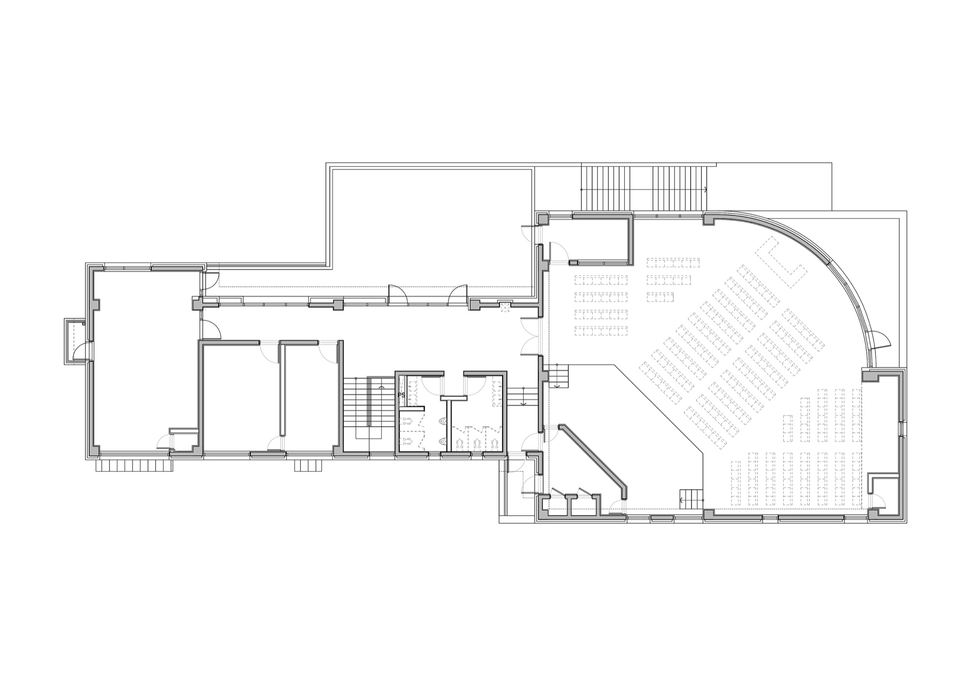
교회에서 가장 중요한 공간은 아무래도 예배당이다. 거의 모든 교회가 예배당을 극적이게 보여주려 한다. 뉴라이프 처치 역시, 예배당이 내외부에서 돋보이도록 많은 노력을 했다. 2층에 있는 예배당 부분을 둥근 형태로 처리해 조형감과 존재감이 드러나도록 했다. 그리고 무대 쪽 천장을 들어 올리고 경사로 처리해 내부에 높은 층고를 확보하여 공간감을 만들었다. 내부에서 볼 때 둥근 벽과 경사 천장, 여기에 달린 직선 형태의 간접조명, 일부 낮게 처리된 평천장 등이 어우러져 이 교회만의 특별한 공간감을 느끼게 한다. 예배당 전면과 후면에 정방형의 네모창, 테라스를 향해 열린 큰 창, 가로로 긴 고창 등, 다양한 형태의 창호를 계획해 여러 가지 빛이 스미는 밝은 예배당을 만들었다.
예배당 측면에는 목회실, 소예배실 등 부속 시설을 가로로 길게 배치했다. 복도를 중심으로 최대한 많은 소통을 유도했고, 복도 바깥쪽에 넓다란 외부 테라스를 두어 친교의 장을 만들고자 했다. 또한, 2층 외부 테라스에는 커다란 외부계단이 걸려있어, 1층을 통하지 않고 예배 공간으로 바로 접근할 수 있다. 교인들이 원활하게 소통하면서 1층 교육공간과 분리되게 계획했다.




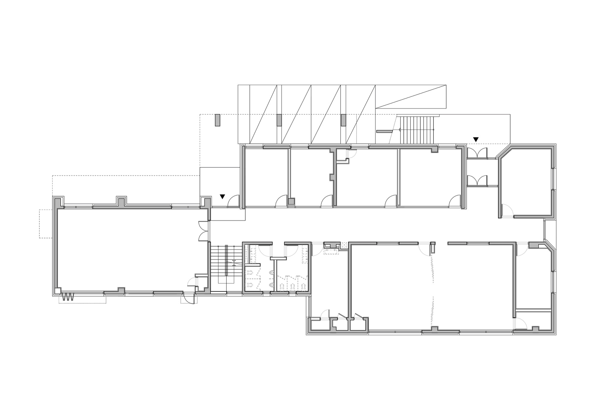
Plan_1F
1층은 아이들이 공부하는 교육공간이다. 한쪽은 여러 명이 함께 공부하는 세미나실, 반대편은 개별 책상에서 각자 공부하는 러닝센터로 이루어졌다. 어쩔 수 없이 중복도를 놓아야 하는 상황이었지만, 3m에 가까운 넓은 복도를 만들어 최대한 답답한 느낌이 들지 않도록 했다. 복도 끝에는 비교적 큰 크기의 도서관이 있어 아이들이 마음껏 책을 읽는 공간이 되도록 했다. 넓은 복도에서 더 활발한 소통이 벌어지길 바랐다.
건물의 외장은 마을과 어울릴 수 있도록 빨간 벽돌을 선택했다. 하단부에는 회색 롱브릭 벽돌과 노출콘크리트로 구성해 다른 느낌을 자아낸다. 노출콘크리트는 기둥과 보 등 구조적 요소를 강조하고, 지붕은 최대한 경사지붕으로 구성해 내부의 공간감을 만들고, 우천시 물 빠짐이 원활하도록 했다.




Plan_2F
착공식 때 공동체 마을의 모든 주민이 참석해 공사의 첫 삽을 뜨는 것을 보았다. 교인 모두의 교회이자, 함께하는 공간이라 이야기하는 것 같았다. 감리를 위해 현장을 오가면서 정말 많은 교인을 보았고, 반갑게 인사하는 모습을 보며 앞으로 지어질 교회에 대한 기대와 교회를 설계한 건축가에게 보내는 따뜻한 마음을 느낄 수 있었다.
높다란 십자가와 함께 큰 규모를 자랑하는 화려한 교회는 쉽게 찾아볼 수 있다. 하지만 크고, 높고, 멋진 교회일수록 권위적이고, 폐쇄적인 교회, 그들만의 닫혀있는 교회로 인식되곤한다. 자연 속에서 공동체 마을과 함께하는 이 소박한 교회가 한국 사회에서 교회에 대한 인식을 조금이라도 개선할 수 있길 바란다.


















