

ⓒKyung Roh

ⓒKyung Roh

ⓒKyung Roh

Diagram_Mass

Diagram_Zoning
‘레이어드 하우스 Layered House’는 서초동 경사진 골목길에 자리했다. 4, 5층의 빌라들로 가득한 골목은 현관 자동문과 주차장들을 바라보며 걸어가게 된다. 비슷한 듯 다른, 다양한 형태의 건물들이 밀집된 골목길에 자연스럽게 녹아들기를 바랐다.

ⓒKyung Roh

ⓒKyung Roh

ⓒKyung Roh

Elevation

Elevation
1층은 상업시설로 지역주민과 함께 사용할 수 있는 프로그램으로 이루어져 있다. 2층은 사무실로, 3~5층은 주거로 계획했다. 외부로 노출된 슬라브는 프로그램과 재료를 구분한다. 큰 건물을 잘게 나눠 골목을 지나는 사람들에게 부담스럽지 않은 비례감을 만든다. 반대로 멀리서 봤을 때는 큰 하나의 건물로 느껴지도록 도로에 접하는 전면에 창을 많이 배치했고, 측면부에 창을 최소한으로 냈다.

ⓒtqtq studio

ⓒtqtq studio

ⓒKyung Roh

ⓒKyung Roh

Section

Section
건물 뒤편, 남는 공간에 건축주와 1층 상업시설이 사용할 수 있는 정원을 계획해 도로에서 보이지 않는 비밀정원처럼 보이게 했다. 이면도로에 최대한 건물을 가까이 배치하여 1층 상업시설로 주민이 접근하기 쉽게 했다. 계단실로 가는 출입구는 외부에서 내부까지 전벽돌로 이어지게 마감했다. 주재료의 연속적인 사용은 외부에서 내부로 자연스럽게 연결되는 골목길 같은 느낌을 만들고, 진입부의 상징이 된다. 2층 사무실은 벽을 두지 않았고, 외벽에 유리를 사용해 탁 트인 개방감을 느낄 수 있다. 또한, 창을 통해 외부와 연결된다.

ⓒKyung Roh(좌), ⓒtqtq studio(우)

ⓒtqtq studio(좌), ⓒKyung Roh(우)

ⓒKyung Roh

ⓒtqtq studio

Site Plan

Plan_1F
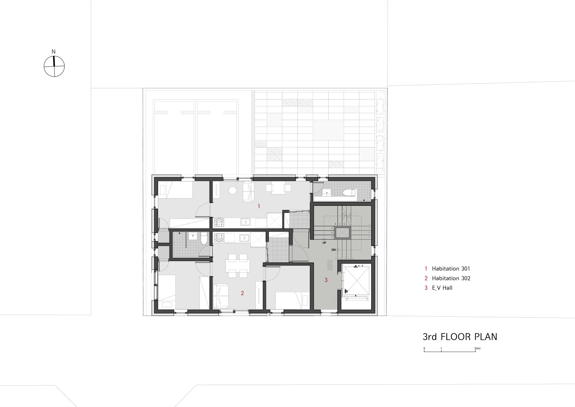
3~5층은 주거층이다. 3층은 임대세대로 넓이와 구성에 차이를 주어 획일적이지 않은 평면을 계획했다. 넓이에 따라 다양한 세대가 입주할 수 있고, 다양한 커뮤니티가 형성될 수 있다. 우드와 화이트로 인테리어 된 4층은 나무 재질의 창살을 이용해 중문과 창문에 포인트를 주어 전통적인 주거의 느낌을 살렸다. 4층과 5층은 외부로 나갈 수 있는 공간을 계획했다. 외부공간은 2층과 같이 개방감을 느끼며 내외부가 연결되게 했다.

ⓒKyung Roh

ⓒKyung Roh

ⓒKyung Roh

ⓒKyung Roh

Plan_2F

Plan_3F
마지막 5층은 실내에서 올라갈 수 있는 다락이다. 다락에도 나갈 수 있는 작은 외부공간을 뒀다. 작은 외부공간은 건물의 앞, 뒷부분으로 시야가 트여 조망하기 좋다. 외부 공간은 난간이 아닌 벽체로 막아 네모난 창을 뚫었다. 동네 전경을 볼 수 있는 이 네모난 창은 실내에서 액자를 걸어놓은 듯한 느낌을 준다. 유리로 막힌 진짜 창문은 아니지만, 창과 벽체로 내부에 있는 것처럼 느껴지게 한다. 벽체는 주변으로부터 시선을 차단해 개인적인 외부 쉼터로 만들어준다.

ⓒKyung Roh

ⓒKyung Roh

ⓒKyung Roh(좌), ⓒtqtq studio(우)

ⓒKyung Roh

Plan_4F

Plan_5F
레이어드 하우스는 내부와 외부의 적절한 연계, 적정한 비례감으로 주변과 조화를 이루게 한다. 다양한 세대가 사용하는 건물 안에서 사람들도 적절한 조화를 이루며 살아갈 수 있는 다가구 주택이 되길 바란다.

ⓒKyung Roh

ⓒKyung Roh

ⓒKyung Roh

ⓒKyung Roh(좌), ⓒtqtq studio(우)

Plan_Attic
















