




자연스러운 집
대지는 양산의 통도사 근처 산수가 수려한 곳에 위치한다. 진입로에서 보는 대지의 정면, 대지에서 보는 풍경 모두 산으로 둘러싸여 있다. 우리는 이 주택이 같은 것 하나 없는 산자락 능선처럼, 혹은 산자락에 파묻혀있는 바위와 같은 모습이면 좋겠다고 생각했다. 또한, 영축산을 배경으로 전면 정족산까지 수려한 산세에 둘러싸인 부지에서 주변 조망을 최대한 끌어들여 휴식이 있는 집이 되고자 했다.




Elevation

Elevation

Elevation

Elevation
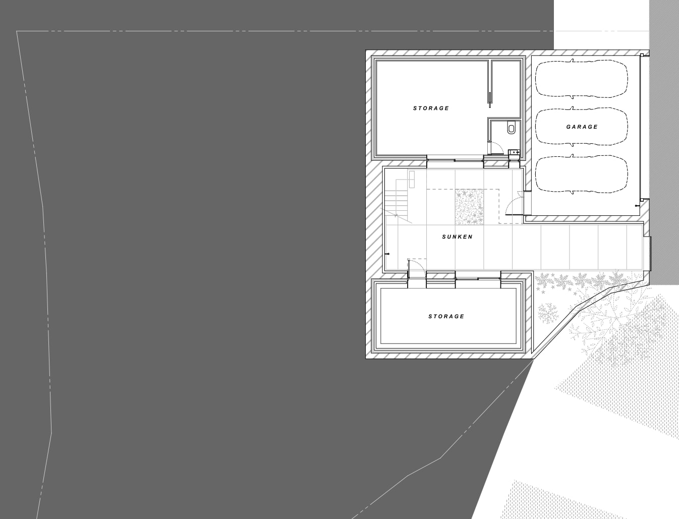
도로와 대지의 고저 차이로 자연스럽게 지하와 선큰 공간이 생긴다. 선큰으로 진입하면 외부에서 느꼈던 산자락 같은 지붕 선들이 눈앞에 나타난다. 볕이 시시각각 다른 방향으로 선큰을 향해 쏟아져 하루 종일 지루하지 않은 공간감이 느껴진다. 지하로 진입해서 마당을 지나 집으로 들어가는 여정은 환대의 공간으로도 충분하다.



다양한 볼륨을 경험하는 것
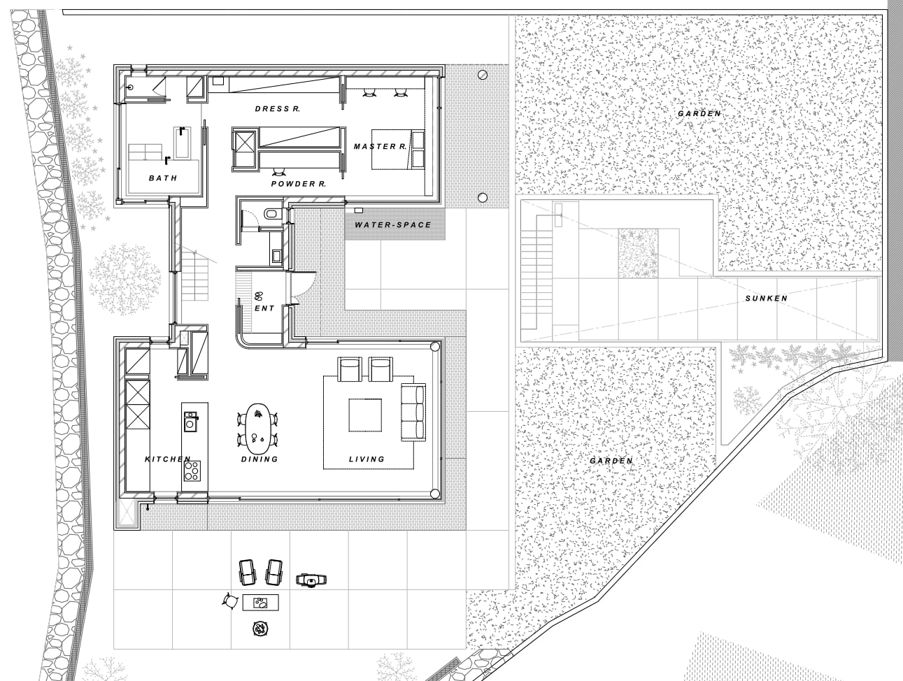
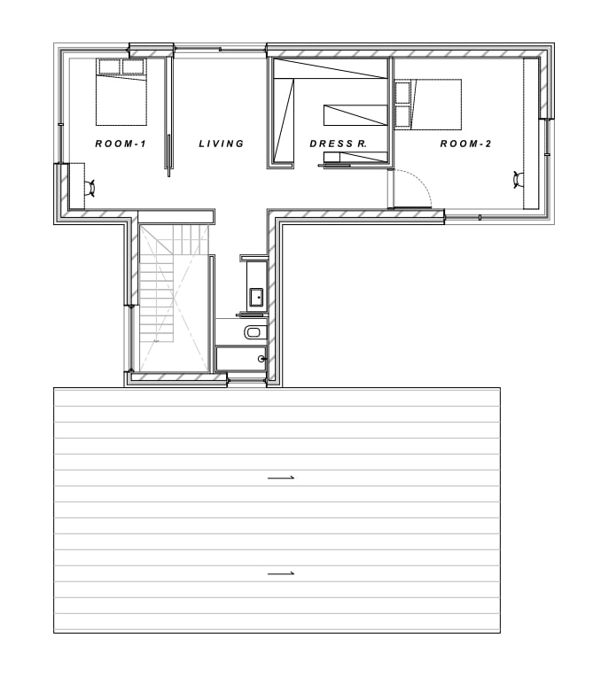
상부의 건물은 총 3개의 덩어리로 나누어 주변과 조화를 이루도록 했다. 거실, 다이닝, 주방의 한 덩어리와 프라이빗 한 방들이 있는 볼륨, 그리고 둘을 이어주는 계단실 볼륨이다.





LDK는 오픈형으로 삼면이 창으로 열려있다. 이로 인해 마당과 너머의 원경까지 파노라마로 볼 수 있다. 동서 방향의 긴 공간으로 앞마당, 옆마당, 진입 마당까지 끼고 있어 확장의 가능성 또한 큰 공간이다. 단면으로 본다면 서쪽이 가장 높고 동쪽이 낮은 흐름으로 진행되며, 주방이 가장 높은 곳부터 시작하게 된다. 키 큰 장 같은 높은 가구가 들어서는 주방, 중간 높이의 다이닝 공간을 지나 소파에 앉았을 때 가장 아늑하도록 고안된 낮은 천정으로 점차 모양을 바꾸게 된다. 앉거나 서 있는 공간, 팔을 뻗는 등 사용자의 활동에 따라 배치된 공간이다.



Section

Section

Section

Section
느긋하게 머무는 집
건축주는 노년의 즐거운 삶을 위해 주변 사람들과 함께 즐길 공간을 지하에 마련하고자 했다. 독립된 제2의 집이 놀이터가 된 셈이다. 곧게 뻗은 대나무 정원이 반겨주는 선큰은 놀이터 마당으로 낮에는 정족산의 시원한 바람이 들고, 밤에는 별이 가득한 하늘을 담는다. 마주 보는 곳에 당구장과 노래방이 위치해 있는데, 지인들과 오가며 흥겨운 시간을 보내고, 마당에 아무렇게 앉아 별을 보며 노곤한 몸을 쉬이면 좋겠다는 생각이었다. 생활공간과 떨어져 소음 걱정이 없고, 작은 화장실까지 마련되어있어 집안까지 들어올 일이 없도록 계획했다.



Plan_B1
계단실 공간은 LDK의 공용공간과 방들이 위치한 사적 공간의 중간에 위치하는데 1층과 2층을 이어주는 수직 동선과 손님들도 이용할 수 있는 화장실이 위치해있다. 현관 또한 계단실 공간에 함께 묶여있는데, 바닥면적은 3개의 덩어리 중 가장 작지만 제일 높은 층고를 가지고 있어 집으로 진입할 때 시원한 공간감을 느낄 수 있다.



Plan_1F
프라이빗 한 안방, 작은방 등은 건축주의 취향이 담긴 기본에 충실한 방들이다. 다만, 일반적인 사각의 창이 아닌 긴 띠창으로 계획하여 LDK에서 느꼈던 파노라마의 뷰를 각 방에서도 느낄 수 있도록 하였다. 느긋하게 머무는 집(유유정)이라는 뜻을 가진 것처럼 이 집이 건축주의 즐겁고 풍요로운 삶과 함께하기를 바란다.



Plan_2F

Plan_RF
















