



유형이 다른 세 가지 주택으로 구성된 다가구 주택
서울의 끝자락, 저층 저밀도 주거지역 내에 자리한 대지는 넓게 펼쳐진 도심 공원과 살짝 경사진 골목길에 면해 있다. 이 동네는 대략 30~40년 세월 동안 친근한 스케일과 높이, 재료들로 만들어진 서울에 얼마 남지 않은 곳이었다. 그러나 요즈음 다가구 주택 등 신축 현장이 늘고 오래된 주택들의 개발이 한창 진행 중이다. 건축주는 유년기부터 살아온 집터에 점차 사라져가고 있는 동네의 고유한 정서가 담긴 집을 만들고자 했다.




Section
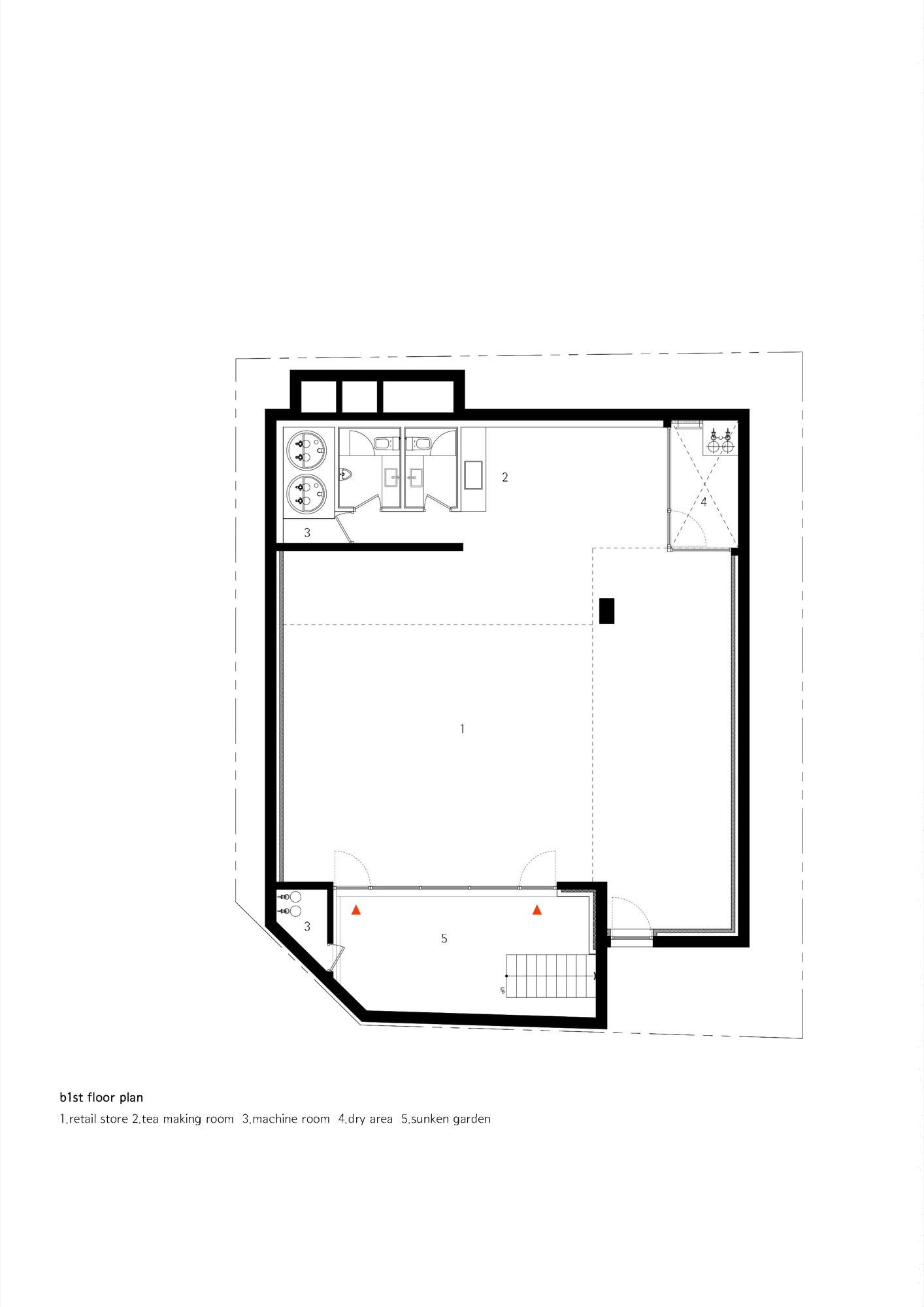
‘연이재’는 1.5룸, 2룸, 3룸과 작업실이 있는 집, 대지의 고저 차를 이용해 만들어진 볕이 잘 드는 반지하 소매점으로 구성되어 있다. 서로 다른 유형의 주택과 소매점은 각기 다른 방향의 진입 공간으로 계획했다. 도로에 면한 소매점은 남쪽 반지하 선큰 공간을 가지고 있으며, 외부 계단을 통해 길과 연속성을 고려한 동시에 자연 채광을 자연스레 내부로 끌어들이도록 계획했다. 서로 다른 세 가구는 길에서부터 켜를 가진 진출입 영역을 두어 집에 이르는 서로 다른 성격의 시퀀스를 구성했다. 주택의 사생활을 보호하는 동시에, 집까지 이르는 길이 아늑하고 따스한 공간이길 바랐다.



Plan_B1
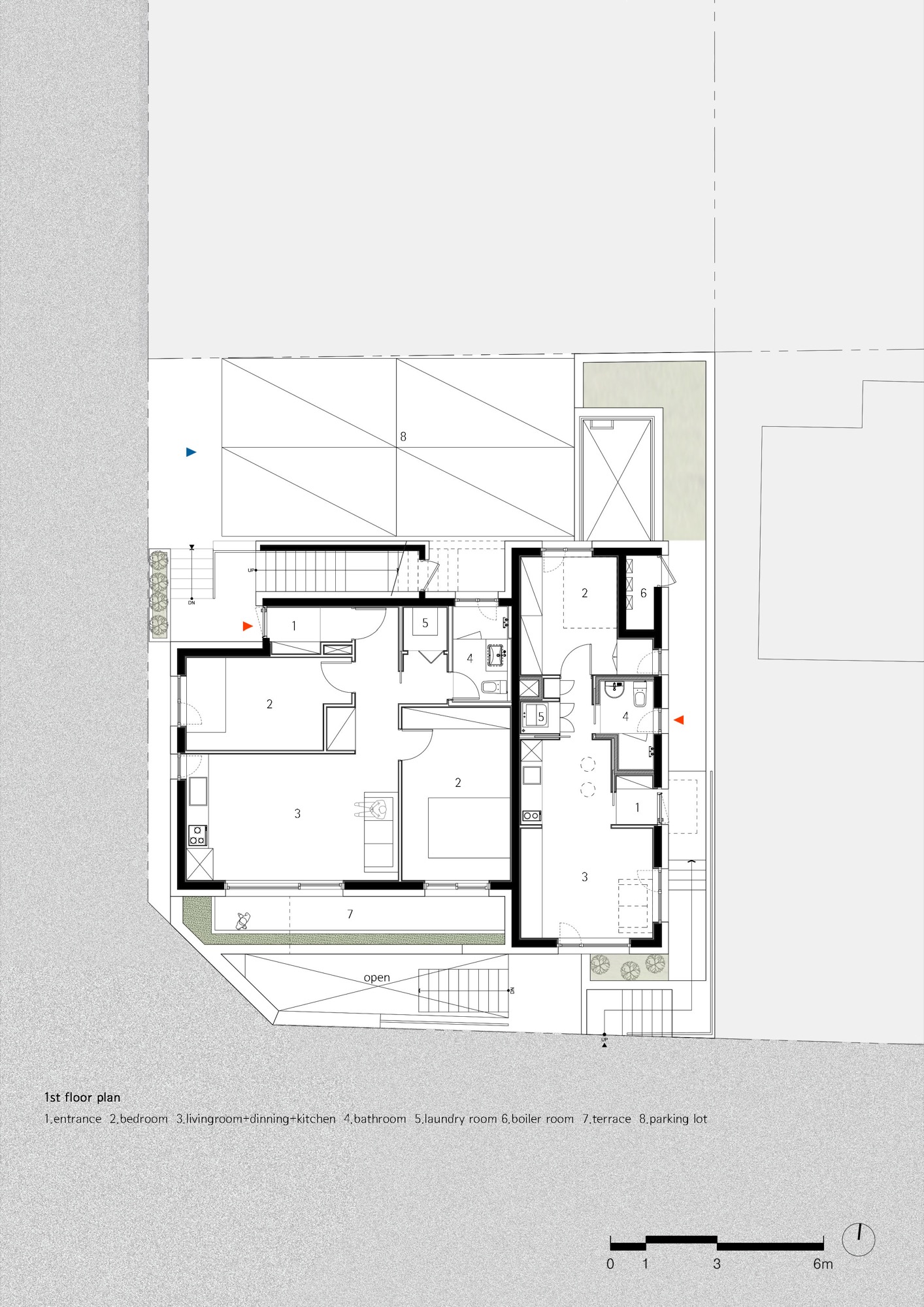
건축주는 회화작품 활동을 하며 어린 자녀를 돌보는 젊은 부부다. 기존에 사용하던 임대 작업실을 새집의 내부로 들여오는 것이 중요한 목표였다. 옥탑과 연결된 높은 층고의 작업실은 현관과 연결된 별도의 출입 동선을 두고, 필요에 따라 주택 내부 공간과 연속되면서도 독립된 공간으로 만들었다. 화실을 찾는 외부인은 집을 통하지 않고, 들어갈 수 있기에 가족의 사생활을 보호할 수 있다. 또한, 작업실과 거실을 연결하는 문이 있어, 작품활동과 가사활동을 동시에 해야 하는 건축주에게 합리적인 동선을 만들었다.





Plan_1F
1층 외부 공간은 건축주와 세입자들을 위한 주차공간으로 대부분 조성되어, 마당과 같은 외부 활동을 위한 여유 공간이 부족했다. 이에 나무와 꽃을 좋아하는 가족을 위해 옥상정원을 계획했고, 이를 통해 부족한 1층 외부 공간을 보완할 수 있었다. 새로이 만들어진 옥상정원은 건축주가 뛰놀던 어린 시절의 마당과 같이 가족들의 추억으로 풍성해지고 있다. 동시에 아직 어린 두 남자아이들이 주변 어른들의 눈치를 보지 않고, 마음껏 뛰어놀 수 있는 놀이 공간으로 활용될 것이다.




Plan_2F
끝으로 연이재는 기존 동네의 스케일과 재료를 존중하고 적극 반영해, 기존 동네가 지닌 풍경에 차근차근 스며들면서 이웃과 어우러지는 주택이 되어가고 있다.




Plan_RF
















