




Site Plan

Elevation
5명이 평화롭게 사는 방법
일반적인 주택은 4인 가족을 기준으로 설계되어 있다. 특히, 아파트는 아빠, 엄마가 큰 방을 쓰고, 작은 방 2개를 아이들이 각각 나눠 쓰며, 부엌과 거실이 열린 구조가 일반적이다. 하지만 가족 수가 많아지고, 연령대가 다양하다면 한집에서 어떻게 사는 것이 좋을까? 이 집은 ‘어떻게 해야 3대로 구성된 5명의 가족이 평화롭게 오래오래 함께 살 수 있을까?’ 고민에서 출발했다.




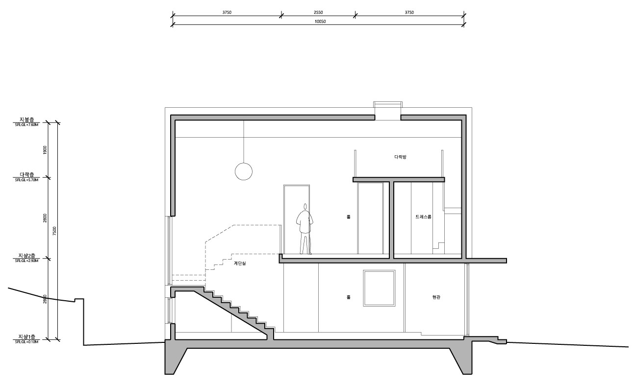
Section

Section
다섯 명이 한집에서 살려면 모임 공간도 중요하지만, 각자의 시간과 공간도 중요하다. 이를 위해서 각 구성원을 평등하게 대우하고, 존중하는 것이 필요하다. 물리적 평등이란, 공간을 동등하게 나누는 것, 적정한 방의 크기(3.6x3.6x2.4m)를 각자 제공했다. 거실, 부엌 겸 식당, 외부 데크, 할머니방, 부부방, 공부방, 올리비아 방, 시환이 방 등 모두 8개의 방은 같은 크기로 계획됐다. 동일한 크기는 공간의 위계를 없앴고, 사방으로 배치된 방은 독립성과 각자의 전망을 갖게 되었다. 집의 중앙에는 새로운 홀 공간이 탄생하면서 동선에 방향성이 사라졌다. 2.4m 폭의 복도치고는 넓고, 거실치고는 좁은 홀은 특정한 기능이 없기에 아트웍이 걸린 갤러리가 되기도, 놀이 공간이 되기도 하며 오히려 많은 기능을 수용한다.




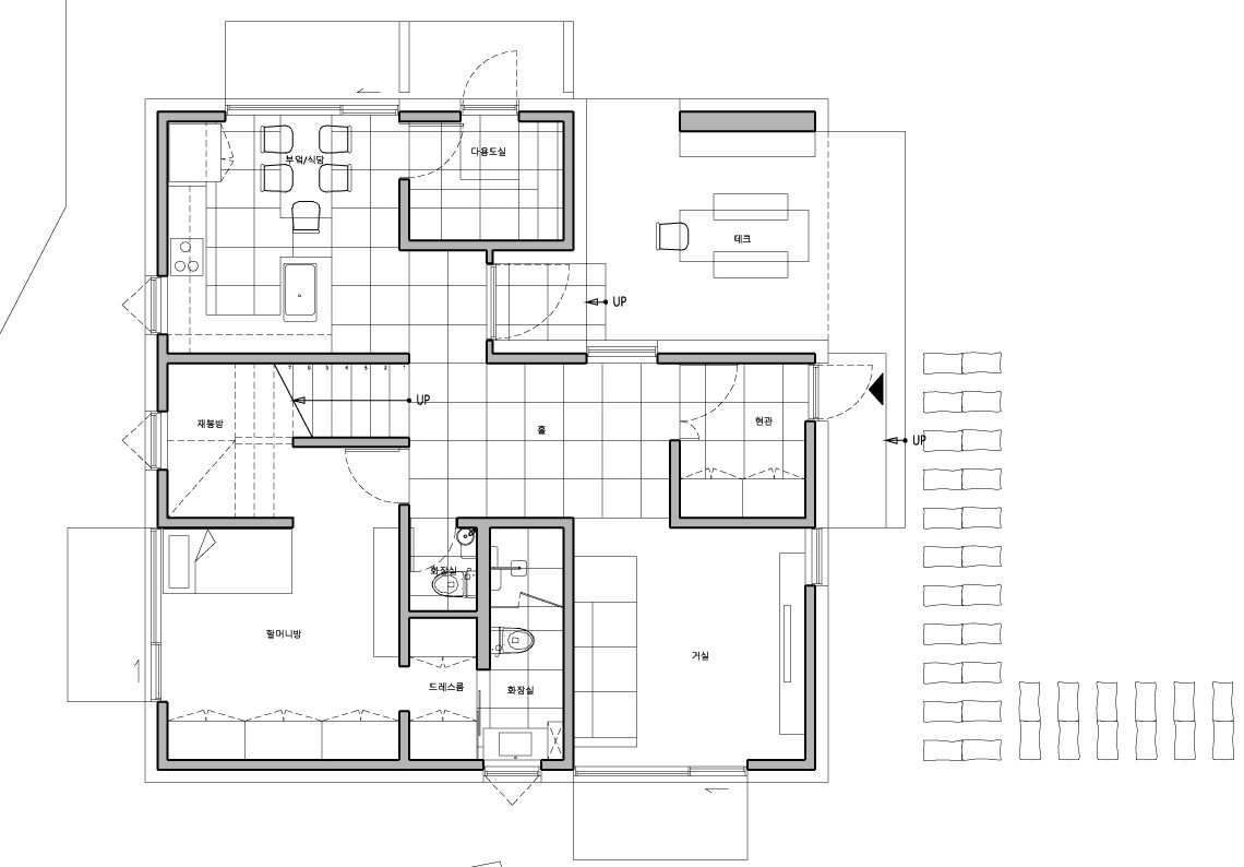
Plan_1F
재료와 형태: 단순하게
마을의 마지막에 자리한 대지는 집이면서 산자락이 시작되고, 오랫동안 마을을 지켜온 청주 한씨 종친회의 제실을 이웃으로 하며, 500년 된 약수터를 마주하고 있었다. 전통 건축과 자연을 해치지 않는 단순한 형태와 재료를 취해야 했다. 사방으로 외부를 고루 마주할 수 있는 정방형 박공지붕에 자연 재료와 돌, 콘크리트가 사용됐다. 5mm 두께의 얇은 돌은 ‘천연 슬레이트’라고 불리는 유럽의 전통 지붕 재료다. 우리의 너와집처럼 겹쳐 잇는 방법이다. 돌 자체에 숨어있는 금속성으로 보는 각도에 따라 반사를 이루며, 지붕과 외벽 전체를 덮고 있다.




Plan_2F
외부에서는 캐노피와 바닥, 데크 전체에 콘크리트가 드러난다. 내부는 바닥을 제외한 모든 면이 콘크리트다. 우리가 알고 있는 매끈한 ‘노출콘크리트’가 아닌 일반 거푸집을 사용해 잔손보기만 한 가장 자연스러운 형태의 콘크리트를 만날 수 있는 가공법이다. 작업하면서 생긴 목수들의 연필 자국, 타설하며 생긴 공기 구멍과 물 자국들…….. 집이 지어지면서 생긴 역사를 매일 만날 수 있다.




건축가의 집
‘집’의 의미는 각자 다르다. 누군가에겐 안식처이고, 누군가에겐 재테크의 수단일 수 있다. 스무 살 건축학과에 갓 입학했을 무렵부터 나의 꿈은 ‘언젠가 내 집도 지을 거야’였다. 나에게 ‘집’은 건축가의 꿈이었다. 그 막연했던 꿈은 두 아이의 엄마가 되고부터 ‘건축가 엄마’의 사명처럼 다가왔고, 5년 동안 대지를 찾던 끝에 경제적 여건과 가족 구성원의 요구사항을 모두 만족하는 지금의 대지를 만났다. 마을 어귀 천변에 들어서면 아직 보이지도 않는 집을 생각하며 “아! 우리 집이다.”하고 외친다. 지금 나에게 ‘집’은 항상 변치 않고, 그곳에 있어주는 행복이다.

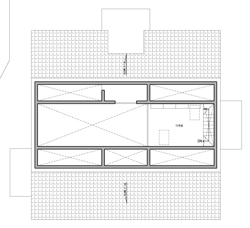
Plan_Attic
















