
설계
사진
시공사




Diagram

Diagram
법규와 맥락이 만드는 형태구축
SCAPE 삼성 2712가 자리한 대지는 서쪽으로 6m 폭 전면도로와 후면인 동쪽으로 4m 폭 도로가 있다. 서쪽으로는 낮은 중학교가 있어 열린 도시 풍경이 있었고, 북쪽으로 일조사선 규제를 받고 있었다. 일조사선 규제와 맥락적 풍경의 방향은 전체면이 투명한 4층을 기준으로 하층부와 상층부를 나뉘는 매스로 구성했다. 전·후면 도시 가로에 접하는 하층부는 단순한 정방형 형태로 구성되고, 상층부는 일조사선의 법규선을 살리는 삼각형이 된다. 하층부는 도시 가로에 대응하고, 상층부는 도시 풍경에 대응하는 두 개의 기하학이 같이 상하로 공존하는 모습이다. 똑같은 공간으로 그저 부동산, 상품화되는 공간은 땅의 맥락과 접목되면서 상업적 가치가 아닌 또 다른 의미를 발견하게 되는 것이다.





Section

Section
맥락적 풍경의 공간구축
분리된 위아래 매스는 다른 형태를 하고 있지만, 서쪽 도시풍경과 관계를 맺으며 층별 공간이 구축된다. 균질한 상업공간은 주변 풍경이 들어오며 장소적 공간을 체험하는 맥락적 공간으로 구축되었다.





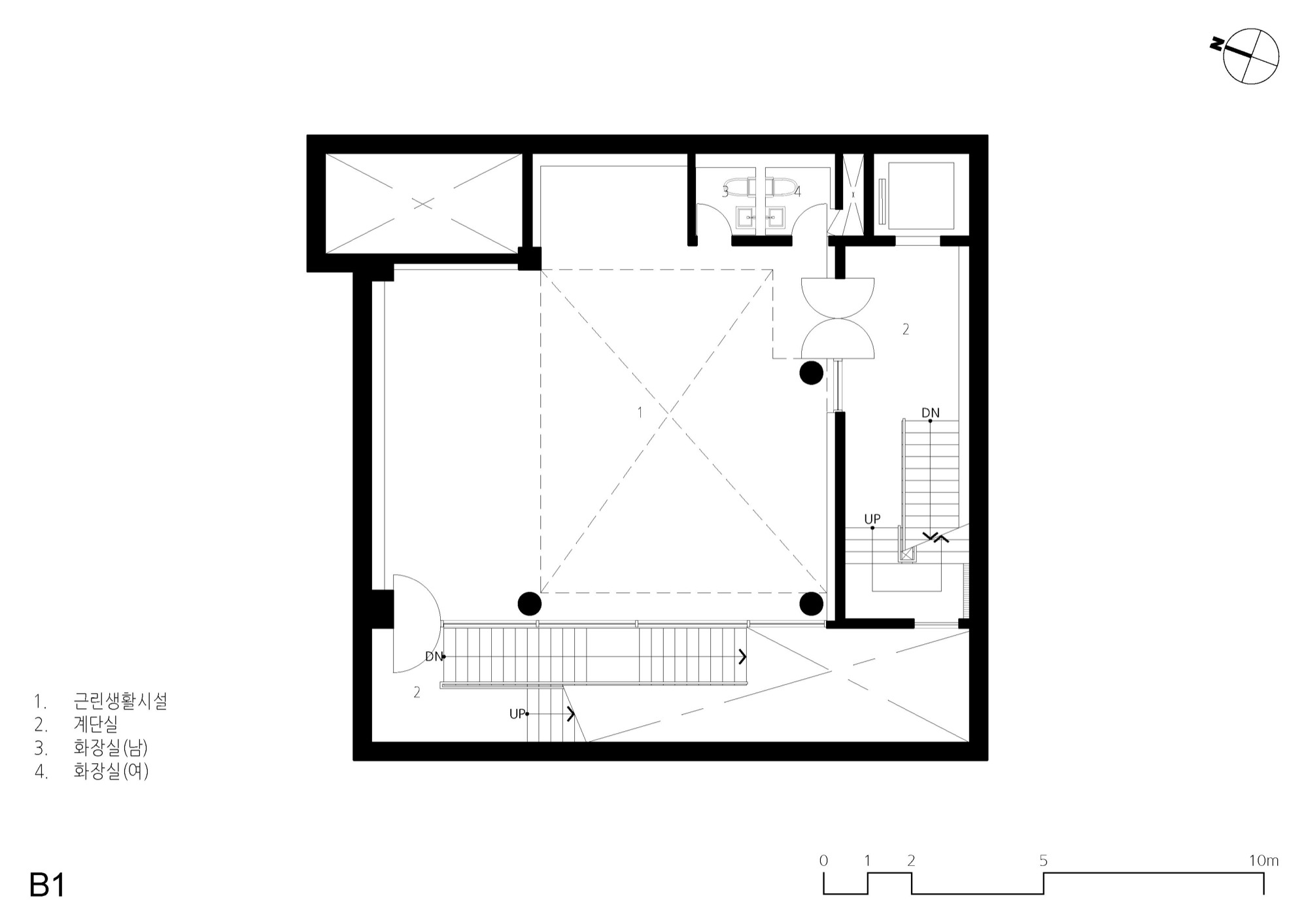
Plan_B1

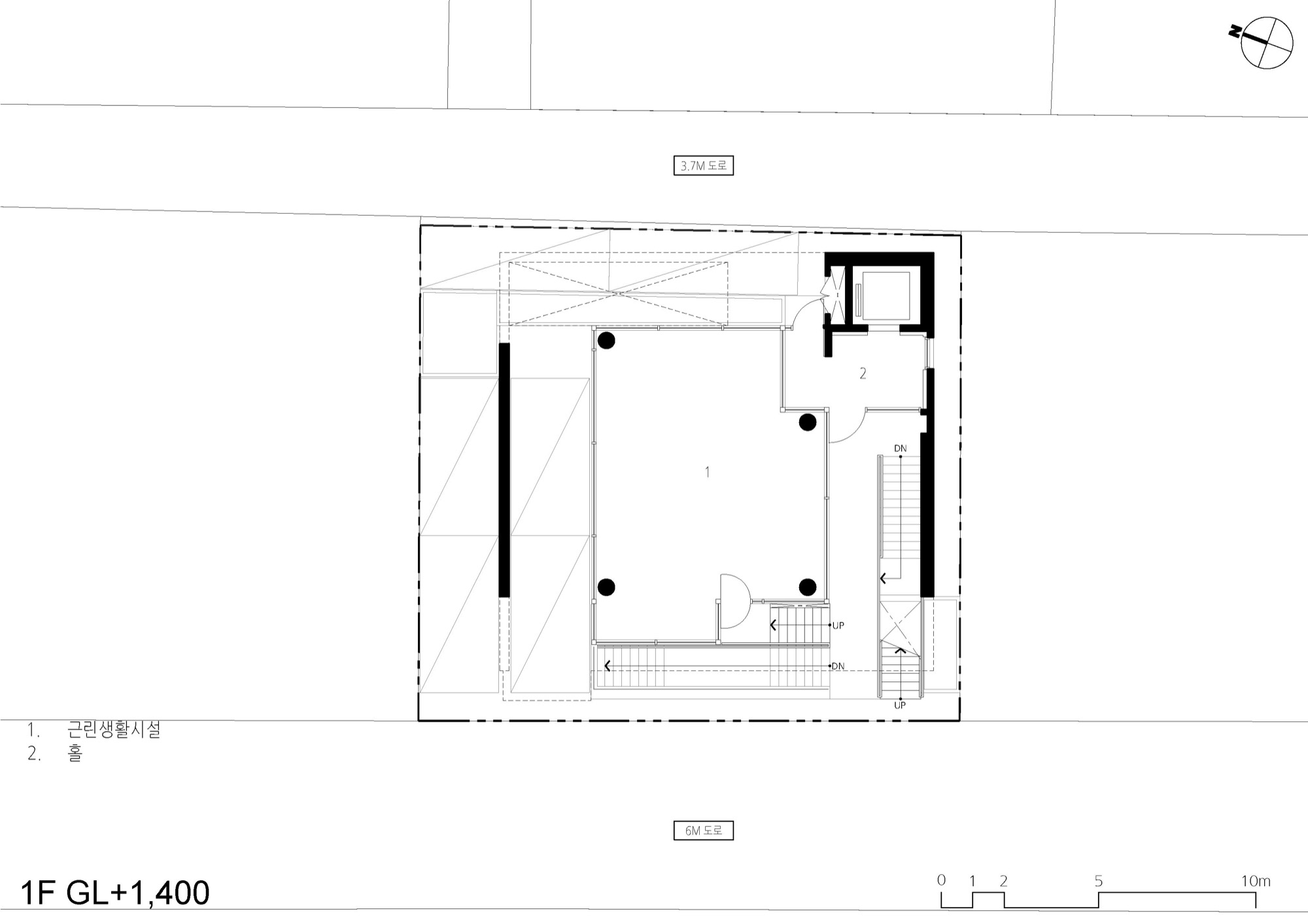
Plan_1F
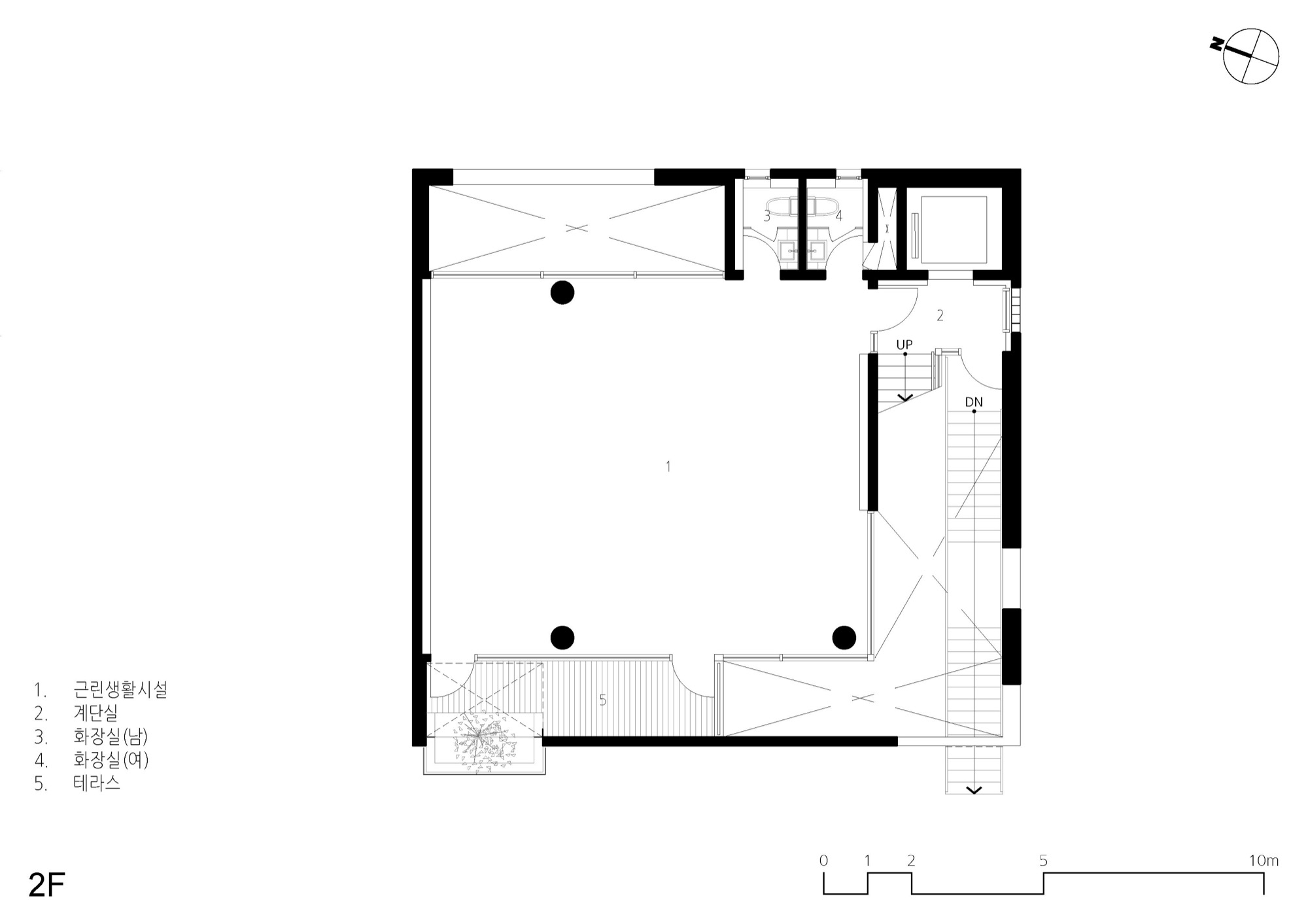
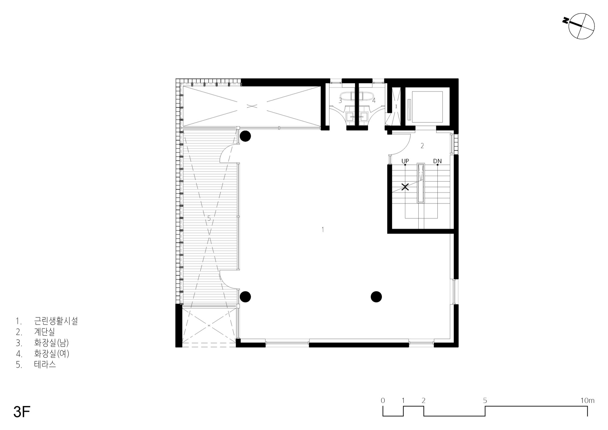
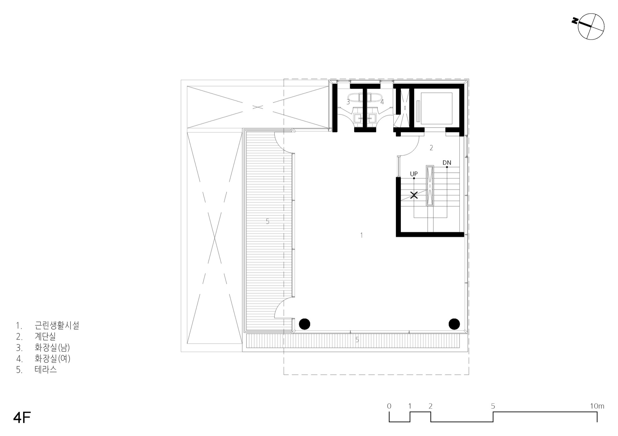
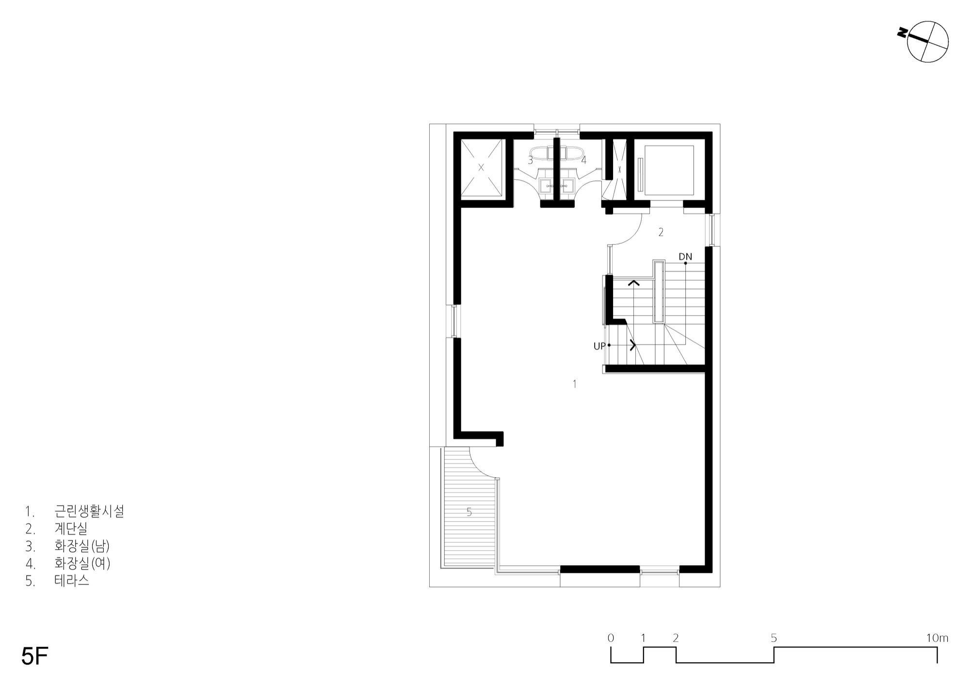
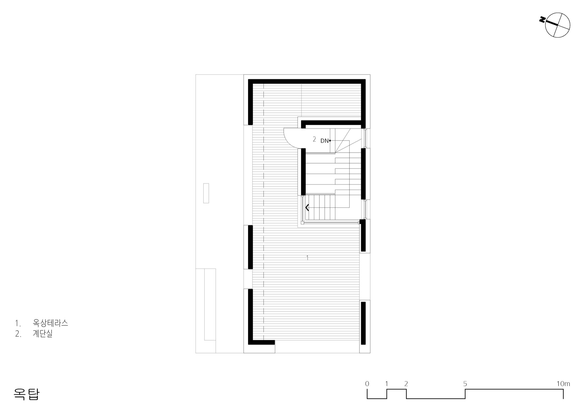
하층부는 필지 경계로 둘러진 벽을 조율해 풍경을 내부 공간에 들인다. 1층은 도로 레벨보다 바닥을 올려 지하 1층에 채광을 확보했고, 도로와 거리감을 만든다. 2층은 서쪽 전면도로 방향으로 테라스를 두고, 도로와 이어지는 계단 옆 보이드 공간을 만들면서 주변 풍경이 프레임화 한다. 도로 쪽 테라스 한쪽에 있는 나무 한 그루는 주변 풍경과 연결되는 효과를 만든다. 3층은 일조사선으로 생기는 넓은 테라스로 내부공간이 확장되며, 다시 주변 풍경으로 확장되는 방식으로 풍경과 관계를 맺는다. 사방이 투명한 유리로 둘러진 4층은 주변 도시 풍경을 막힘 없이 볼 수 있다. 5층과 옥상층 상부는 서쪽 학교로 열려 풍경을 담는다. 이처럼 각 층 높이에 따라 주변 풍경을 공간으로 끌어들이며 상업 공간의 특성을 만든다.






Plan_2F

Plan_3F
두터운 경계의 관계 구축
동쪽과 서쪽으로 접한 도로 풍경은 두터운 경계를 만들고 깊이감과 동선이 도시와 엮이게 했다. 도시의 경계에서 수평, 수직적 관계성을 만들었다. 경계에서 확보된 두께는 동선으로 잇고, 보이드로 비우고, 시각적으로 주변 풍경과 압착시키고, 안과 밖이 중첩되기도 한다. 서쪽 전면 도로에서는 2층으로 바로 이어지는 계단과 지하층으로 이어지는 계단, 1층으로 이어지는 계단, 1층 진입 동선이 여러 갈래로 이어지면서 수직적으로 관계를 조직하게 된다. 여기서 지나는 행인과 사용자는 서로 시선과 공간이 겹쳐지며 모호한 관계를 체험하게 된다. 두터운 경계의 작업이 얇아지고 민감하게 투명한 격리된 상업건축의 대안으로, 도시 사회적 관계로 엮이길 기대한다.




Plan_4F



Plan_5F

Plan_Attic
















