




Elevation
바꿀 것과 남길 것
50년 된 낡은 예배당. 비가 오면 물이 새고 단열재라고는 하나도 없어 한겨울 칼바람을 막기에는 역부족인 오래된 건물이었다. 새로운 건물이 필요한 동시에 무엇을 남길지 생각해야 했다. 대지는 석축으로 둘러싸여 있었다. 개인적으로 거친 질감의 돌담을 좋아하기에 매끈하고 둥근 돌을 시멘트로 붙인 석축은 자연스럽지 못하다 생각했다. 하지만 때로는 세련된 모양보다 따뜻한 기억이 중요할 때도 있는 법이다. 오래전 교인들이 한 개씩 쌓은 돌담을 허물 용기가 없었고 시간의 흔적을 남기기로 했다. 정성과 기억을 남긴 것이다. 대지 측면의 의젓하고 품위있는 전나무도 남겨야 했다. 원래부터 땅의 주인인 듯 새 건물에 안정과 균형을 더해준다.





Elevation
형태와 재료
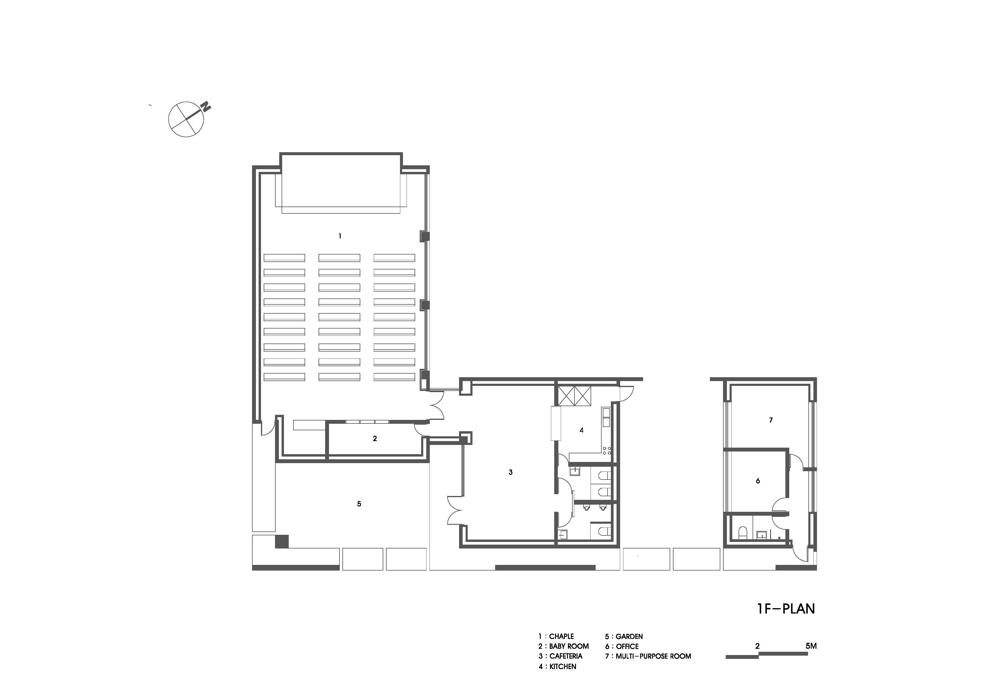
흰색과 회색의 외벽, 짙은 무채색의 지붕은 녹색 숲을 배경으로 정결하고 검소한 느낌을 준다. 100평 남짓 되는 규모이지만 넉넉한 대지에 건물을 퍼뜨리고 35m에 달하는 늘씬한 형태를 만들었다. 건물을 한곳에 집중시키고 커다란 정원을 두는 것보다 분절하고 대지를 여러 개의 영역으로 나누는 것이 좋은 전략일 때가 있다. 빽빽한 도시에서는 애초에 불가능하겠지만 여유 있는 대지를 최대한 이용하기로 했다. 앞의 정원과 뒤뜰, 중정까지 다양한 외부 공간을 건물 사이에 삽입하여 풍성한 체험이 가능하게 되었다. 형제처럼 솟은 세 개의 박공지붕을 노출콘크리트 판으로 둘러 묶었다. 층을 이루는 콘크리트 판은 깊이감과 입체감을 만들고 동선을 정리했다.




Section
내부공간
자연광으로 장식하고 벽돌, 노출콘크리트로 단단한 실내를 만들었다. 예배실 전면에는 빛으로 가득한 공간을 박아넣었고, 측면의 길쭉한 낮은 창을 통해 은은한 빛을 채웠다.



Plan_1F
건축을 마치며
어떤 대상에 ‘의미’와‘가치’가 더해지면 경험이 깊어진다. 지어질 예배당이 착하고 소박한 사람들의 예배 처소로, 마을의 사랑방으로, 갈 곳이 적은 아이들의 공부방으로 사용될 것이라는 기대감에 설계자 라기보다 공동체의 일원이 된 듯한 느낌이 들었다. 공사기간 내내 감리를 마치고 돌아오는 차에는 마을에서 키운 옥수수,감자,고구마. 직접 짠 들기름과 향긋한 식혜가 마을 사람들의 기쁨과 함께 실렸다.


















