




Elevation

Elevation
2017년 하동 화개골에서 설계와 시공을 같이 하는 첫 프로젝트인 주택(월계재)을 하며 동네 주민이던 부부를 만났다. 월계재 준공준비로 한창일 때 그들은 우리를 강 건너 농로를 따라 올라가 가장 끝 집을 지나야 보이는 녹차 밭으로 데려갔다. 2015년, 자신들의 도시생활을 정리하고 내려온 이곳에 땅을 구매했으며, 이제는 집을 짓고 싶다 했다.
요구사항은 명확했다. 하나, 부부만 생활하게 될 공간이므로 큰 면적을 원하지 않았다. 다만 그곳에서 화개 아이들을 위한 공부방을 운영하고 있었기에 ‘아이들이 더 좋은 공간에서 수업을 받을 수 있도록 하고 싶다’고 했다. 둘, 칼로 자른듯한 반듯한 면들로 이루어진 건물 형태였으면 한다. 셋, 구들방, 그리고 공사비.




Section

Section
주변 자연환경이 너무도 좋은 곳이기에 실내공간의 거주성뿐 아니라 각 공간에서의 적절한 창 계획으로 물리적인 면적은 작지만 감각적인 면적은 외부로 확장되도록 했다. 이렇게 하여 지상 2층의 주택은 작지만 작지 않은 집이 되었다. 전체적인 매스의 형태는 지붕에 단 차이를 두어 거실이 높은 층고를 유지하도록 하여 아이들의 공부방 역할을 겸하게 될 거실 공간을 풍부하게 하였고 또한 주변 산세의 선형을 거스르지 않고자 했다.




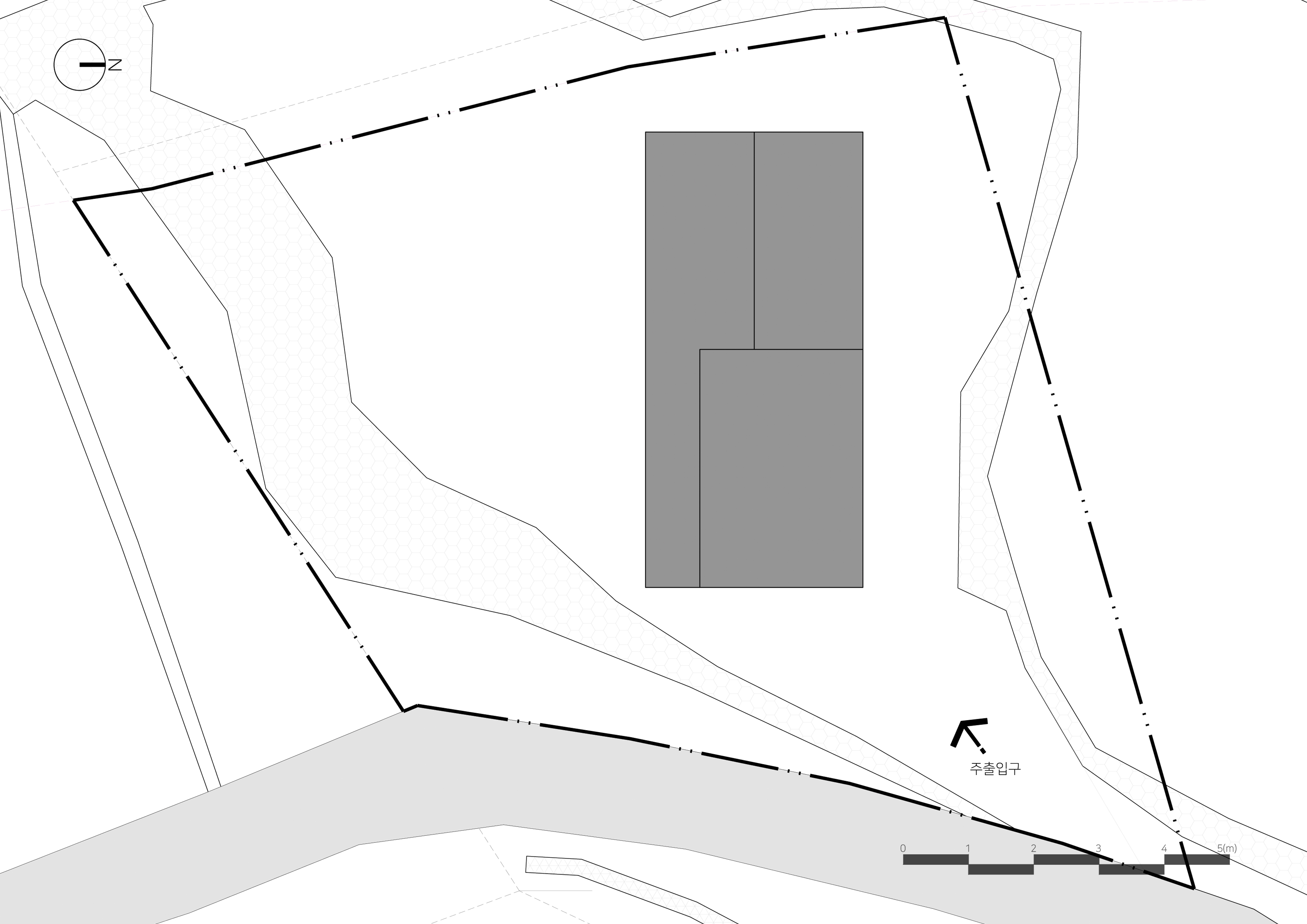
Site Plan
건물의 전체적인 완성도를 높이고 클라이언트의 요구사항 중 하나였던 반듯한 면들로 이루어진 건물형태를 위해 선택한 외장재는 sto사의 외단열 시스템이었다. 드라이비트로 통용되는 외단열 시스템은 많은 이들이 오염이 잘 된다고 생각한다. 물론 자재의 특성도 있겠지만, 오염이 되는 가장 큰 이유는 디테일의 부재이다. 창 주변, 입면의 하부, 면과 면이 만나는 모서리 등에 비드(bead)를 적절히 사용하면 오염도는 현저하게 줄어들게 된다.





Plan_1F
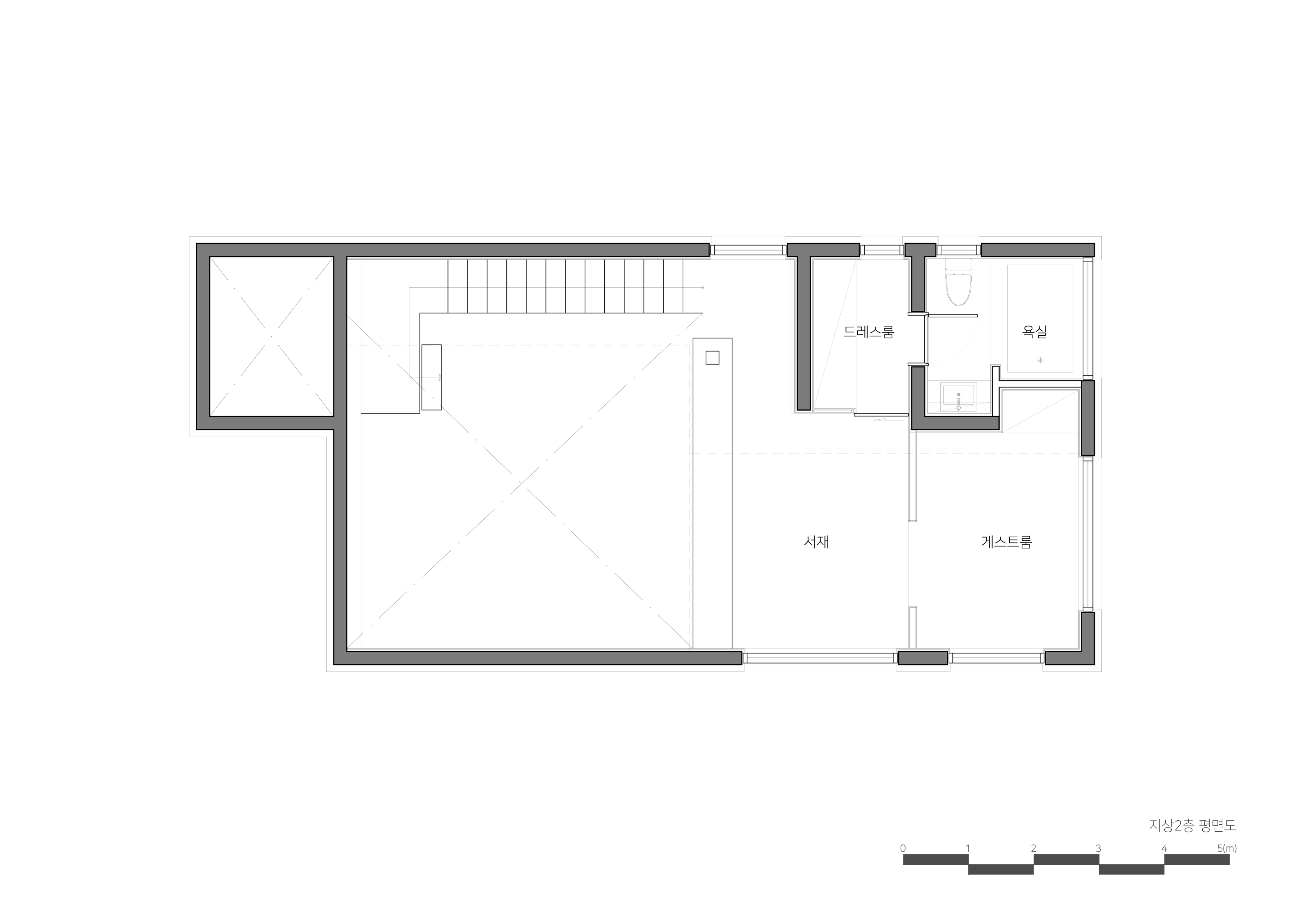
1층에는 거실과 주방, 부부를 위한 구들방 침실, 화장실, 다용도실이 있다. 캔틸레버로 만들어진 계단을 올라오면 2층에는 손님방 겸 좌식 공부방과 서재, 드레스룸, 화장실이 있다.



기초터파기를 하는 도중 클라이언트로부터 급한 전화를 받게 되었다. 현관 부분의 땅을 파던 중 암(巖)이 나와서 더는 파지지가 않는다는 것이다. 역시 땅은 파봐야 알 수 있다. 그리하여 단면계획을 변경하여 현관에서 거실로의 진입이 오르내림의 단차이를 갖게 되었다. 결과적으로는 아이들이 재미있어하는 공간이 만들어졌다.




Plan_2F
약 7개월 간의 공사를 마무리 지으며 주택의 이름을 삼연재(然緣姸)라 지었다. 삼연재는(然緣姸) 자연(그럴)연, 인연 연, 고울 연, 연자가 세 개 깃든 집이라는 뜻이다. 자연(그럴)연은 집을 짓는데 자연과 잘 어우러진 집이 되기를 바라는 마음, 인연 연은 화개로 귀촌해 맺은 인연들의 도움이 있었기에 집을 지을 수 있었던 것에 대한 고마움, 마지막 고울 연은 아내의 이름에서 가져온 것으로 올해 결혼 10주년을 맞이한 선물이다.


















