




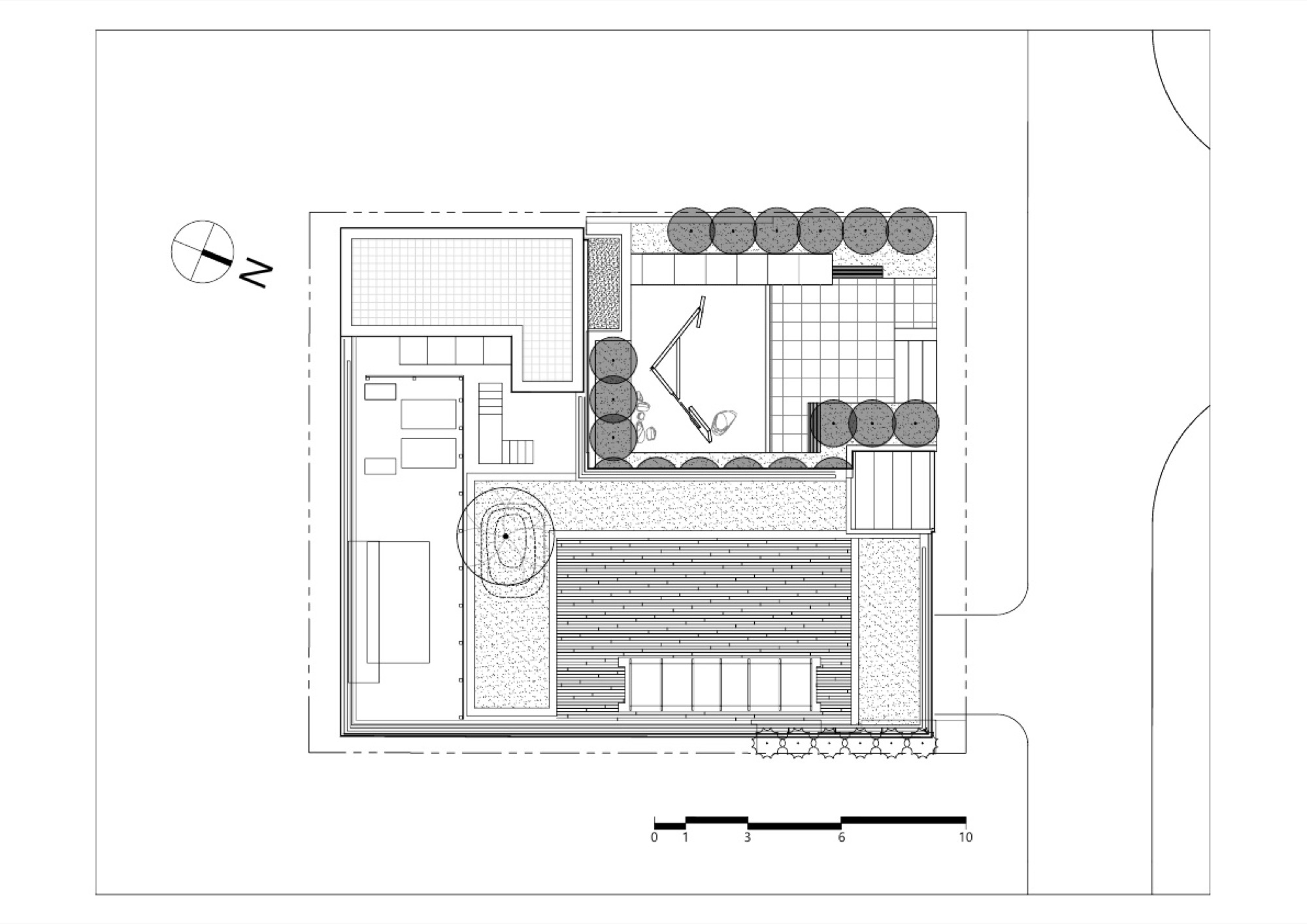
Site Plan
역삼역 일대의 먹자골목에 자리한 대지주변은 근린생활 시설들과 건물 앞 주차를 위한 공간으로 보행자와 차가 뒤섞여, 여유 없이 돌아가는 도심의 모습을 여과 없이 보여주고 있다. 주차공간으로만 가득 찰 대지 전면에 녹지와 여유공간을 만들어 지나가거나 주변에서 근무하는 사람들에게 숨 쉴 곳을 찾아 주기로 했다. 공개 공지 제공을 통한 높이 완화로 건축주를 설득하고, 최대 용적률을 위한 볼륨을 만들었다.




Plan_B1

Plan_1F
도심의 소규모 빌딩에서 도시와 공공을 위한 작은 휴게 공간과 국내외 미디어 작가들의 미디어 작품을 투사하고 있는 미디어 패널은 ‘공개공지를 어떻게 만들어야 하는지 보여주자’라는 건축주의 적극적인 도움과 함께 어수선한 골목길 상황에서도 잠시라도 쉬어갈 수 있는 공간 만들기의 결과이다.




프로젝트가 지녀야 할 상업성뿐 아니라 도시 안에서 공공성을 동시에 만족해야 하는 건축가가 프로젝트를 통해 도시를 위해 할 수 있는 최소한의(그러나 최대한의) 배려이다. 결국, 도시 내의 소규모 빌딩들이 도시와 공존하는 조금 다른 방법을 제시하게 된 것이다. 또한, GS타워 방면에서 아시아 미디어 센터 외관의 시야 확보가 명확하여 미디어 노출 시 시인성이 매우 높을 것으로 판단됐다.




Typical Floor Plan
끝으로, 건물 외관과 조경 및 감각적인 미디어 전략을 통해 이면도로를 행인들에게는 주변의 상징적인 건축물로 각인되고, 입주사 및 입점 매장에는 자부심을 줌에 따라 중,장기적으로 아시아 미디어 센터의 가치 증대를 기대할 수 있을 것으로 예상한다.


















