



SIte Plan
'카페 피어라'는 3대를 이어 가족들이 함께하는 식당과 베이커리 중 베이커리 카페의 상호이다. 시어머니에게 음식을 배운 며느리는 대를 잇는 한식 요리연구가이고, 제빵을 전공한 딸들은 베이커리와 카페를 함께 운영하고 있다.
이곳은 한식당으로 이미 정평이 나 있지만, 청보리밭으로 젊은이들에게 더 널리 알려진 명소다. 일찌감치 당진으로 터를 잡은 2대째 부부는 단순한 밭이었던 대지를 오랜 시간 손수 가꾸고 다듬어 작은 공원을 방불케 했다. 피어라 프로젝트는 한식당을 필두로 두 번째의 베이커리에 이은 세 번째 증축으로 베이커리 카페로 사용하고자 했다.



Section
이 프로젝트는 원래 3대를 위한 주택 설계로 시작되었다. 설계과정 중 카페의 증축이 추가되었고 주택은 시공이 보류된 채 카페만 먼저 완공되었다.
청보리밭은 이 대지의 고유한 상징으로 불가침의 영역이라 갑자기 대두한 카페동의 위치를 잡기가 어려웠다. 도로 진입부나 주차장의 확보, 대지에 전반적으로 걸쳐있는 경사와 언덕, 쉬이 베어버릴 수 없는 오랜 고목들. 게다가 기존의 건물들과 긴밀해야 하는 동선 등 모두 배려하려니 그 넓은 대지에 오십여 평 되는 건물을 앉힐 자리가 사실상 없는 것과 마찬가지였다. 특히 기존 건축물의 각자 특성이 강해다. 전체적인 통일감을 유지하기 위해서는 새로 지을 건축물이 도드라지면 안 된다. 눈에 띄지 않으면서도 여전히 청보리밭의 조망을 취하고, 베이커리(2차 증축동)와 동선이 원활하게 연결되기 위해 서쪽 숲으로 이어지는 좁고 긴 언덕에 자리를 잡았다.



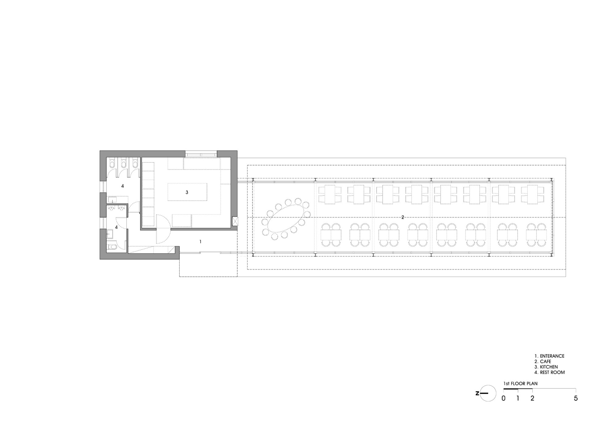
Plan_1F
기존 두 채의 건물이 벽돌조의 무거운 이미지라면 카페동은 여전히 벽돌을 사용하지만, 최대한 가벼운 구조와 단순한 디자인으로 3세대의 젊고 세련된 이미지를 추구했다. 주출입을 중심으로 좌측 매스는 2차 증축동과 유사한 성격의 심플한 벽돌박스로 제빵소와 화장실 등의 서비스 시설이 배치되고, 우측부는 철골조 자체가 디자인된 투명한 카페다.
시간이 흘러 주변의 나무와 풀들이 제모습을 갖추면 가장 나중에 지은 피어라 카페는 가장 먼저 존재감이 사라질 것이다. 지붕에 사용된 골강판은 햇볕과 더불어 무성해진 나뭇가지들 사이에서 보일 듯 말듯 순간의 일렁임으로, 청보리밭에서 언덕으로 이어진 사이의 홀은 차를 마시는 사람만이 돋보이는 사람의 손을 여전히 타지 않은 장소로 남을 것이다.

















