




진주 혁신도시를 따라 흐르는 남강과 저수지 공원이 내려다보이는 곳에 대지가 자리해 있다. 윤슬을 타고 온 강바람과 강변 식생이 대지까지 밀려와 남강의 풍요로운 기운을 느끼게 하는 곳이다. 배치는 남서쪽 저수지 공원과 남강을 향해 열리 ㄷ자로 계획했다. 남동쪽 인접 대지를 제외하고, 3면이 경관 녹지와 산책로로 둘러싸여 있는데, 인접 녹지공간과 건축물의 관계를 다양하게 계획하여 대지의 환경적 잠재력을 극대화하고자 했다. 남서쪽의 소나무 군락지와 공용공간을 가깝게 배치했다.




통창 너머로 소나무 군락을 바라보고, 소나무 사이로 큰 스케일의 풍경(저수지 공원과 남강)을 온종일 내려다볼 수 있도록 했다. 아기자기한 꽃나무로 조성된 북동쪽 녹지에는 주인 침실 영역을 배치하여 아늑한 풍경을 누릴 수 있도록 했다. 저수지 공원으로부터 밀려온 녹지는 대지 깊숙이 들어와 ㄷ자 집의 내밀한 중정이 된다. 각각의 공간은 각각의 풍경을 향유하는 동시에 중정 풍경을 공유한다.





Plan_1F
평면은 사적공간(마스터룸,드레스룸,화장실), 복도(현관,화장실), 공용공간(거실,다이닝룸)이 ㄷ자로 중정을 감싸도록 계획되었다. 여러해살이 화초류로 가득 찬 중정은 이 집의 중심 공간으로 다양한 형태의 창을 통해 내부와 소통한다. 북동쪽 산책로에 면한 진입부는 프라이빗한 모습이지만, 현관문을 열고 들어오면 중정과 공원이 가득 담긴 통창을 마주한다. 거실과 다이닝룸을 잇는 긴 창은 같은 방향으로 중정을 바라보고 있지만, 바닥 레벨 차이를 두어 서로 다른 높이의 시선으로 중정을 즐길 수 있다. 서재는 북쪽 산책로 쪽으로 창이 나 있지만, 포켓도어를 열면 거실과 하나로 연결되어, 취미실-거실-다이닝룸-공원까지 이어지는 깊은 공간감을 느낄 수 있다.



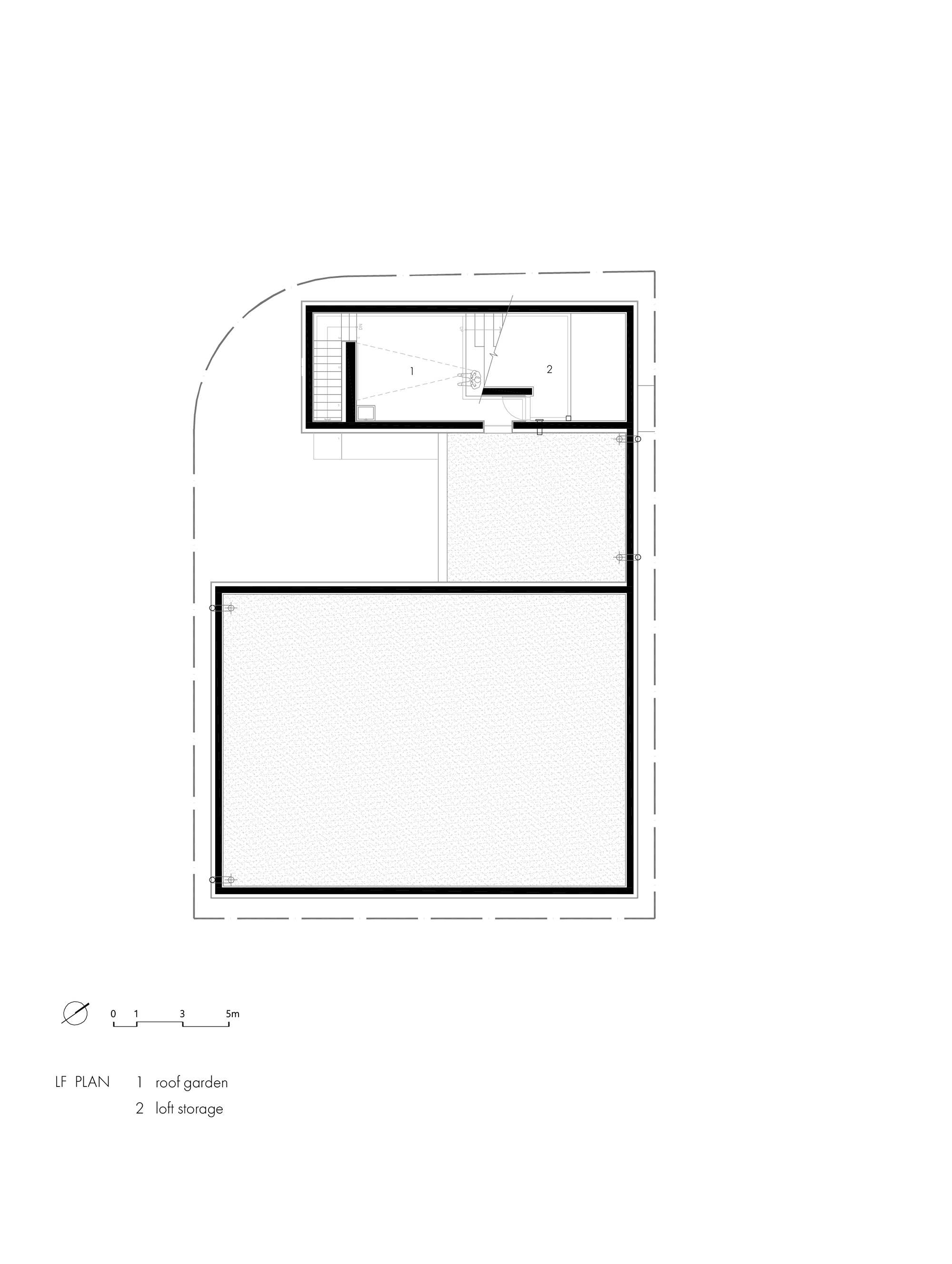
Plan_Attic
형태는 저수지 공원에서 올려다보았을 때 위압적이지 않도록 단층으로 계획되었다. 단층이지만, ㄷ자를 이루는 세 개의 매스의 높이를 다르게 계획하여 단조로움을 피하고자 했다. 매스의 서로 다른 높이를 활용하여 실내의 층고에도 다양함을 주었고, 옥상 마당도 두 개의 레벨을 가지도록 계획했다. 다양한 마당 생활(바베큐, 야외영화보기 등)을 위한 옥상 마당은 두 개의 레벨에서 서로 다른 공간감을 가지며 프라이빗한 활동과 개방적 활동이 모두 가능하다. 옥상 레벨 차를 활용한 다락 공간은 마당 활동에 필요한 용품들을 보관할 수 있도록 했다. 안방 옆으로 난 외부 계단은 형태적 콘셉트를 유지하면서 중정과 옥상 마당을 잇는다.



















