





Site Plan
‘양산 파노라마 하우스’는 임야를 깎아 터를 만든 전원주택 단지의 첫 번째 필지에 지어졌다. 4m 가량 단차가 있는 필지는 남쪽으로 당촌 저수지와 그 너머 산이 펼쳐진 수려한 풍경이 있었다. 모든 공간에서 저수지와 산을 바라보고, 도로의 시선은 차단되며, 내부와 외부의 마감은 견고하고 단단한 물성을 가진 재료로 구축되길 바라는 건축주의 요구 조건이 더해져 설계가 시작되었다.




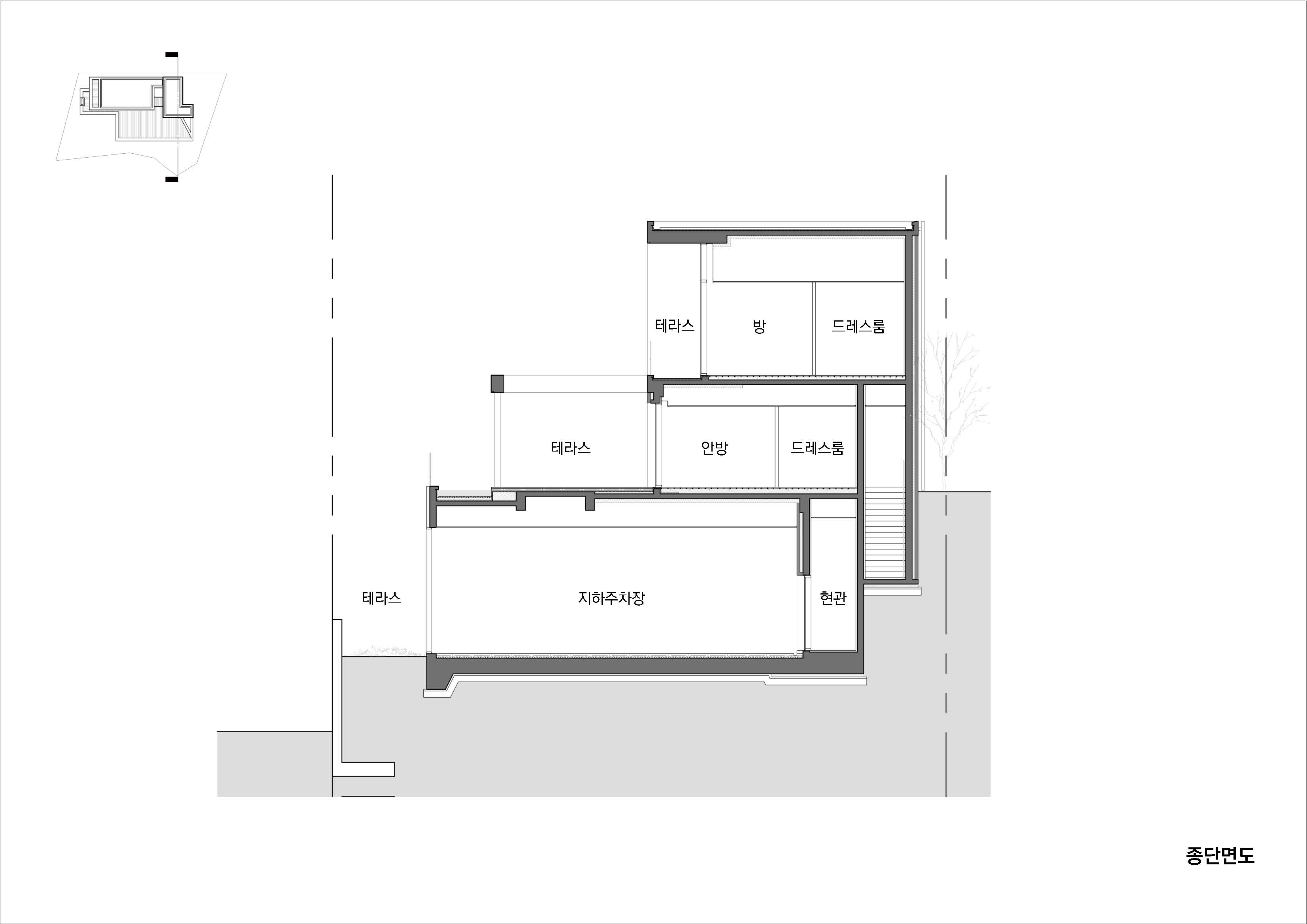
Section
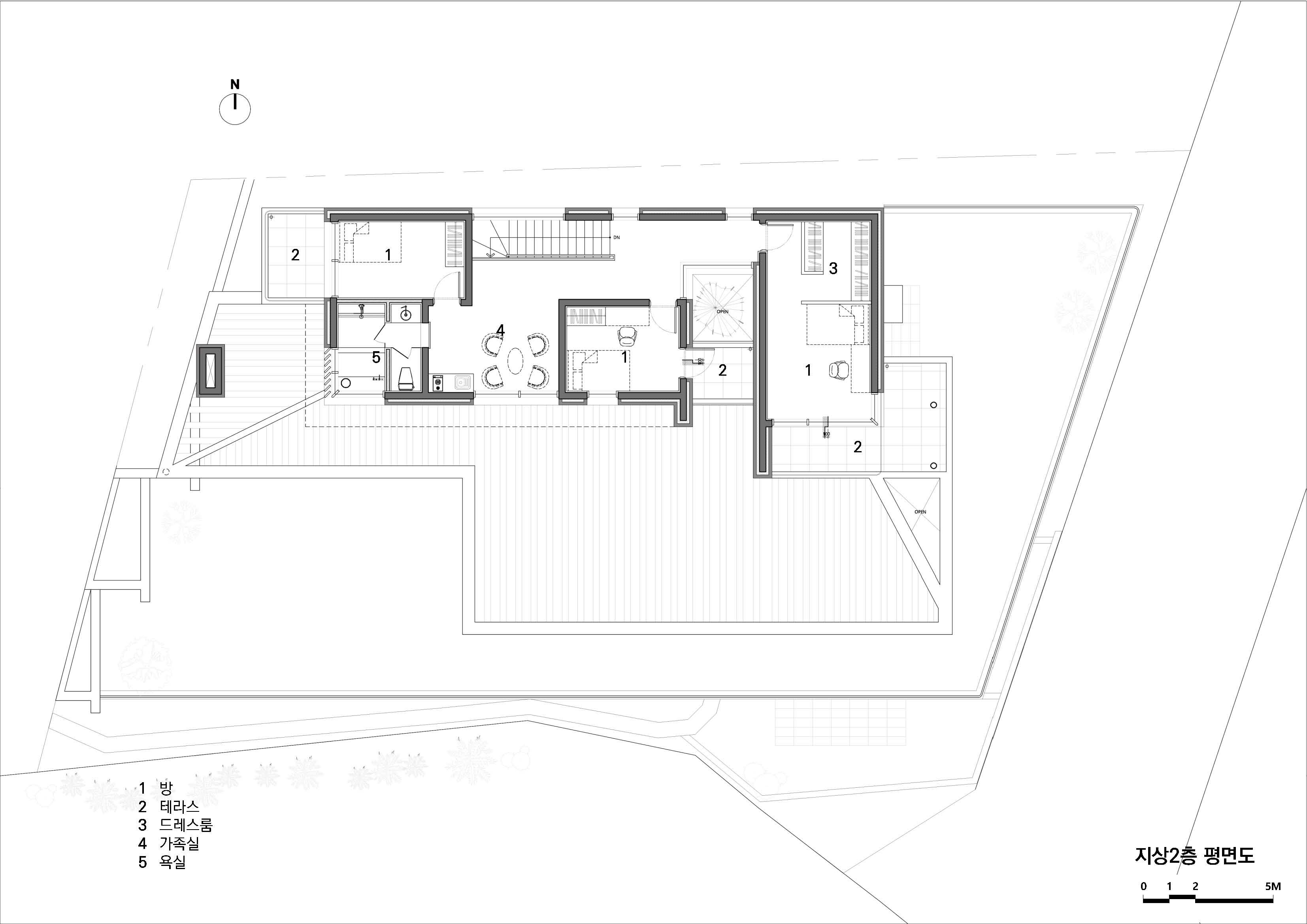
양산 파노라마 하우스는 외부에서 보면 거대한 건축물처럼 보이지만, 실제로는 지하층을 제외한 연면적이 65평이 채 되지 않는 규모다. 도로와 맞닿은 지하 1층에 있는 현관을 지나 계단을 오르면 당촌 저수지와 그 너머 풍경이 침실과 거실, 주방을 따라 하나의 파노라마처럼 이어지며 펼쳐진다. 풍경을 담아내는 전면 창 위쪽에는 커다란 콘크리트 루버 구조물이 공간의 성격마다 각기 다른 길이로 뻗어 나와 있으며, 전면 테라스와 1층으로 들어오는 강한 햇살을 가려주는 역할을 한다. 2층에 자리한 세 개의 침실은 온전히 개인을 위한 휴식 공간이 되도록 방마다 테라스를 가지며, 각 테라스는 기둥과 기둥, 벽과 벽, 벽과 지붕 사이 풍경을 감상할 수 있도록 했다.





Section

Plan_B1
두 곳의 중정
양산 파노라마 하우스는 두 개의 중정이 있다. 하나는 거실 올라오면 볼 수 있는 유리 중정으로 안방과 거실의 경계 역할과 거실 공간을 시각적으로 확장한다. 거실에서 전면 풍경을 바라보지 않더라도 중정으로 쏟아지는 빛과 그림자를 통해 시간과 계절을 실내에서도 느낄 수 있도록 하고자 했다. 마당은 거실에서 저수지 너머로 보이는 자연을 오롯이 느끼기 위해 비워 두었지만, 중정은 나무와 이끼로 채워 정제된 새로운 공간을 경험할 수 있도록 했다. 또 다른 중정은 안방 욕실에 있는 비밀스러운 중정이다. 안방 욕실은 가장 안쪽에 삼각형 형태의 중정과 연결되어 있다. 이 중정은 외부의 시선을 노출콘크리트 벽으로 차단한 채 삼각형으로 열린 하늘만을 담고 있다. 외부와 단절된 채, 조용하게 하늘을 항해 열린 중정을 보며 온전히 편안한 휴식을 취할 수 있는 공간으로 만들어졌다.






Plan_1F
중단열 노출콘크리트, 치핑 콘크리트
콘크리트의 단단한 물성을 선호하는 건축주를 위해 집의 내부와 외부 모두 중단열 노출콘크리트 공법을 사용했다. 노출콘크리트도 공간의 성격마다 다르게 느낄 수 있도록 각기 다른 질감을 가지도록 했다. 먼저 도로와 맞닿아 있는 지하층은 건물 전체를 떠받치고 있는 기단의 모습을 한다. 기단 같은 지하층은 땅에서 바로 융기된 바위처럼 보이도록 거친 표면을 가진 치핑콘크리트 질감을 사용해 단단한 인상을 만들었다. 거푸집 속에 EPS문양거푸집을 설치하고, 콘크리트를 양생한 뒤 망치로 하나하나 깨는 수작업을 통해 거친 표면을 완성했다. 지상층의 전체 외관은 송판노출콘크리트로 만들어 집으로서 지나치게 이질감이 들지 않도록 했다. 내부에도 견출콘크리트를 사용하여 콘크리트 재료 본연의 질감은 유지하면서도 매끈한 면 처리를 하여 불편함을 최소화하고자 했다. 콘크리트의 물성은 유지하되, 위치마다 구축 방법을 달리하여 획일적이지 않게 만들어냈다.




콘크리트 루버
건물의 정면은 건축주의 요구에 따라 멋진 풍경을 담을 수 있도록 침실-거실-주방으로 이어지는 파노라마 뷰를 가진다. 하지만 정남향으로 배치된 공간은 강한 햇볕이 집안으로 들어와 눈부심이 발생할 수 있고, 정주환경에 좋지 않기 때문에 적절한 일사량 조절이 필요했다. 전창과 테라스 상부에 강한 일사를 막아줄 최대길이 7.5m의 거대한 콘크리트 루버를 만들었다. 루버는 집안으로 들어오는 빛을 조절하고, 집이 가지는 단단한 인상에도 큰 역할을 한다. 루버는 시시각각 변하는 그림자로 다채로운 공간감을 연출하고 경험하게 한다.








Plan_2F



















