
설계
사진
시공사





Elevation

Elevation
용적률과 건폐율이 만드는 수직 형태
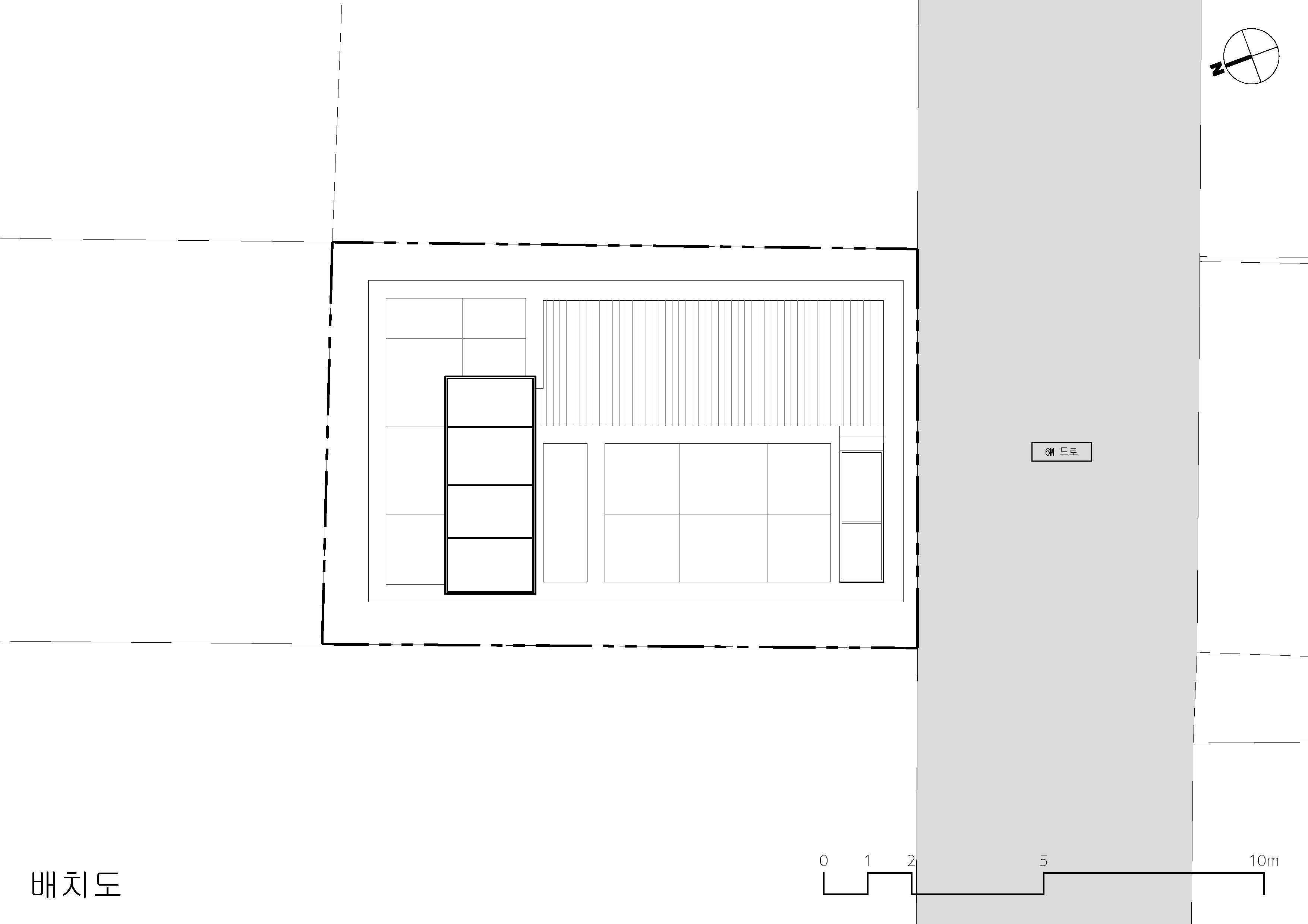
필지는 남쪽으로 6m 도로에 접한 성수동의 작은 필지다. 전면 도로와 8.5m만 접하고, 나머지 3면은 주거형(다세대, 다가구) 건물로 채워진 인접 필지와 접해있다. 준공업지역인 성수동은 필지별 높이 산정이 산술식으로 결정된다. 27m 남짓한 높이가 기준이 되면서 8층의 좁고 높은 건물의 볼륨이 부동산적 규모로 결정됐다. 60%의 건폐율과 8층 높이의 용적률, 법정 주차대수를 조율하면서 건물의 매스를 계획했다. 여기서 좁은 필지에 들어설 수직 형태의 기하학은 양보할 수 없는 성수동의 부동산적 욕망이 담긴 매스로 인정하면서 건축적 가능성을 찾아가는 출발점이 됐다.






Section

Section
도시환경과 상호작용하는 수직 표층
8층 규모의 용적은 주차대수 설계의 한계로 잉여 용적이 생겨났다. 우리는 남은 용적에 도시환경에 대응하는 INTERWALL(사이 벽)을 계획했다. 이 벽은 8층 높이의 벽으로 층마다 비움과 채움, 수직과 수평, 열림과 닫힘, 가림과 채광, 봄과 보임의 방식으로 도시환경과 관계를 맺고 조직을 만드는 표층이 된다. 수직 표층은 건물의 파사드가 되면서 낮과 밤, 시간에 따라 변화하는 빛으로 다양한 내부 공간 경험을 만들고, 도시의 외부 입면이 된다. 이러한 전략은 도시 경계에서 사성(私性)의 격리적 표피에서 공성(共性)의 관계적 표층으로 바뀌게 할 것이다.







Site Plan

Plan_B1

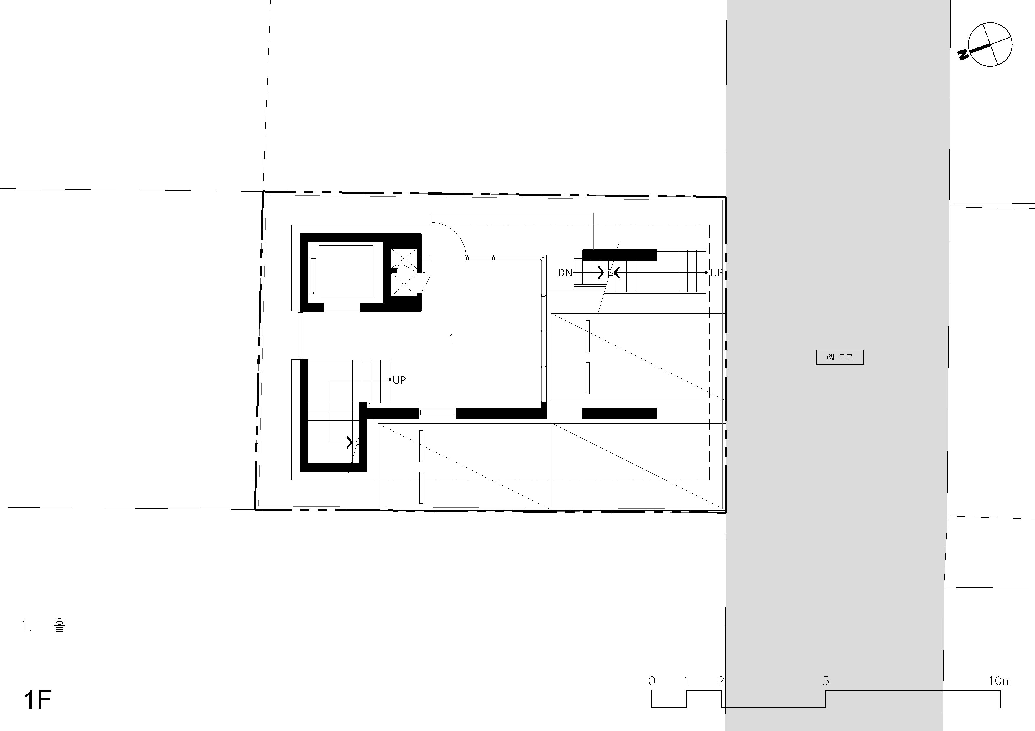
Plan_1F
맥락적 환경에 대응한 내부화된 상업성
인접 필지는 주거용 건물이 자리해있다. 내부가 보여야 하는 근린생활시설의 방향성과 주거 생활자의 사생활 보호가 충돌됐다. 주거용 건물이 밀집된 대지의 맥락에 대응하기 위해 벽돌을 쌓아 닫힌 입면의 상업시설을 제안했다. 전체적으로 닫힌 모습이지만 벽돌을 쌓는 방식을 통해 적절한 시선의 투과와 채광을 받을 수 있게 계획했다. 주변 높이와 건물의 시선 문제를 체크하고, 각 상황에 맞도록 닫힘과 열림, 다공쌓기 방식을 결정했다. 벽돌의 모듈은 입면 전체의 비례 관계 속에서 벽돌 규격과 쌓기 방식이 정해졌다. 최고 높이와 도로 전면 활용 폭이 결정된 상황 속에서 23.5☓11☓5cm 규격의 벽돌을 사용했다. 다공 쌓기 방식에서도 전체 매스 크기를 고려하여 두 단을 겹으로 쌓아서 만든 크기로 결정했다. 나머지 크기의 창도 전체 크기의 비례와 관계 속에서 결정됐다. 이렇게 구성된 입면의 전략은 주변 맥락과 관계 속에서 새로운 상업적 가능성을 만들어 준다.





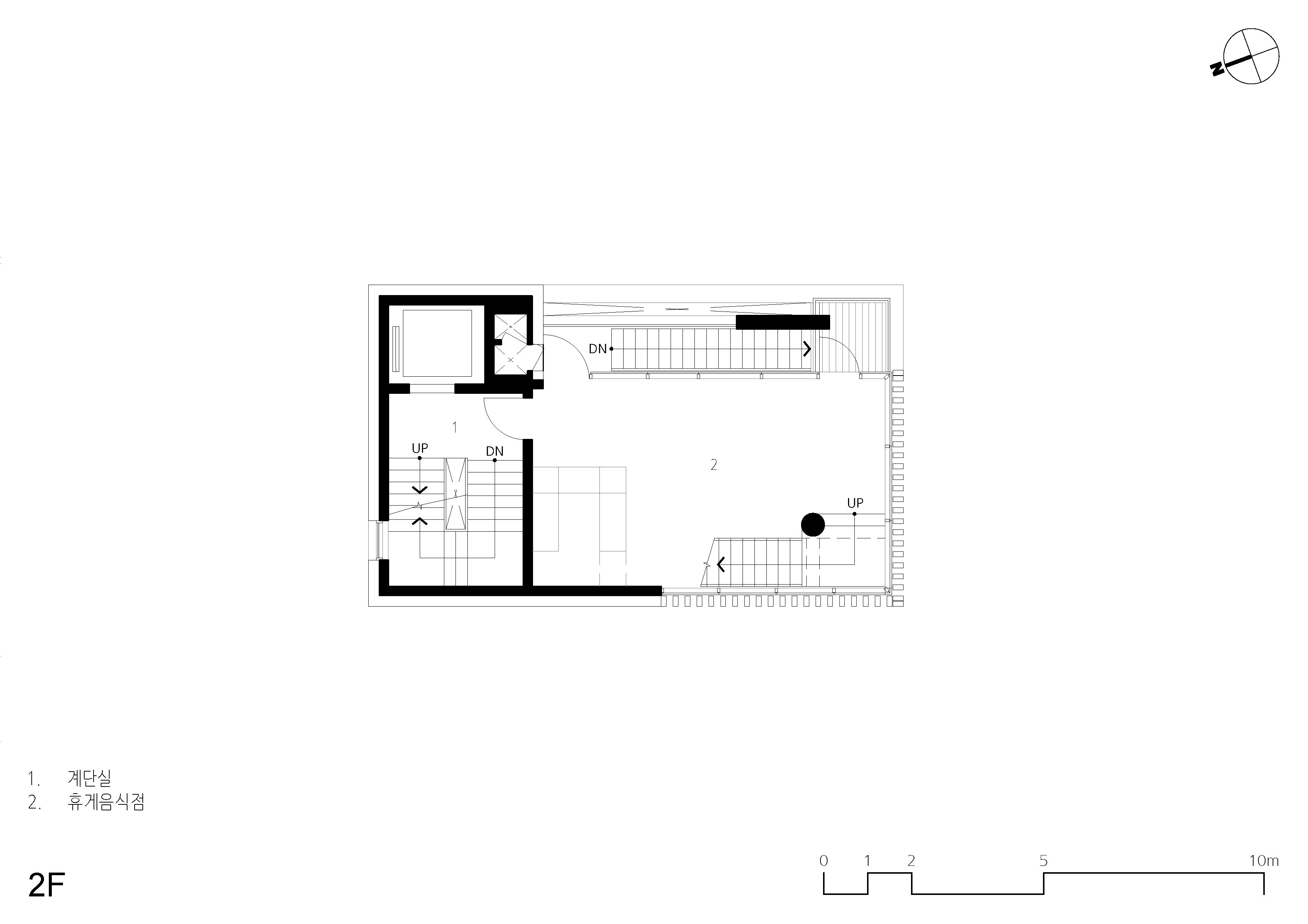
Plan_2F

Plan_3F

Plan_7F






Plan_8F

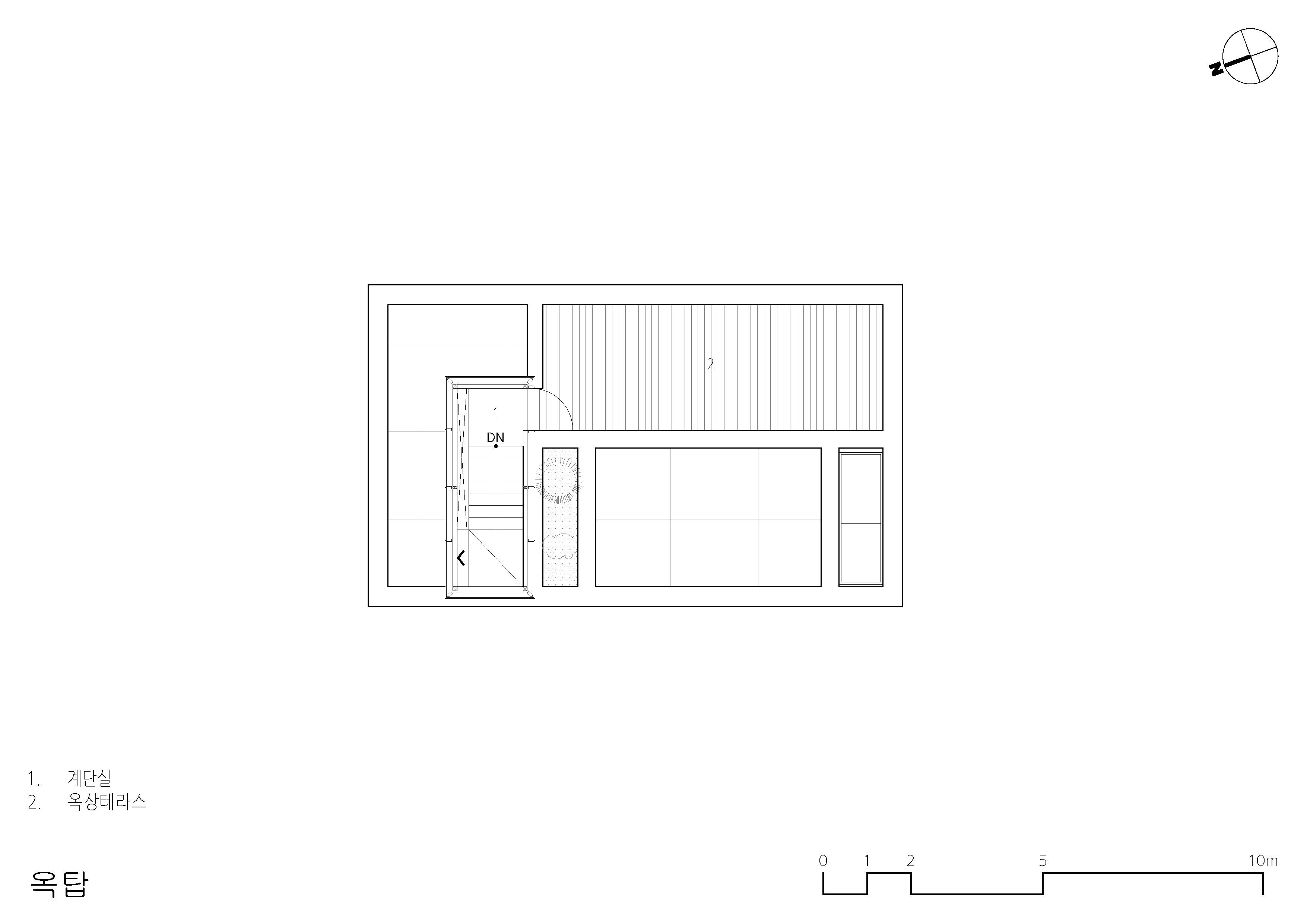
Plan_Rooftop
















