
사진




Diagram
대한민국의 오늘을 살아가는 세 가족, 작은 땅에 담은 그들의 소망
안타깝지만 대한민국 도심 단독주택단지의 개별 필지는 시장에서 구매 가능한 적정가격 설정으로 인해 넓지 않다. 지구단위계획 지침에 의한 담장 높이 제한으로 프라이버시 확보도 쉽지 않은 것이 현실이다. 결국 넉넉하지 않은 대지를 효율적으로 사용하여 그들만을 위한 아늑한 공간이 되도록 건축적으로 깊이 있는 고민과 섬세한 솔루션이 필요하다. 비슷한 상황의 용인 기흥 동백지구 홀츠하임 2차 단지에 자리 잡은 '하늘 열린집'도 설계 초기에 많은 논의가 있었고, 주변상황, 대지, 옥외공간, 매스의 입체적 맞춤을 통한 최적화의 필요를 인지하는 것으로 부터 설계가 시작 되었다.




Elevation

Elevation
내외부 경계를 허물다
‘내부 VS 외부공간’이 아닌 대지 내 모든 공간이 내부가 될 수 있다는 생각으로 시작했다. 처음부터 내외부 공간을 구분 짓지 않는 게 공간의 효율성을 극대화하고, 프라이버시가 확보된 외부공간을 구성할 수 있는 방법이었다. 그 후 법적인 내용, 사생활 등 주변의 관계, 내외부 공간의 관계 등을 고려하여 필요한 부분을 조금씩 비우고 열어나갔다.
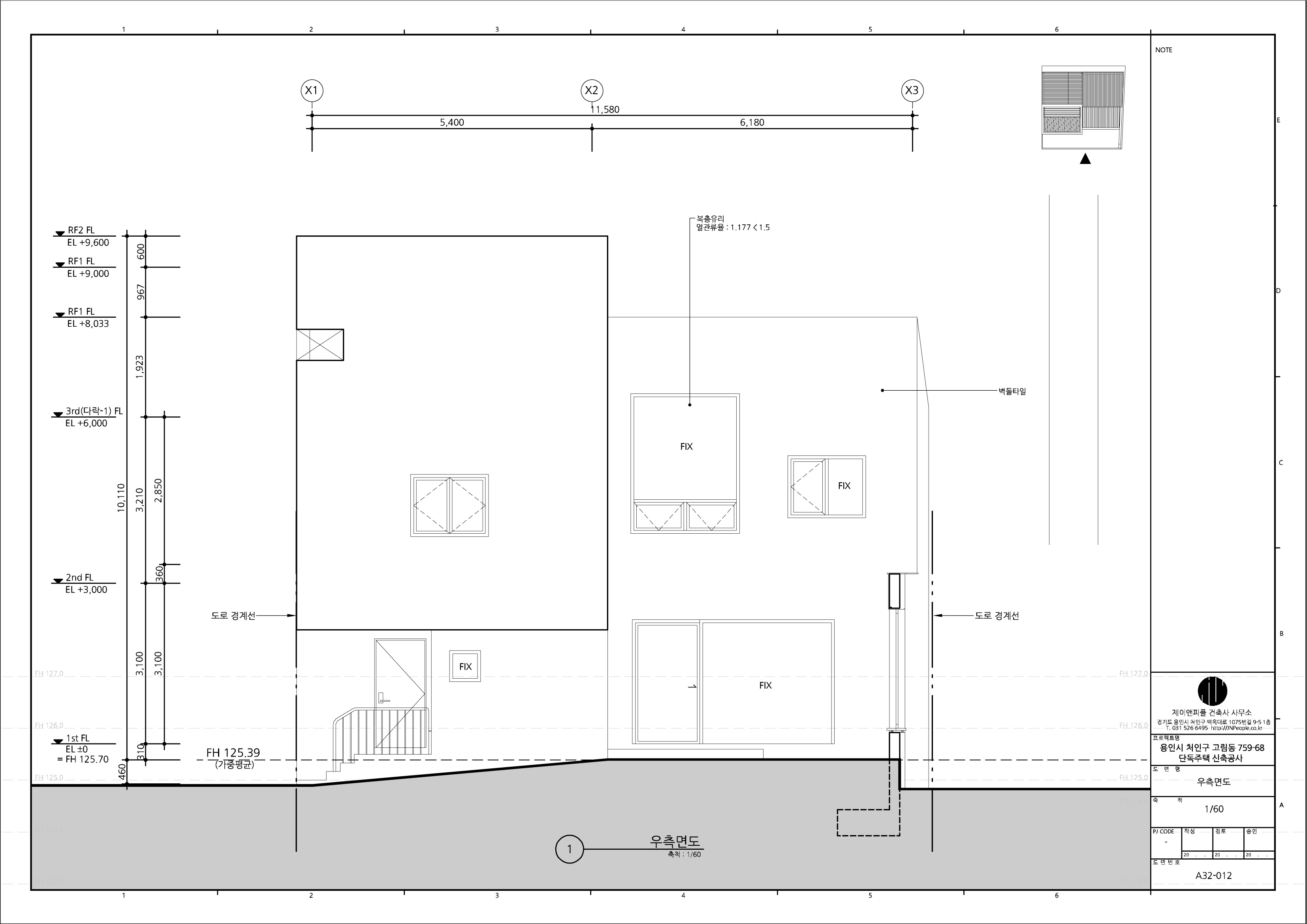
남쪽 전면의 숲과 도로
전면에는 숲과 낮은 레벨의 도로가 있다. 도로에서 마당이 올려다보일 수 있어 선택적으로 여닫을 수 있는 슬라이딩 간살도어를 포함한 가벽을 설치했다.




Section
하늘, 햇볕, 숲, 바람을 담은 집. 문을 활짝 열고 자연을 느낄 수 있는 공간
비워진 공간에 하늘과 햇볕 그리고 숲과 바람을 담았다. 때로는 열고 때로는 닫을 수 있다. 내부도 외부도 아닌 중의적 공간이 만들어졌다. 발코니 조차 내부공간으로 만들어 버리는 구성은 아파트가 절대 가질 수 없는 공간구조다.
아이의 놀이공간
주차장과 마당은 연결되어 필요에 따라 하나로 넓게 쓸 수 있다. 목재 루버의 사이로 하늘을 볼 수 있고, 뜨거운 햇볕을 막아준다. 바람이 통하는 마당은 가족의 작은 이벤트가 이루어진다. 1층 놀이방에서 놀던 딸아이는 어느덧 마당에 나와 모래놀이를 한다. 놀이방, 마당, 거실, 주방은 아이를 위한 안전하고 커다란 놀이터다.




Section
아이의 안전한 실내외 놀이터
보통 활동량이 큰 아이는 여기 저기 돌아다니며 엄마의 시야를 벗어나려 한다. 주방에 있는 엄마는 늘 아이를 시야에 두고 싶어 한다. 그래서 1층 주방의 맞은편에 아이의 놀이방을 배치하고 시야를 열었다. 벽면 하부는 지저분해 보일 수 있는 놀이기구를 가려주는 역할을 한다. 아이 방과 마당, 주방과 거실을 돌아다니는 아이는 언제나 엄마와 눈을 마주치며 교감할 수 있다.
함께하는 공간에서 사생활과 소통이 공존하는 공간으로
언제나 어릴 것만 같았던 그 아이는 어느덧 성장한다. 부모와 늘 한 공간에 있을 것만 같았던 아이는 잠자리 독립을 하고, 혼자 하고 싶은 것들이 생겨 자기만의 공간을 소유하고자 한다. ‘함께'보다 '사생활’이라는 키워드가 점점 중요해진다. 프라이버시는 다른 집과의 관계뿐만 아니라 가족 간에도 필요하게 된다. 동시에 가족이 서로 바라보고 소통할 수 있는 구조가 필요하다. 아이가 자란 후, 1층 아이 방은 손님방으로 이용될 것이다. 1층은 공용공간으로 2층은 가족공간으로 구분된다. 2층 가족실, 부부 방, 아이 방, 다락은 자연스럽게 서로 시선을 공유하고 소통할 수 있다. 결국, 집은 특히 어린 자녀가 있는 집은 시간과 생활패턴의 변화에 대응할 수 있어야 한다.




가족의 프라이버시와 감성을 담은 공간 '하늘 열린 마당’
다락과 연계된 '하늘열린 마당'은 가족만의 이야기가 가득한 공간이다. 한여름에는 아이의 물놀이터가 되고, 여름밤 빗소리를 들을 수 있는 남편을 위한 감성공간이 될 것이다.
기성복 그리고 맞춤
맞춤은 일상에서 점점 사라져 가는 용어 중 하나다. 여러 가지 이유가 있겠지만, 선택의 폭이 넓어진 ‘기성품의 다양화’를 큰 이유로 꼽을 수 있다. 하우징 업체나 조립식 주택 등 아파트와 다른 개념의 반 기성품 집들이 점점 늘어나고 어느정도 취향에 맞춘 공간 연출도 나쁘지 않다.
집에서 '맞춤'은 기본적으로 가족구성원 개개인의 취향에 부합하는 내부 공간구성 즉 '취향맞춤'을 의미하지만, 그에 앞서 대지와 건물과의 관계에도 존재한다. 도심 내 작은 땅에 기성품 형태의 집을 넣기란 어렵다. 넣는다 하더라도 공간의 효율성이 떨어진다. 효율적인 내외부 공간확보와 주변 및 내외부 공간간의 세심한 관계설정이 필요하다. 이런 상황에서 공간은 입체적으로 해석되고 구성될 수밖에 없다. 이는 '대지와 건물의 입체적 최적화'를 의미한다.


제이앤피플이 설계하는 집들의 계획과정에는 큰 공통점이 있다. 집이 크던 작던 기능에 부합하는 최적의 크기를 찾기 위해 노력한다는 것. 어벙하게 이유 없이 큰 공간은 없다. 크다면 커야 하는 당위성이 충분이 있어야 한다. 중의적 공간은 그 자체도 하나의 기능이며 필요한 곳에 넣는다. 자투리 공간들을 모으면 새로운 가능성이 있는 공간을 만들어 낼 수 있다. 우리에게 주어진 공간과 자원(비용)은 늘 한정되어 있다. 그것을 늘 효율적으로 사용해야 할 의무가 있다. 무조건 공간을 작게 만든다는 의미는 아니다. 덜 필요한 공간을 줄이면 필요한 곳에 충분한 공간을 할애할 수 있다.
'하늘 열린 집' 대한민국에서 오늘을 살아가는 한 아이가 있는 가족이 살아갈 곳. 아이에게 어릴 적 따뜻한 감성의 공간으로 기억되기를 진심으로 바란다.


















