




Elevation

Elevation
슬픈 거리 Blue Street
양화진은 슬픈 곳이다. 조선 후기 천주교 박해로 말미암은 순교자들이 투신했던 절벽이 있는 곳이며 개화의 선각자였던 김옥균이 처형당한 곳이다. 그래서일까 서울의 2개 노선이 겹치는 역세권임에도 조용하고 한가롭다. 건축주는 쳐진 동네 분위기를 쇄신하고자 했고, 무엇보다 건축물이 돋보이길 원했다. 기존 건물은 1980년대의 연와조 주택을 용도변경 하는 것을 시작으로 2000년대에 철근콘크리트 건축물을 증축했다. 이번에도 신축이 아닌 대수선을 요청하는 걸 보면 건축주 역시 이 땅의 역사를 존중하려는 남다른 애정이 있었던 것 같다.





Section

Section
핑크빛 기류 Pink Atmosphere
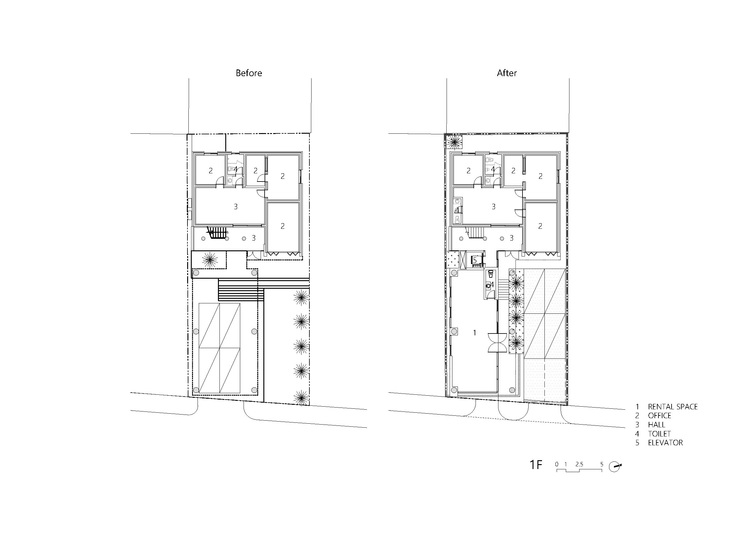
먼저 우리는 가로에 대응할 수 있는 가장 사업성 높은 방법으로 기존 필로티 주차장을 옥외로 이동시키고, 그 공간을 증축하는 것과 엘리베이터를 신설하는 방법을 구상했다. 건축물 규모 및 가로의 특성상, 각 층에 따로 임대 둘 가능성이 많다는 것을 고려하여 엘리베이터와 로비의 위치를 기존의 건축물 후면에 있는 계단실과 최대한 가까운 곳에 배치했다. 그러한 이유로 건축물로 진입하는 주 출입구의 위치가 1층 임대공간의 손실이나 간섭이 없도록 섬세하게 배치할 필요가 있었다.




Plan_1F

Plan_2F
아마도 이 거리를 어떻게든 활성화 시키려는 노력이 우리 말고도 오랫동안 지속 되었나 보다. 좌측 건물은 노란색 벽, 우측 건물은 파란색 창. 파란 하늘과 건축물 앞 푸른 나뭇잎까지 온갖 색채가 가득한 이곳에 남겨진 것은 단연 붉은색이었다. 혼란의 거리에는 주변 건축물에 무조건 대비하는 색감이어야만 최상의 눈길을 끌 수 있다고 보는데, 기존 건축물 또한 오렌지색을 메인 컬러로 적용한 것도 나름의 이유였을 것이라 본다. 하지만 좀 더 존재감을 드러내고 좀 더 입체감을 표현하기 위해 톤 온 톤(Tone in tone)의 감각을 적극 사용하는 것으로 건축주에게 제안했고, 과감하게 칠을 해 나갔다.

Before



Plan_3F

Plan_4F
하라이트 플라츠 Halite Platz
선의 두께감과 간격, 루버의 각도에 따라 면으로 보일 수 있는 깊이를 바탕으로 둔 선과 면의 구성은 마치 핑크색 암염(Halite)이 떠오른다. 억겁의 세월 동안 묻어져 있던 것을 노력 끝에 발견해 낸 소금과 같은 귀중한 느낌이면 좋겠다.
하라이트 플라츠는 화창한 여름날 푸른 나무와 파란 하늘로 보색대비를 이루고, 노란 낙엽과 하얀 눈발에도 어울릴 수 있도록, 어디에서 바라보든 이 건축물이 생동감 있는 유기체로서 좀 더 활발한 가로가 되길 희망한다.■



















