
사진




Diagram

Diagram

Diagram
서울숲 개장을 시작으로 2000년대 초반부터 조금씩 달라지기 시작한 성수동은 기존의 오래된 동네 모습을 재발견하고 유지하는 것에서 가치를 갖는다. 8~90년대 늘어나던 서울의 인구를 수용하기 위해 다세대 가구는 최대한 많은 세대가 살 수 있도록 만들어졌고, 그로 인해 지하부터 반지하, 지상까지 입체적인 구성이 만들어졌다. 한편으로 조잡스러울 수 있지만 다르게 보면 가로의 풍경을 다차원적으로 만들어주기도 한다. 차 한대가 지나가는 정도의 도로폭이 만들어내는 스케일, 당시 가장 보편적으로 사용되던 붉은 벽돌의 외장은 사람들이 친숙하고 편안하면서도 흥미롭게 느낄 수 있도록 해 주었고, 이것이 성수동의 정체성이 되었다. 이처럼 오래된 동네의 모습은 다양한 아이디어, 디자인 그리고 프로그램들이 조금씩 더해지면서 더욱 매력적으로 변해가고 있다. 한쪽에선 지나친 상업화를 우려하지만, 고민해야 하는 지점은 상업화 그 자체보다 그 안에서 어떻게 정체성을 유지하며 공존할 것인지로 보인다.




Elevation

Section
이 프로젝트는 그런 관점에서 시작했다. 오래된 다가구를 상업 공간으로 바꿀 때, 지역과 골목의 정체성을 잘 유지하면서 어떻게 이웃한 주거 건물과 불편하지 않게 공존할 수 있을까 하는 것이다.





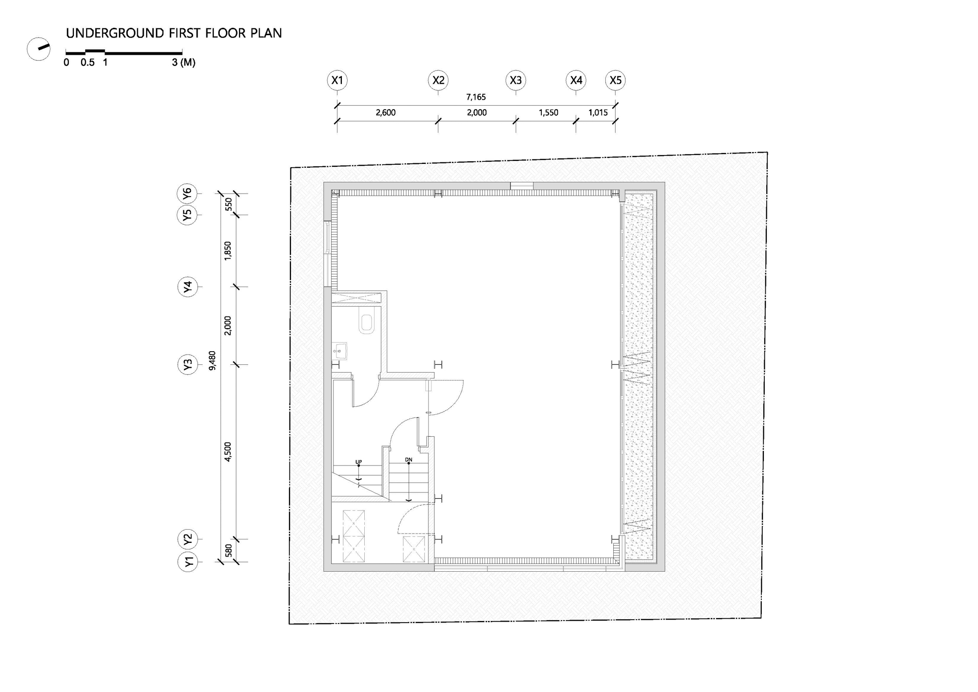
Plan_B1

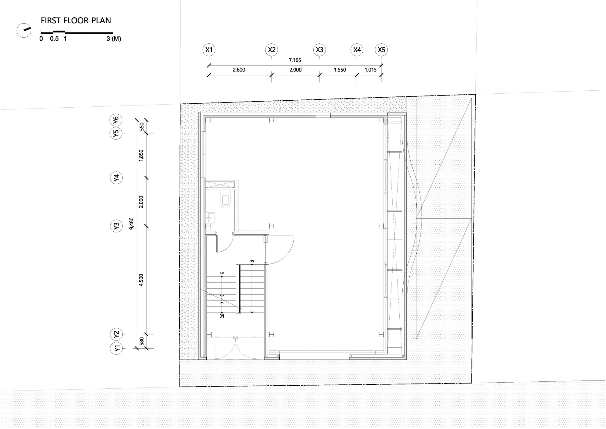
Plan_1F
그 방식은 크게 두 가지다. 하나는 외장에 관련된 것이고, 하나는 창에 관련된 것이다. 상업 건물로 내부에 개방감을 만들기 위한 커다란 사이즈의 창과 유리가 필요했다. 하지만 커다란 창은 이웃해 거주하고 있는 주민과 불편함이 생겨날 수 밖에 없다. 그래서 이중 외피와 같은 방식으로 내부는 유리가 주는 투명함과 개방감은 만들되, 외부의 시각적 불편함을 걸러줄 수 있는 외피를 한 켜 더 구성하였다. 외피는 옆집의 시선을 차단하는 동시에, 하늘을 향해 열리는 곡면 형태로 만들어 서로 다른 기능적 요구를 충족시키고자 했다. 곡선의 형태는 기능을 충족하면서 전체 건물 이미지의 차별화를 위한 요소가 되었다.




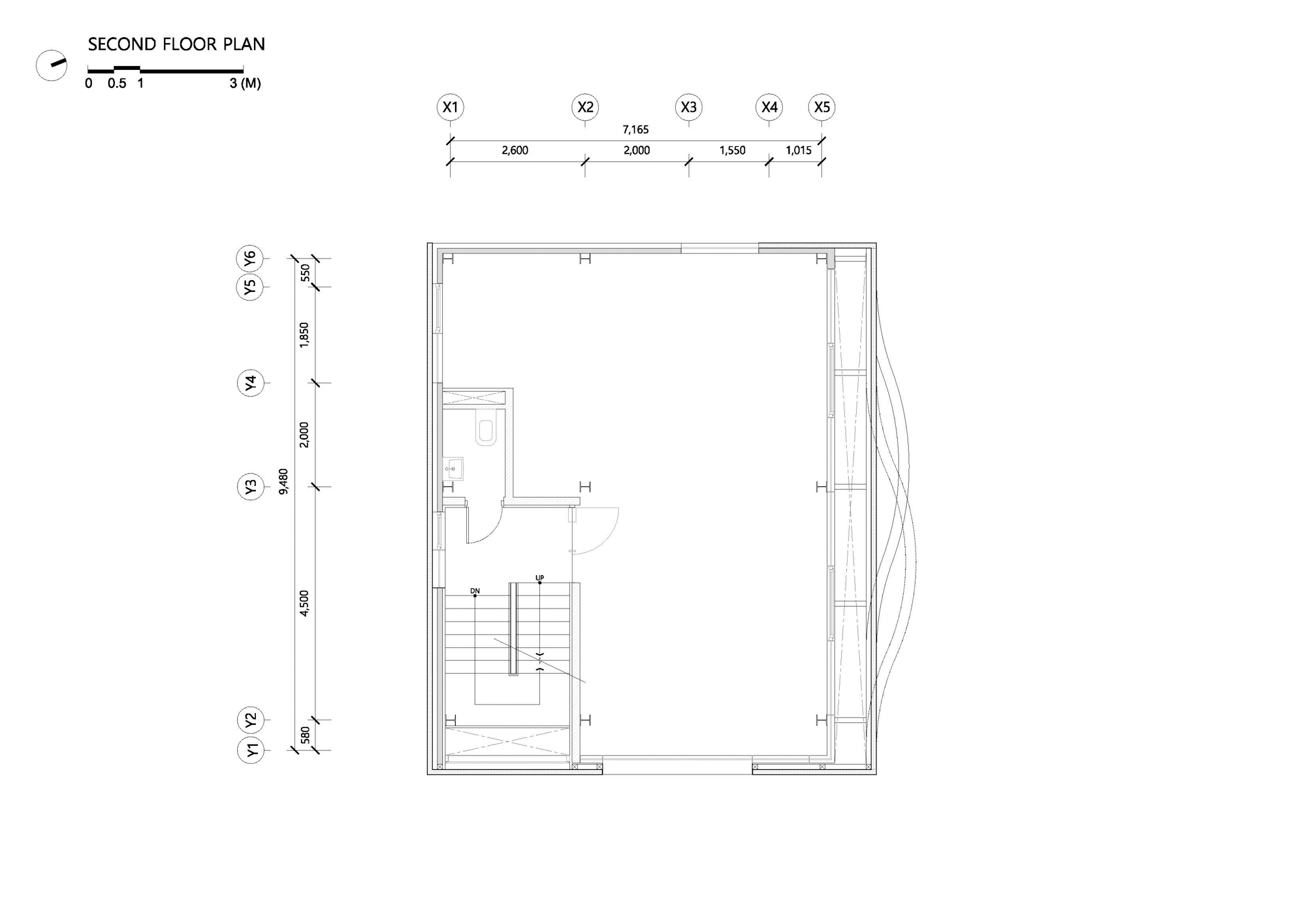
Plan_2F
외장 재료는 자연스러운 붉은 벽돌을 사용했다. 현재 성수동을 정의하고 있는 재료이기도 하고, 법적으로도 규정되어 있다. 성수동의 건물들이 갖고 있는 스케일을 고려하여 벽돌이라는 하나의 재료를 사용하지만 쌓는 방식과 곡면을 통해 시각적으로 느껴지는 스케일이 한 개 층을 넘지 않도록 전체 매스를 분절하였다. 벽돌을 통해 곡면을 만드는 것은 물리적으로 여러 어려움이 있었다. 벽체가 중간중간 분리가 되어 벽돌의 하중이 기초로 전달되는 것이 아니라, 별도 구조체를 통해 공중에서 매달려 있어야 했기 때문에 구조적으로도 어려운 과제였다. 곡면을 구현하기 위해 벽돌의 시공 방식은 건식시공으로 진행했고, 곡면부 처리를 위해 3차원 시뮬레이션을 통해 환봉을 각도에 따라 모두 확인한 후 현장 시공을 진행했다. 그럼에도 현장에서 오차가 있었고, 완성을 위해 현장 작업자분들의 많은 노력이 필요했다.




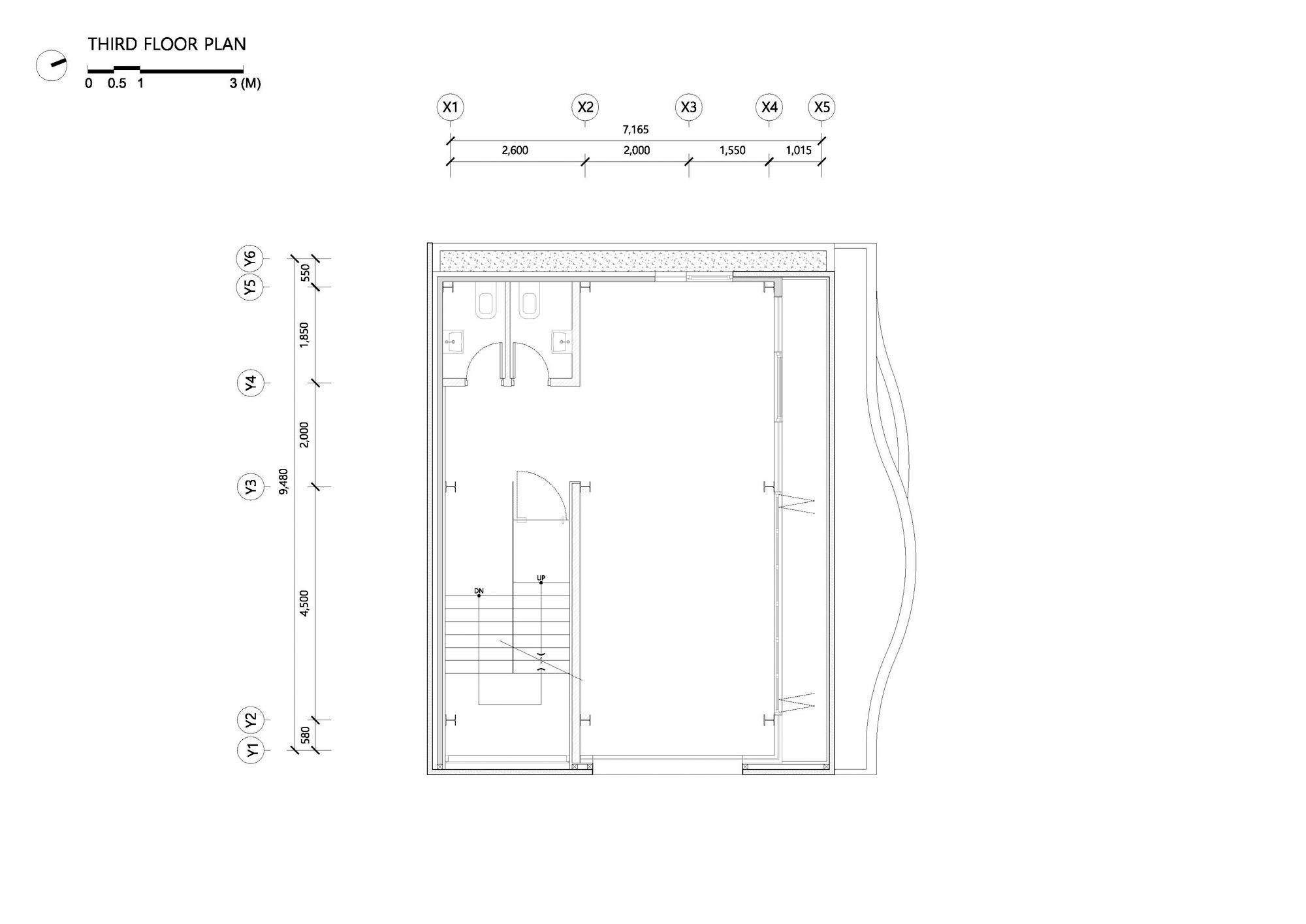
Plan_3F
평면적으로 봤을 때 상가 건물로 효율적으로 활용하기 위해 계단실을 옮기고 주 사용 공간을 곡면 벽에 접해서 사용할 수 있도록 수정했다. 곡면 벽과 이웃한 곳은 전체 유리, 테라스 혹은 조경을 설치해 외부에서는 보이지 않는 내부 개방감과 활동성을 만들었다.




Plan_4F
공사가 끝나고 지금은 모든 층이 하나둘 채워져 붉은색의 건물에 또 다른 생기가 만들어졌다. 의도했던 것처럼 건축은 동네의 정체성을 존중하는 방식을 취하고, 그 안에는 동네의 새로운 활기가 될 수 있는 프로그램들로 채워져 사람들이 오가는 건물이 만들어졌다고 생각한다.■

















