



“성이다. 집은 가족의 안전과 평화를 지켜주는 성이다. 성안에서 성대한 연회가 열린다. 자신이 좋아하는 악기를 들고 연주를 시작한다. 음악의 선율을 따라 주변에 사람이 모인다. 단차가 있는 곳에는 사람들이 모이기 마련이다. 삼삼오오 짝을 이루어 앉은 사람들 머리 위로 동그란 빛이 떨어진다. 세모난 하늘 위로 구름이 떠내려간다.”
무던히도 더웠던 2018년 여름, 한 아이를 안은 젊은 부부가 찾았다. 요청 사항은 다음과 같았다. ‘위례에 땅을 샀다. 집을 짓고 싶다. 비용 회수를 위해 단독이 아닌 듀플렉스로 짓고 싶다. 하지만 어디서 어떻게 시작해야 할지 모르겠다.’




여러 건축가를 만나고 온 건축주는 젊은 건축가에게 몇 가지 기대가 있었다. 하나, 성심성의껏 작업에 응할 것이다. 둘, 기존의 건축과 다른 결과를 낼 것이다. 셋, 의견을 개진하는데 있어서 잘 들어줄 것이다. 그렇게 젊은 건축가와 건축주의 집 이야기가 시작되었다.





Section

Section
모서리 땅
위례 신도시는 주변의 모든 건물이 지어진 지 5년 이내로 새로운 도시가 형성되고 있다. 한 집 걸러 한 집 공사가 이루어지고 있었고, 서로 자신을 뽐내기 위해 서로 경쟁이라도 하는 듯이 느껴졌다. 이러한 상황 속에서 디자인 방향을 잡는 일은 오히려 손쉬운 작업이었다. 시끌벅적한 형태보다 단순하고 강렬한 형태로 목소리를 낸다. 묵직하게 자리 잡은 모습을 통해 주변의 새롭고 적극적인 목소리와 대조된다. 조용하지만 나지막하게 도시 속에 자리 잡기를 바랐다. 건물의 형태는 대지에 맞춰 자연스럽게 도로를 등진 ‘ㄷ’자로 배치하게 되었다.




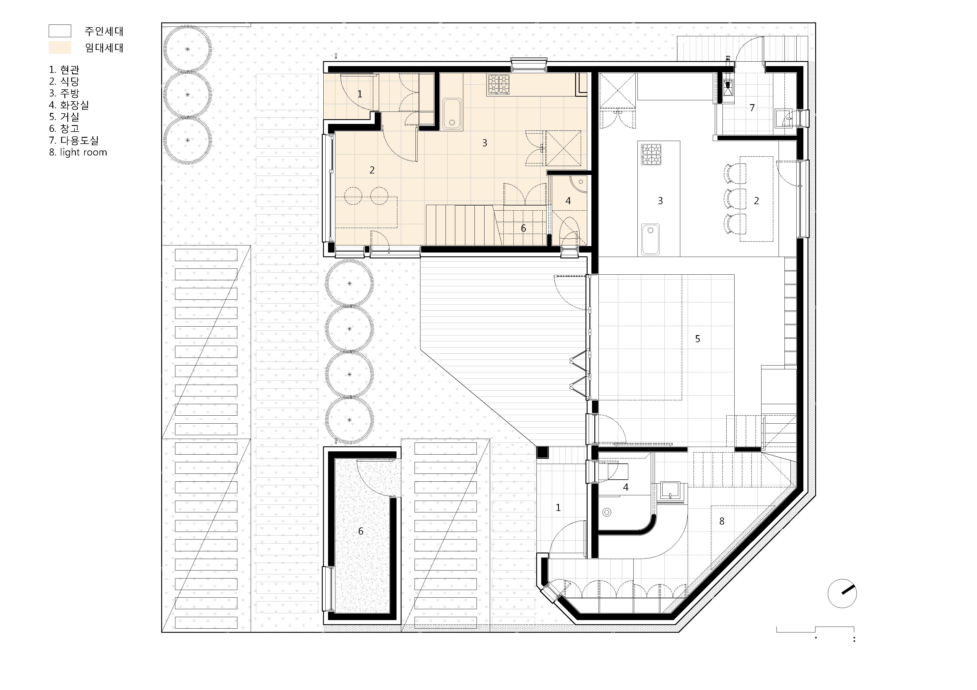
Plan_1F
높은 땅값과 부족한 대지는 한 필지에 한 가구를 짓는 일이 사치로 느껴지게 한다. 건축주 역시 이런 문제를 해결하고자 듀플렉스 하우스로 집을 짓길 원했다. ‘ㄷ’자로 배치된 건물 형태를 따라 위쪽의 직선은 임대세대가, 아래쪽의 ‘ㄴ’자는 안마당과 함께 주인세대가 점유하는 방식으로 평면을 풀어나갔다.



건축주
건축주와 매주 인터뷰와 워크숍을 진행하며 그들의 생각에 공감할 수 있었다. 단독주택에서 살아본 경험이 없는 건축주는 단독주택에 대한 꿈과 관심이 매우 컸다. 매주 새로운 아이디어를 제안했고, 라이프스타일에 대한 고민을 공유했다. 건축주는 높고 밝은 집 아래 가족 음악회를 꿈꾸었다. 평소 음악 감상과 와인을 즐긴다는 건축주의 소망을 담은 집을 함께 그려갔다. 1층은 가족들이 음악회를 즐기는 무대다. 거실과 주방은 2개의 단으로 나뉘어 자연스레 객석과 무대가 형성되고, 동그란 아치 문은 주인공이 등장하는 듯한 느낌과 재미를 준다.




Plan_2F
설계에서 가장 중요하게 생각했던 부분은 현관이다. 흔히들 흘러 지나가는 곳이라 여겨 중요성이 떨어지는 곳이지만, 조금은 사치를 부려 천창이 있는 포켓 정원으로 만들었다. 서로 엮이는 계단과 시선, 흘러들어오는 빛은 작은 공간 속에 다양한 이야기를 담는다.




집의 전체적인 인테리어는 외관의 무거움을 덜어내는 방향으로 진행됐다. 커다란 볼륨이 주는 무게감에 건축주가 짓눌리지 않도록, 오픈 부위는 곡선을 활용하여 무게감을 덜었고, 조형이 주는 재미와 아름다움을 집안 내부에서도 즐길 수 있게 했다. 시간에 따라 달리 떨어지는 빛의 모습이 내부에서 잘 연출 될 수 있도록 최대한 단순한 형태의 조형으로 내부 공간을 만들어갔다.




Section
임대세대
주인세대의 강한 취향과 이상과는 달리 임대세대는 보편적인 특성과 더불어 집의 조화를 깨지 않는 범위 내로 진행했다. 작은 평수의 집이지만 누가 들어와서 살던지 단독주택만이 줄 수 있는 소담한 공간감을 만들 수 있게 구성하였다. 1층은 식당과 주방을 배치하여 포켓 정원을 바라보며 즐거운 한 끼를 나눌 수 있고, 2층은 거실과 침실을 배치하여 생활에 불편함이 없도록 하였다. 면적의 불리함은 수직적인 확장으로 동일 면적대 아파트에서는 느낄 수 없는 쾌적한 환경을 만들 수 있었다.




Plan_Attic
집은 건축주와 건축가, 그리고 시공사가 함께 짓는 것이다. 자신의 취향을 알고 그를 현실화 하는 데 있어서 지속적인 협의 작업이 필요하다. 하나부터 열까지 모든 과정과 순간을 함께한 건축주 내외분의 에너지와 열정에 다시 한 번 감사와 경외의 말을 전한다. 그간의 고민이 투영된 집에서 행복한 일상을 만들어가길 바라본다. ■



















