




Diagram

Diagram
유튜브 콘텐츠를 기획, 생산하는 창작자를 위한 공간인 조이트로프가 추구하는 가치는 효율이 아닌, 다채로운 공간 경험과 그로 인한 창의적 생산성 향상이다. 공감각적 경험을 통한 자극이 영감이 되고, 업무와 업무 간 피로를 다스릴 만한 여유가 있는 공간을 벽, 선컨, 계단이라는 단순한 건축어휘로 구상했다.



Elevation

Elevation
조이트로프는 여러 장의 그림을 회전시켜 움직이는 환영을 볼 수 있도록 하는 초기 애니메이션 기구로, 겉에서 보았을 때는 알 수 없지만 속을 들여다보면 계속해서 바뀌는 그림들이 연속으로 움직이는 장면을 만든다. 주거지 깊숙한 곳에 자리 잡은 이 건축물 역시 겉으로 보았을 때 무심한 벽으로 인지되지만, 건축물 안에서 내, 외부가 중첩된 장면과 계단을 오르내리며 이어지는 유연한 시선으로서 창작자들이 이곳을 탐험하며 자신만의 경험으로 공감각적 기억이 축적될 수 있도록 하였다.




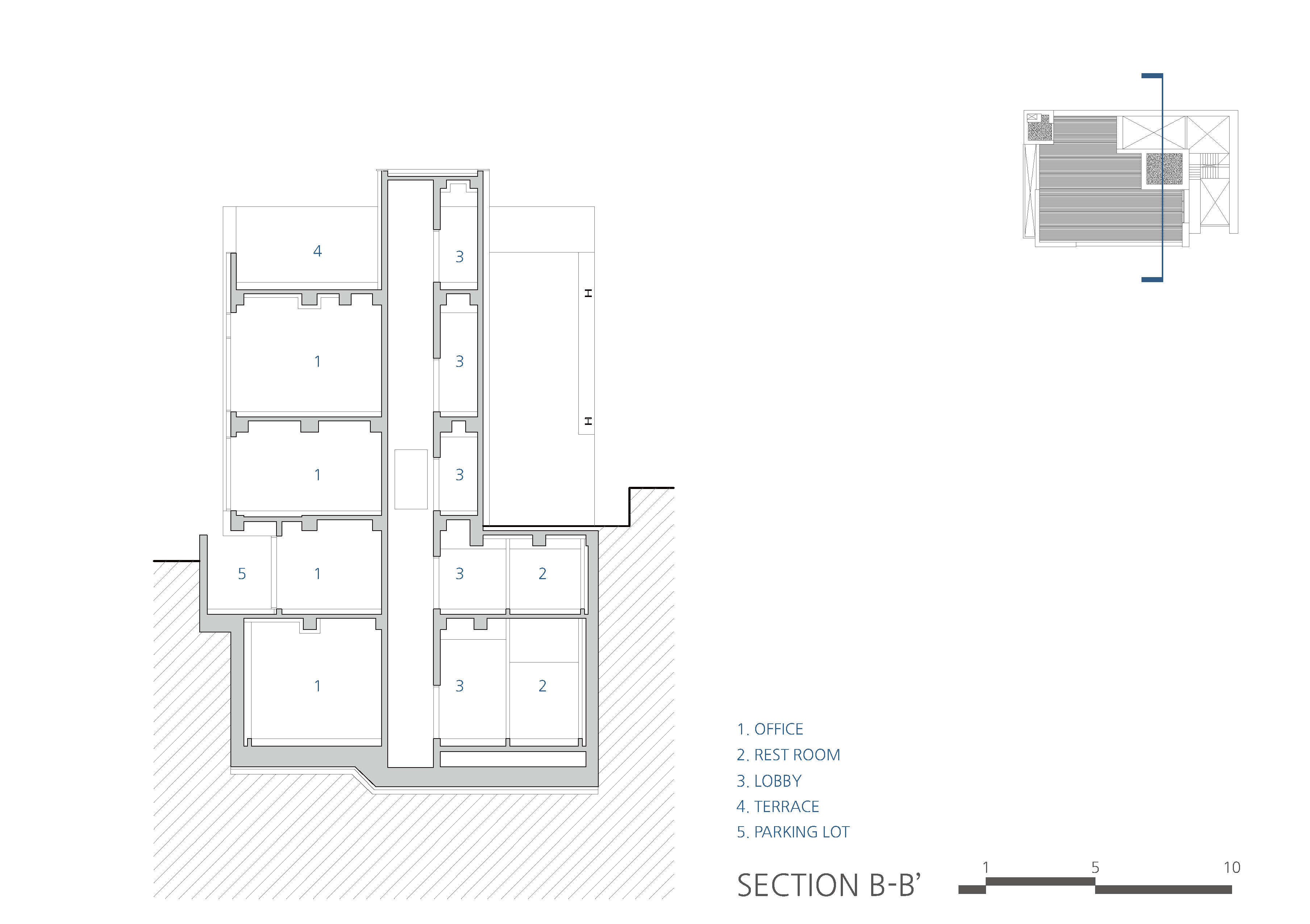
Section

Section
안과 밖의 경계에서 감상의 대상이 된 벽
벽은 내가 서 있는 위치에 따라 달라지는 편집된 풍경을 보여주기도 하고, 일조의 시간대에 따라 다채로운 그림자를 연출하여 생경하게 느껴지는 스크린이 되기도 한다. 오랜 업무동안 마주해야 하는 지루한 벽이 아니라 차를 마시러 갈 때, 기지개를 켜기 위해 자리에서 일어날 때 등 일상의 틈에 시선을 멈추고 ‘감상하는 벽’이 되길 바랐다.




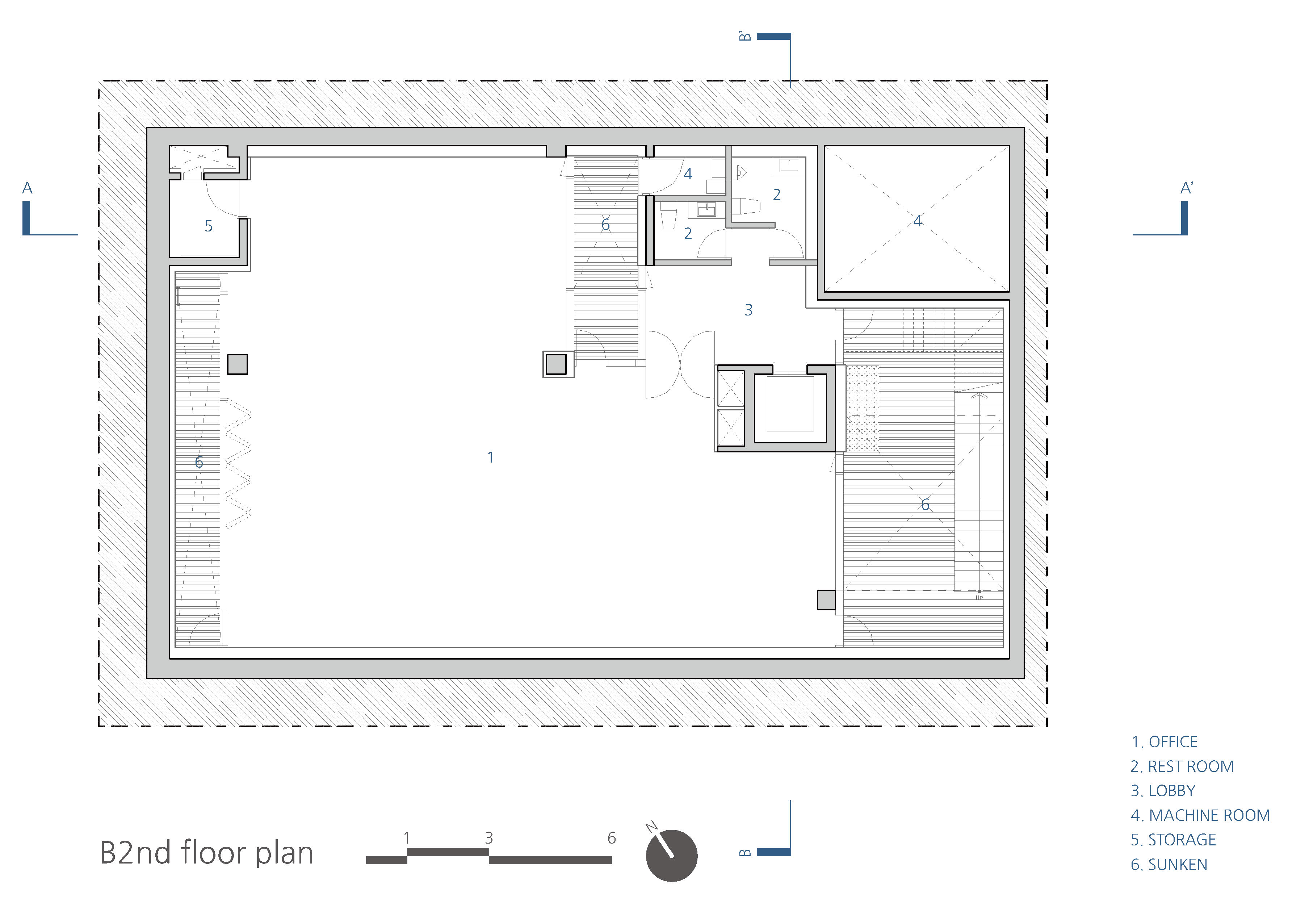
Plan_B2

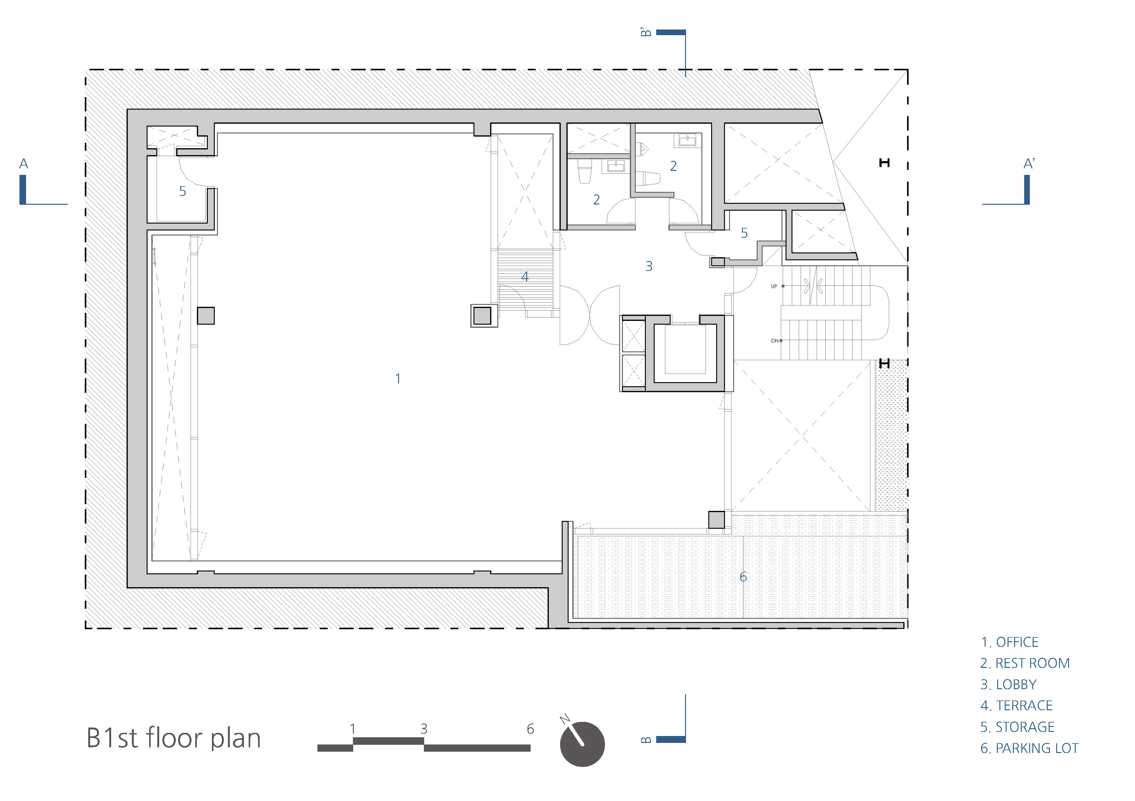
Plan_B1
빛의 중첩이 시나리오가 되는 선컨
이곳의 가장 중요한 시설인 스튜디오 촬영 공간은 넓은 공간과 높은 층고가 마련된 지하 2층에 배치하였다. 환경적으로 기피 대상인 지하 공간에 과감하게 3개의 선큰을 교차 배치하여 빛과 자연환기로 쾌적하면서도 에너지 효율이 높은 환경을 만들었다.



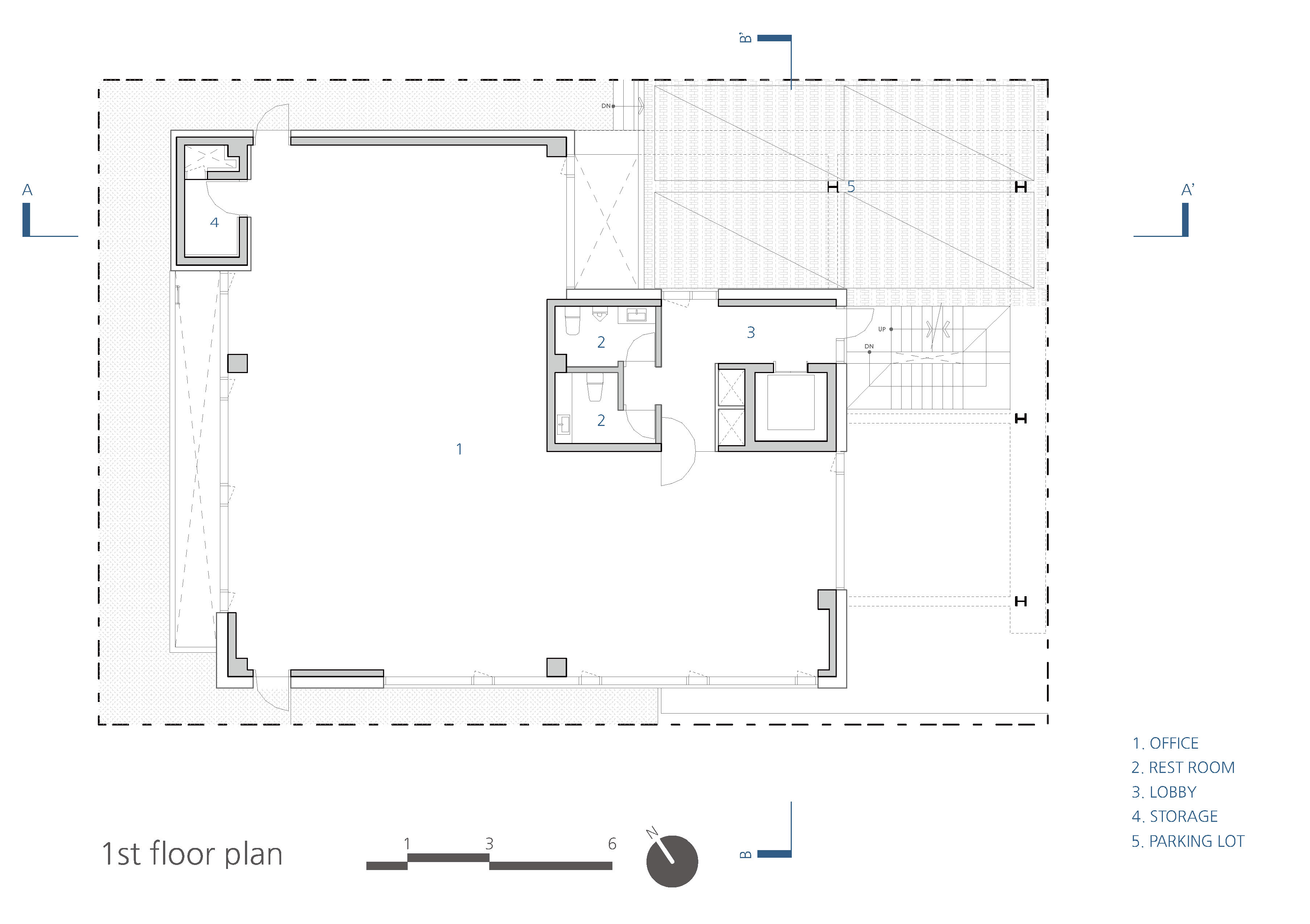
Plan_1F
일상의 환기가 되는 계단
계단은 도로에 면한 주차장과 선큰으로부터 남은 공간에 마련된 건축물의 진입로와 겸하는데, 계단 양옆이 열려 있어 마치 공중을 걷는 듯한 느낌으로 각 층을 이동할 수 있다. 계단의 끝은 서울의 스카이라인을 조망할 수 있는 전망대와 넓은 데크를 구성하여 직원들에게 탁 트인 하늘과 스카이라인을 바라보며 비일상의 여유를 느낄 수 있다.



Plan_2F



















