
사진



Diagram

Elevation

Elevation
주거지역에 위치한 사무소를 주택으로 리모델링하기
리모델링 건축물은 강릉시청과 터미널이 가까이 위치하고 있고 대로변으로는 상업지역으로 한 블럭 뒤 주거지에 정적인 분위기의 사무소를 운영하고 있던 건축물을 부부가 거주하는 주택으로 리모델링하는 프로젝트이다. 북서향으로 경관이 열려있어 대관령이 보이고 남북으로 도로가 형성되어 있어 남향의 집이라기보다는 북서향으로 열려있는 형태라고 볼 수 있다. 기존 사무소를 10년 정도 사용하면서 단열문제와 사무소의 협소함을 느끼게 되어 리모델링을 하려 하였으나 오히려 사무소를 이전 신축하고 홍제동 사무소를 주거공간으로 리모델링하는 순차적인 작업이 합리적이라고 생각하여 사무소의 구조적인 변화 없이 주거를 위한 최소한의 공간의 추가와 변경을 통해서 도시에 작은 사무실 공간을 주거로 변화시키는 작업을 하게 됐다.



Site Plan

Section
추운 사무소에서 따스한 연필집 만들기
사무소 건축물의 용도가 주택으로 변경하는 과정은 그렇게 쉽지만은 않았다. 우선 건축법규의 변화로 용도변경 시 외부마감재를 준불연으로 사용하여야 하였으며 창호의 경우도 방화창으로 설치하여야 해서 공사비용이 증액됐다. 외장의 경우 기존의 내단열에서 외단열시스템으로 추가하여 시공하여 단열성능을 최상으로 하였으며 지붕의 경우는 기존 단열성능에 문제가 없어 기존 마감재를 사용하여 공사비를 아낄 수 있었다. 단열을 위해서 추가로 1층 필로티 천정에 단열을 추가로 하고 창은 레하우시스템 창을 사용하였다. 외부 입면이 유로폼노출콘크리트의 사무실에서 연두색 지붕에 흰 스터코의 몽당 연필집으로 만들어지게 된 것이다.






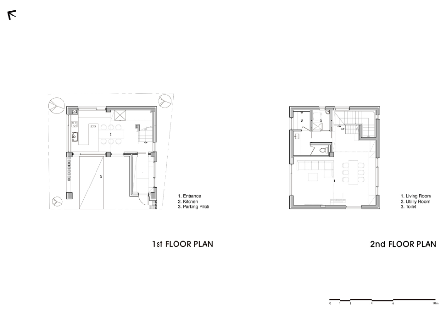
Plan_1F, 2F

Plan_3F, RF
사무소 공간에서 주택의 공간으로 변화하기
기존 사무소 공간은 단순하게 1층은 전시공간, 2층은 사무실과 화장실 및 탕비실, 3층은 직원들이 쉴 수 있는 공간으로 구성되어져 있었는데 주택으로 변경하면서 3층의 작은 공간들을 침실 등으로 나누기에는 합리적이지 못하여 1층 사무실에서는 없었던 현관을 증축하고 기존의 주차장은 유지하여 2대의 차량을 주차할 수 있는 공간을 만들고 현관을 진입하면 1층 전체를 주방과 식당으로 만들어 손님들이 방문하면 식당공간에서 접대하게 했다. 2층은 사무실 방 칸막이를 철거하고 거실을 넓게 만들고 기존의 탕비실과 화장실 공간을 샤워실과 파우더로 구분하고 세탁실을 만들었다. 3층은 기존의 뾰쪽한 천정을 그대로 두고 침실로 만들어 1층에서 3층까지 오픈된 부부만이 거주하는 공간을 만들었다.
'The Pencil'에서 연필집으로
건축사사무소예인 사옥의 별칭은 'The Pencil'이였다. 건축스튜디오에서 가장 많이 사용하는 연필의 이미지를 홍제동 사무실에 디자인 요소로 사용하였는데 연필집으로 리모델링 한 것이다. 홍제동은 시청과 터미널에서 가까운 구도심으로 주거지역과 상업지역이 맞닿아있는 곳으로, 사무소로도 주거로도 편리한 장소적 특징을 가지고 있다. 10년 정도 사용한 건축물의 경우 에너지성능이 낮아서 리모델링을 통해서 다시 성능을 향상시켜 도시의 오래된 건축물들을 지속가능한 사용방법을 보여주려고 한 작업이다.◼︎


















