



Section

Section
장소의 고유성이 담겨진 공간
마을 앞 회동 수원지를 감싸 안은 산의 풍광은 과히 신선이 노닐었을 법하다. 이곳에 보슬비라도 내리는 날이면 이산, 저 산에 물안개가 피어오르는데 장소와 지명, 그 이야기가 온전히 하나로 느껴지는 순간이다. 건축은 지나친 더함도 덜함도 없이 담담한 모습으로 이곳의 풍경을 받아들인다. 산과 물이 함께하니 많은 걸 덧대지 않아도 충분하다. 그래서인지 선유도원은 본래 동네의 모습과 닮아있다.



땅으로부터의 건축, 경관의 확장
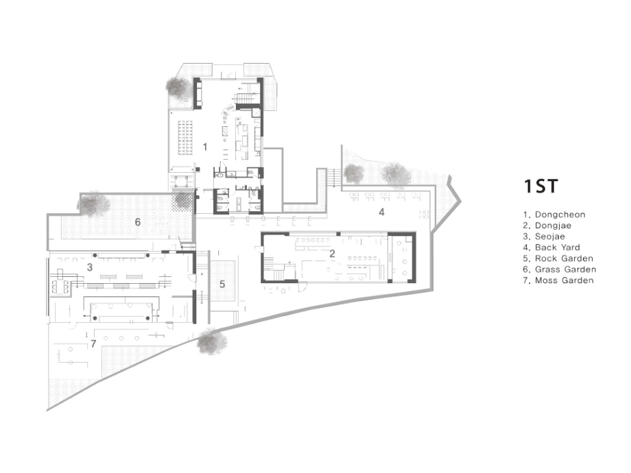
선유도원은 하천까지 이어지는 경사지에 위치하는데 3동의 건축물을 원래의 지형에 거스름이 없이 앉히고 브릿지와 계단을 통해 연결했다. 이 덕분에 생겨난 다양한 사이 공간은 다채로운 공간적 경험을 선사하고 보행자와 이웃을 위한 통경축을 확보해 수원지 풍경을 공유하게 한다. 또한 각각의 동은 서로 다른 눈높이로 풍광을 조망할 수 있게 되어 근경, 중경, 원경의 다양한 풍경을 즐길 수 있을 뿐 아니라 선유도원의 앞마당은 하천을 넘어 저수지로, 멀리 산 중턱까지 확장되어 진다.◼︎







Plan_1F

Plan_2F



















