





Elevation

Elevation
'시랑리'는 부산에서 가장 가까운 해안마을로 지가가 상당하게 비싸고, 재력가라면 누구나 가지려고 하는 투자처이자 자신의 전리품이 되고 있는 마을이다. 해안이 보이는 모든 땅들은 카페의 마당으로 변하고 있고, 단순하게 방문한 여행자들은 쉽게 바라보던 바다를 이제는 돈을 내고 보아야 하는 상황으로 내몰리고 있다. '스튜디오 해안길 감'은 이곳에 기업의 스튜디오, 라이프스타일을 제안하고 판매하는 제품을 촬영하고, 기업의 전략적 홍보와 예우를 위한 공간을 완성하는 작업이었다.




Site Plan

Section

Section
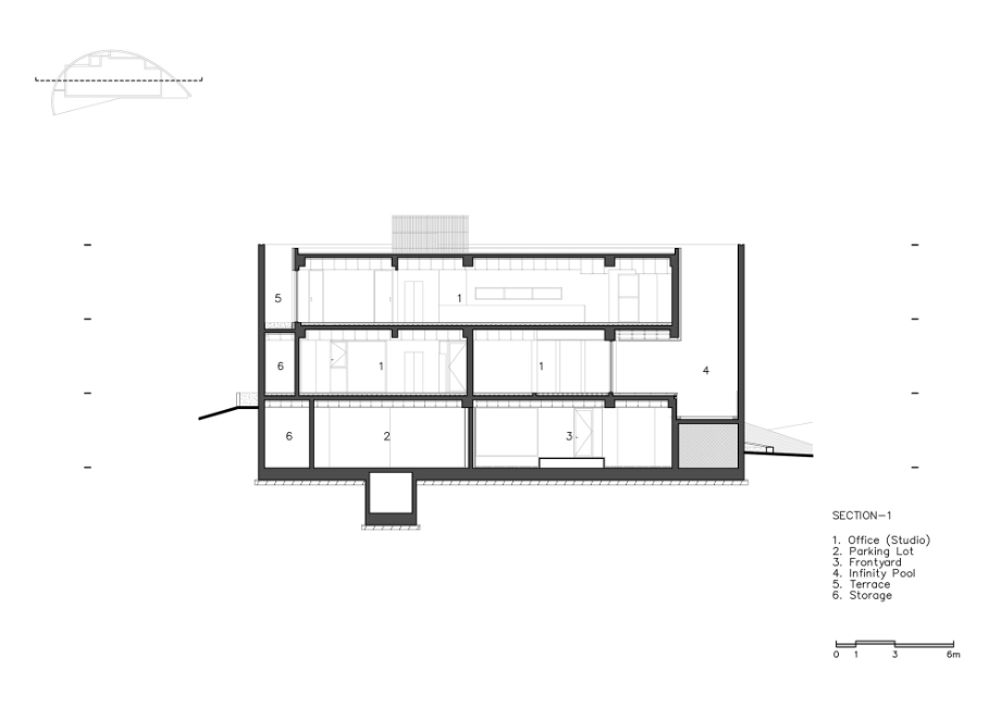
이 사이트는 4면이 도로로 둘러싸이며 바다를 직접 접하고 있는 장소이지만, 후면 도로와 전면도로가 1개 층 높이의 레벨 차이를 가지고 있어 건축이 땅의 일부가 되어야만 하는 불가결한 조건을 가지고 있었다. 이러한 점은 이 땅이 원래의 지형을 깎아내어 집을 지었던 역사를 가진 것을 알 수 있다. 항상 그리했듯이 해안과 땅의 형상은 나의 건축을 결정짓는 중요한 요소이다. 땅의 형상대로 건축의 형상을 잡고, 그것을 3차원으로 띄워 건축의 공간을 완성하는 방식은 가장 기본이 되는 공간 구축의 방식이다.






Plan_B1

Plan_1F
비록 작은 사이트이지만 이곳에 건축이 이루어지려면, 원래의 지형을 회복하면서 건축이 땅의 일부임을 받아들이는 자세가 필요했다. 하지만 이 건축의 목적은 기업 브랜드의 홍보와 젊은 이미지의 구축이었다. 상충되는 두 가치를 동시에 한 장소에서 만들어야하는 어려움이 있었기에, '양면성의 구축'을 시도했다. 기존 마을과는 땅에서의 솟음으로 대응하고, 새로운 해안길과 바다를 향해서는 인위적인 열린 공간의 스튜디오 박스들을 구축하면서 비전을 표현했다. 건축이 땅의 일부가 될 수 있다는 것을 표현하지만, 스튜디오의 내부는 모두 자유롭게 열려있고, 누구나 볼 수 있을 정도로 개방적이다.




Plan_2F

Plan_RF
내부의 공간은 치밀하게 밀도를 조정하면서 연속성과 외부로의 확장가능성을 담으려했다. 곡면 벽과 열린 박스 사이에는 모든 층을 관통하는 틈이 벌어지고, 그 틈으로 빛과 바람이 들어와 내부에서 땅이 존재함을 느끼게 해주는 조경의 공간이 된다.◼︎


















