




Elevation

Elevation

Diagram
주변 소음과 시선으로부터 자유로운 집
대지는 명봉산과 구릉지 사이의 골짜기를 따라 생긴 도로에 면하고 있다. 북동쪽으로 명봉산 줄기로 둘러싸여 있으며 남서쪽으로 넓게 트인 풍경이 시선을 사로잡는다.
이곳에서 건축주 부부는 내외부에서 취미활동과 놀이가 가능하며, 조용하고 프라이빗한 집을 원했다. 우리는 건축주의 요구사항을 충족하면서 주변 자연과 조화를 이루고, 주변 시선으로부터 간섭이 없도록 내외부로 시각적·물리적 확장이 가능한 방식을 고민했다.




Site Plan





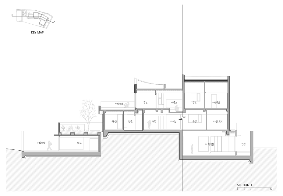
Section

Section
대지조성을 위한 성토와 필지분할
대지는 약 640평의 밭으로 사용되는 커다란 경사지였다. 이 대지를 안전하고 효율적으로 활용하기 위 해서는 개발행위를 통한 성토와 분할이 필요했다. 분할한 필지는 대지 안에서 가장 높은 지점이자 주변 제조공장들로부터 멀리 떨어진 곳으로 정했다. 이렇게 조성된 필지는 도로에 짧게 면하면서 길쭉한 형태를 띠었다.
다양한 장면으로 채워지는 여정의 공간
동서로 길쭉한 대지에 프라이버시를 확보하고 마당을 감싸는 배치로써 북동쪽으로 치우친 'ㄱ'자 형태의 배치가 이상적이었다. 북동쪽으로 주택을 배치하고 자연스럽게 남서쪽으로 잔여지가 생기게 됐다. 이 잔여지의 남쪽에는 큰 마당, 서쪽에는 도로소음 차단할 완충공간과 레벨극복을 위한 계단을 배치했다. 대지의 서쪽과 동쪽공간으로 나눠 배치되면서 도로에서 주택현관까지 20m의 동선이 생기게 됐다. 우리는 이 동선을 단순한 출입로가 아닌, 빛과 바람, 계절의 변화를 담는 공간으로 사용자에게 다양한 시퀀스를 선사하는 특별한 여정을 만들고자 했다.








프라이빗한 외부공간으로 확장
서쪽에 도로와 남동쪽 제조공장들의 시선을 차단하고, 내부에서 확장 가능한 외부공간을 만들어주기 위해서 지하1층은 콘크리트 옹벽으로 둘러진 선큰공간, 지상1층은 1.5M의 벽과 담장들로 둘러진 야외공간, 지상 2층은 난간벽으로 둘러진 야외데크를 계획했다. 층별로 벽과 담장으로 둘러진 외부공간은 외부 시선으로부터 자유로운 공간이 된다. 더불어 태양광 패널과 설비들이 입면의 시야에서 보이지 않도록 지붕의 파라펫의 높이를 조정했다.
다채로운 입면을 만드는 곡률모퉁이
지하와 지상1층의 벽과 담장은 수평선을 만들고, 2층 난간벽과 지붕 파라펫의 각 모퉁이마다 곡률을 만들면서 형태적 대비를 만들었다. 거니는 시선에 따라서 4개의 곡률모퉁이가 모였다가 펴졌다 하면서, 때로는 산세처럼, 때로는 활짝 핀 꽃처럼 자연과 조화를 이루며 다채로운 입면을 보여준다.








Plan_1F

Plan_2F
각양각색의 풍경이 머무는 주거공간
이 주거공간은 지하 다목적공간, 1층 주생활공간, 2층 게스트공간으로 구성되됐다. 1층에는 취미실, 거실, 다이닝, 주방, 안방 순으로 프라이버시를 고려해 남서쪽 도로 방향인 공적영역에서 사적영역 순으로 공간을 배치했다. 현관에 들어서면 막힌 벽이나 어두운 복도가 아닌 트인 자연풍경이 반겨준다. 그리고 거실에 들어서면 서로 다른 깊이감을 지닌 오픈형 'LDK(거실-다이닝-주방)'공간이 펼쳐진다. 이 공간은 산에서 이어지는 뒷마당과 탁 트인 앞마당을 관통하며 곡선창, 코너창, 전면창 등을 통해 다면적으로 자연풍경을 담아낸다. 2층의 가족실은 각 실을 유기적으로 연결하는 중심 공간으로, 레벨 단차를 활용해 가족이 자연스럽게 모여 앉을 수 있도록 계획됐다. 또한, 서로 다른 높이의 창을 통해 다양한 시선에서 조망과 채광을 즐길 수 있다.
전체적으로 이 주거공간은 평면과 단면의 올록볼록한 형태를 통해, 각 실이 서로 다른 자연과 다면적으로 접하도록 계획했다. 이는 단순한 조망을 넘어, 집안 어디에서든 다양한 풍경을 경험하기를 바랐다.◼︎


















