
사진



'공주 하얀집'은 공주 원도심의 중심을 가로지르는 제민천 옆에 자리했다. 매우 작은 땅이지만, 제민천 풍경을 함께 만들어갈 수 있는 곳이었다. 이 공간은 건축학과 교수 부부를 위한 제 2의 집이자 작업실로 약 4년이라는 시간을 배경으로 한다. 2019년 말, 중소도시를 탐방하던 중 공주 원도심의 매력에 빠져 약 3년 동안 틈나는 대로 공주 제민천을 중심으로 구 가옥, 한옥, 빈집, 빈 땅을 살펴봤고, 마침내 오랜 발품의 결실로 작지만, 매우 소중한 땅을 만나게 되었다. 이후 1년간의 설계와 시공을 거쳐 2023년 12월 말에 모습을 드러냈다.





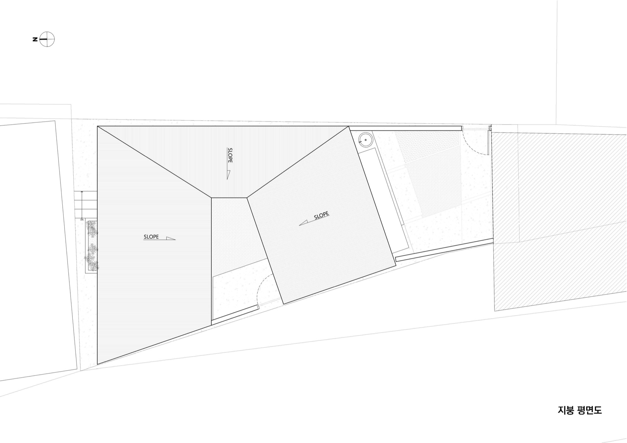
Plan_RF
제민천 변 풍경, 다양성과 소박함
백제의 고도, 공주 원도심 중심을 남북으로 흐르는 제민천은 공주의 역사와 삶이 녹아있는 중심이다. 제민천은 폭이 그리 넓지 않은 소박한 하천으로 70년대까지만 해도 이곳에서 아이들은 멱을 감고, 고기를 잡고, 아낙네들은 빨래하던 추억 어린 아주 소중한 삶의 현장이었다. 또한, 제민천을 중심으로 모든 골목길이 연결돼 마치 한 마을의 거실이자 공동체의 중심 공간 역할을 했다. 제민천의 소박한 크기는 주변 건축물에도 자연스럽게 이어졌다. 1, 2층의 수평선 위에 다양한 시대와 시간 속에 녹아있는 삶의 흔적을 엿볼 수 있는 아기자기하고 소박한 건물들이 특색을 만들어가고 있었다. 또한, 예로부터 공주목 관아, 충청감영, 공주시청을 비롯한 중요시설이 있었고, 교대, 고등학교, 중학교 등 교육시설이 제민천을 중심으로 들어섰다. 교회와 성당 등 종교시설과 문화원, 우체국, 청소년문화센터, 옛 호서극장, 구 아카데미극장, 소갤러리 등의 문화시설도 주변에 자리한다. 그리고 2014년 원도심활성화사업과 2016년 도시재생사업을 기점으로 공주하숙마을이 조성됐고, 기존 건축물들이 리노베이션을 통해 책방, 게스트하우스, 카페, 소품 가게, 소갤러리 등으로 새롭게 탄생하며 다양한 한옥들이 건립되었다. 제민천을 중심으로 다채로운 역사, 문화, 상업 콘텐츠들이 생겨나며 원도심을 견인하고, 다양한 용도, 형태, 재료 그리고 다양한 시간대의 건축물들이 천변의 풍경을 만들어가고 있었다.





Elevation

Elevation
공주 하얀집의 시작은 이러한 '다양성'과 '소박함'이라는 독특한 풍경이었다. 단층의 간소한 규모, 제민천을 향해 기울어진 경사지붕, 제민천으로 열린 공간 구성, 잘게 나누어진 목재 마감 그리고 개방감을 위한 낮은 담장 등은 천변 풍경의 다양하고 소박한 조형적 흐름을 받아들이고, 새로운 질감을 덧붙이고자 하는 시도다.





Elevation

Elevation
백색의 간소함
공주 하얀집은 이름 그대로 모든 것이 하얗다. 외부는 방부목 위에 흰색 오일스테인, 내부 벽과 천장은 백색 천연페인트, 바닥은 흰색 마루 그리고 주방가구, 화장실 내부, 책장과 가구 등 하얗지 않은 것이 없다. 외부 공간과 2개의 마당 역시 흰색 콩자갈이 중심을 이룬다. 백색은 건축의 기하학적 형태를 가장 순수하게 잘 드러내고, 미학적 가치를 상승시키는 작용을 한다. 그리고 화이트 큐브 같은 미술관처럼 백색 공간은 사물, 오브제 등 다양한 대상의 의미를 새로운 시각으로 바라보게 한다. 무엇보다 공주 하얀집은 제민천 변의 다양한 질감에 하얀색 질감을 더해 주변에 밝음과 개방적 성격을 부여하고 싶었다. 백색의 미니멀하고 간소한 형태로 빛을 반사하고 그림자를 만들며 햇빛이 소재인 풍경인자가 되길 바랐다.





Section
작은 땅, 2개의 마당
대지는 93.2㎡(약 28평)으로 매우 작은 땅이다. 비록 작은 면적이지만, 마당이 지니는 가치와 매력을 너무나 잘 알고 있기에 성격이 다른 2개의 마당을 구성했다. 조선시대 'ㅁ'집 마당의 안마당과 사랑마당이 토대가 됐다. 서쪽 제민천으로 난 대문을 지나면 만나게 되는 마당은 안마당이고, 동쪽 길의 보조 대문과 연결된 마당이 사랑마당이다. 천변쪽 길과 동쪽 길은 80cm의 높이차가 있어 2개의 마당은 높이가 다르며, 서쪽 연결통로로 연결된다. 안마당은 'ㄷ'자 볼륨과 1.7m 높이의 담으로 구성된 사적인 공간이며, 사랑마당은 1.1m의 담으로 구획된 외부로 열린 마당이다. 사랑마당은 남쪽 볼륨과 쪽마루와 연결되고, 작은 대나무정원이 함께한다. 안마당은 툇마루와 같은 분위기의 열주회랑이 구성된 비워진 여백의 공간이다. 'ㄷ'자 볼륨 위 처마가 나온 경사지붕이 만나서 이루는 공간감은 'ㄷ'한옥의 마당과 지붕의 관계를 투영한다.





Section
작은 면적, 2개의 채
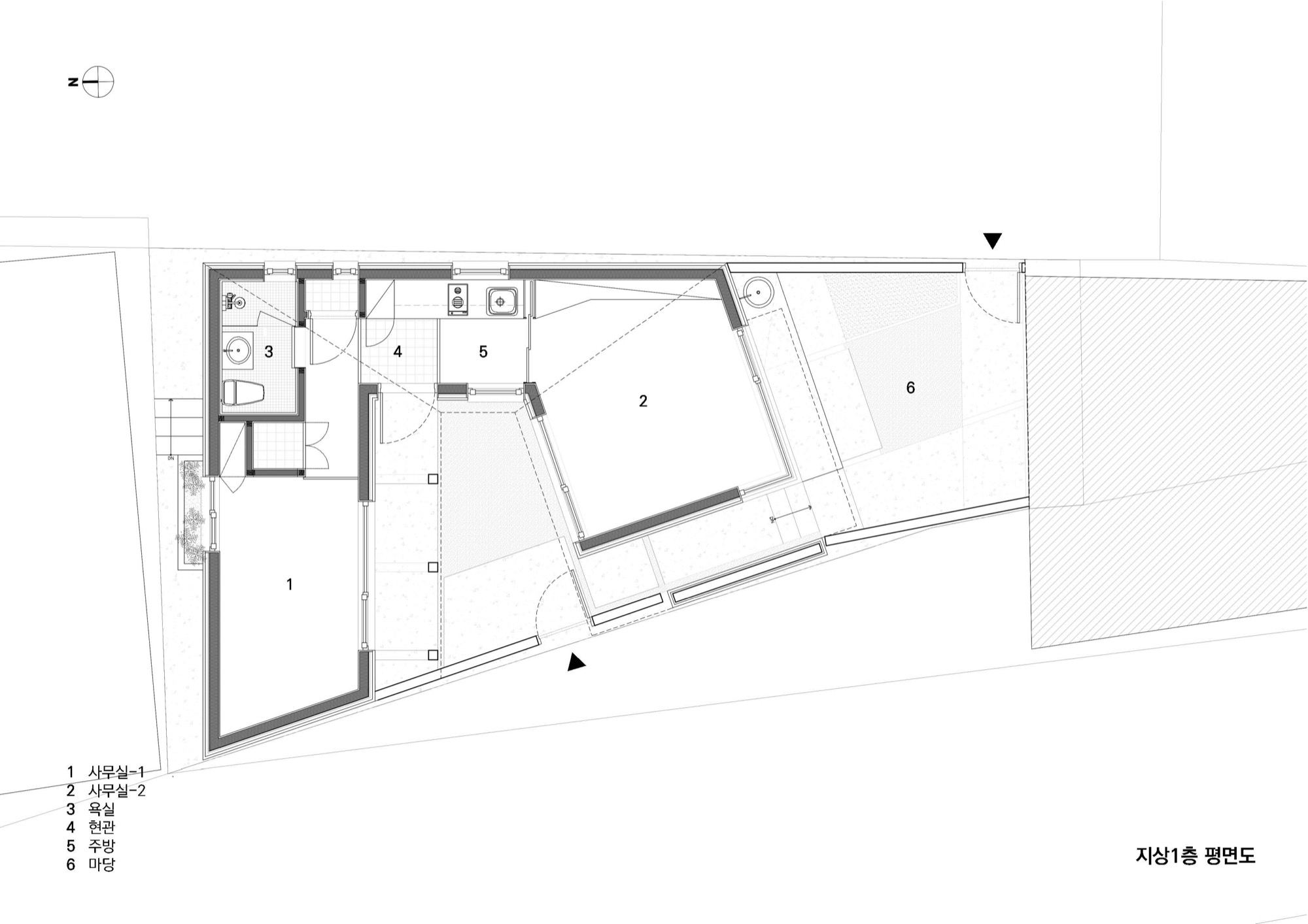
공주 하얀집의 건축면적은 45.07㎡(약 13.6평)로, 내부에는 2개의 방(작업실)과 미니 주방, 화장실이 필요했다. 작은 면적이지만, 모든 공간이 마당을 향해 열려있게 하여 개방감을 최대한 확보했다. 제민천으로 열려있으면서 주요 공간인 2개의 방이 남향인 'ㄷ'자 집이 됐다. 한옥은 아니지만, 한옥 같은 공간 구성으로 '안채'와 '사랑채'를 닮은 공간을 생각했다. 북쪽에 있는 윗방은 툇무를 통해 안마당을 바라볼 수 있는 '안채'가 되고, 남쪽에 있는 아랫방은 사랑마당과 연결된 '사랑채'가 된다. 사랑채는 안마당과 큰 창으로 연결되어 3면이 거의 외부로 열린 정자 같은 공간이라 할 수 있다. 사랑채의 남쪽에는 사랑마당을 바라볼 수 있도록 쪽마루를 두었고, 이것은 미니 대나무 정원을 즐길 수 있는 소박한 공간적 장치가 된다.





Plan_1F
백색으로 통일된 공간은 zero의 공간이 되며, 그 자체가 비워지는 여백이 된다. 그러므로 백색의 공간은 작은 공간이라 할지라도 답답하거나 협소해 보이지 않는다. 또한, 빛 자체의 순수한 질감을 있는 그대로 전달한다. 그래서 백색 공간은 빛의 연출에 따라 무한하게 변모하며, 단조롭지 않게 진화하는 공간이 된다. 그리고 무균실처럼 정결한 백색 공간은 주의를 기울이게 한다. 자신을 비추는 거울처럼 정결을 유지하기 위해 정성 들이며, 자기 집이지만 손님처럼 조심스레 공간을 대하게 된다. 과하지 않게 간소하고 소박하게 비워진 2개의 마당과 천변 풍경이 주인이 될 수 있는 여백의 건물을 생각하며 공간을 그려나갔다. 공주 하얀집이 '집 스스로 풍경이 되고, 집 안에 앉아 내 집을 바라본다'는 의미를 담고 있는 '자경(⾃景)'처럼, 내가 나를 바라보는 자아 성찰의 공간이 되길 바란다.◼︎




















