


'트리오 하우스 TRIO HOUSE'는 한집을 3세대가 공유하며 효율적이고 풍요롭게 살아가는 방법을 제시하는 설계안이다. 처음 건축주를 만났을 때가 생각난다. 건축주는 '둘이 사는 집을 왜 그리 크게 짓느냐?' 묻는 주변 지인의 시선에 아랑곳하지 않고 “출가한 자녀와 유학 간 자녀가 머무를 수 있는 공간을 계획해 주세요. 손주는 핑크색을 좋아해요. 머무를 공간이 있어야 찾아오고 같이 살죠.”라 요청해왔다.




Plan_1F
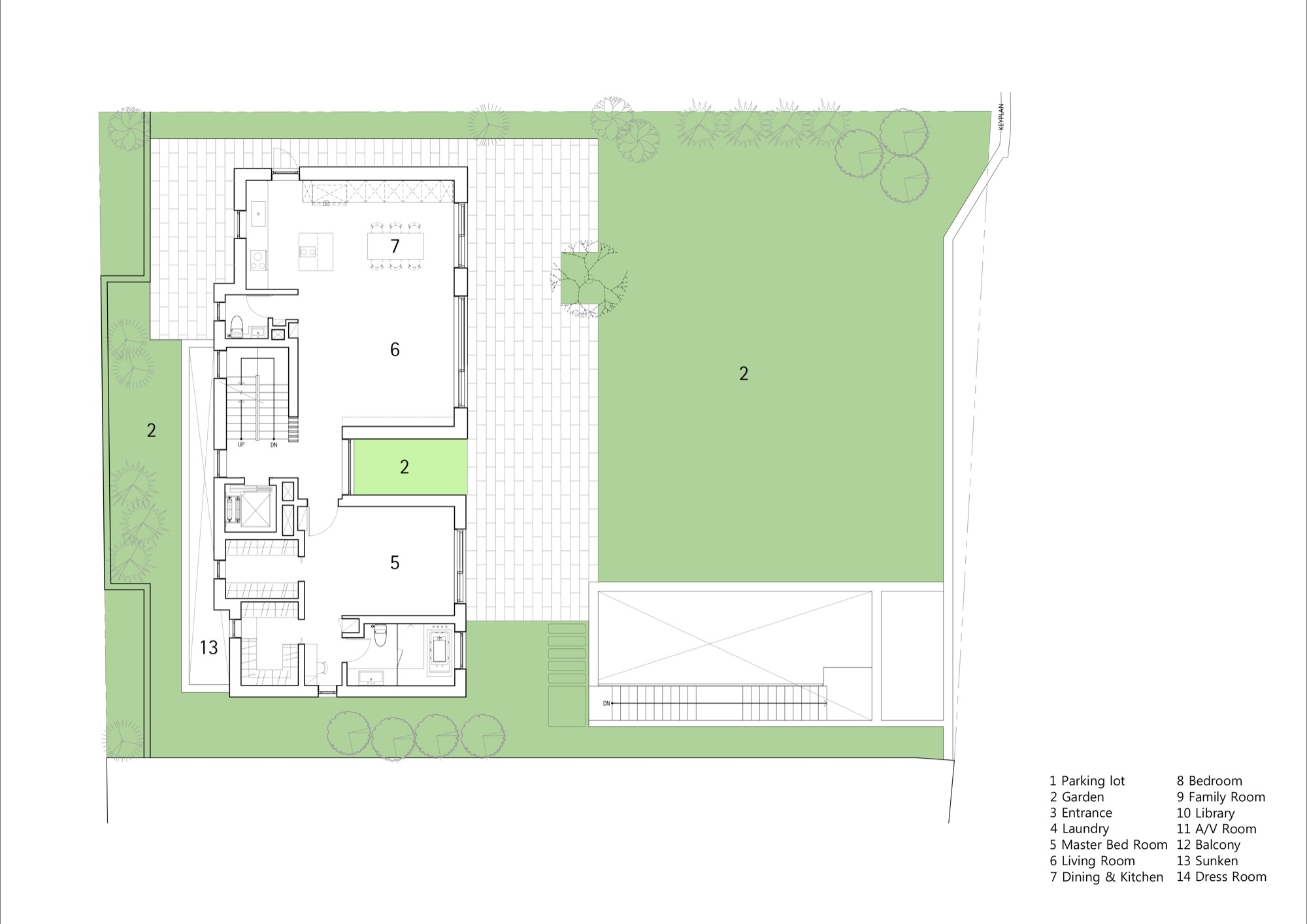
주택은 용인 수지의 서쪽에 있는 광교산 근처에 자리했다. 대지는 앞 도로보다 4m 높게 조성되어 남쪽으로 나지막한 산이 펼쳐지고 자연과 소통하는 운치 있는 곳이다. 건폐율 20% 이하라는 자연녹지지역의 법적 한계로 한 층에 쳘지기보다 단면으로 세대가 공유할 수 있는 안을 제시하여 기존 단독주택에서 사용하지 않는 3층으로 계획했다. 1층은 부모를 위한 주거 공간과 가족들이 모일 수 있는 공간을 배치했고, 2층은 출가한 자녀와 유학 간 자녀가 머무를 수 있는 공간을 계획하여 독립 주거가 가능하다. 3층은 라이프스타일에 따라 공유할 수 있는 서재나 AV룸 등의 공간을 계획하여 다양한 삶의 가치를 느끼게 한다. 1층과 3층 사이에 자리한 2층 자녀 공간은 계단을 오르락내리락 하면서 부모와 자녀가 한 번 더 보고 말하며 연결고리를 만든다.




Diagram
주택의 외부 볼륨은 일직선 상에 있지 않고, 들락거리며 굴곡을 만들고, 이 요철은 층마다 다른 표정으로 다가온다. 1층은 마당과 연계해 작은 마당을 만들고, 2층과 3층 사이 공간은 발코니와 연계한다. 또한, 기능을 분리하는 동시에 공간에 깊이를 더하고 사람과 사람, 사람과 자연 간의 소통을 유도한다.



Section

Section
계획 중 반신반의했던 딸과 아들은 준공 이후 실제로 들어와 함께 살겠다고 했다. 기쁜 소식이 아닐 수 없다. 1, 2인 가구의 증가, '싱글 코리아'의 출현 등 한국 주거문화 패턴이 바뀌고 있지만, 라이프스타일이 다른 세대가 직간접적인 경험을 공유하면서 한 지붕 아래 한가족이 된다.◼︎


















