
사진






Elevation
이 프로젝트의 가장 큰 도전은 좁은 논현동 4m 도로변에서 건물의 형태와 재질로 존재감을 드러내는 것이었다. 주변의 회색빛 입면과 대비되는 붉은 계열의 외장재를 적용하고, 적재적소에 곡면을 사용하여 직선적 도시와 구별되는 특별한 성격을 부여하였다. 하부에는 나팔형의 곡면기둥을 적용하여 필로티 주차장을 지나는 사람들이 즐길 수 있는 입체적 경험을 제공한다.






Diagram
용도지역지구의 조닝 제한을 받는 빽빽한 강남도시 이면도로변, 건물들은 도로를 바라보는 ‘정면’만이 노출된다. 동일한 법적 제한 속에 모두의 욕망이 더해지면 비슷한 층수, 비슷한 볼륨의 건물들이 옴싹달싹 못한 채 서로 구속하고, 매스를 테스트하고 비율을 실험한 여유치의 공간을 주지 않는다. 대상지는 4m 일차선 도로에 면하여 건물은 겨우 살짝 입면을 드러낼 수 있다. 하지만 사이트의 맥락과 건축주의 욕망은 상반된다. 건축주는 강력한 아이덴티티를 통해 주목을 받는 건물을 원했다. 어느 회사의 사옥으로 통임대를 받고 싶은 건물주로서 당연한 열망이다. 이 때문에 좁은 도로에 살짝 노출된 입면으로 명확한 아이덴티티를 드러내야 하는 도전적인 미션이 주어졌다.







Diagram
상업용 건물로써 최대 면적과 전용률을 만들어야 한다는 강력한 제약은 새로운 창의성을 촉발한다. 최대화된 볼륨에서 명확한 아이덴티티를 만들어내기 위해 외부공간과 발코니 및 기둥을 활용해 곡선적 디자인을 계획했다. 곡면의 건축물은 주변의 선적인 건축물과 구분되어 쉽게 눈에 띄며, 동시에 절제된 어휘로 적재적소에만 곡면을 사용하면 예산의 효율화를 달성할 수 있다. 파사드의 성질을 곡면으로 인지할 만큼의 곡면이면서도 비정형 건물로 분류되지 않을 수 있는, 최적의 지점을 맞추기 위해 노력하였다.




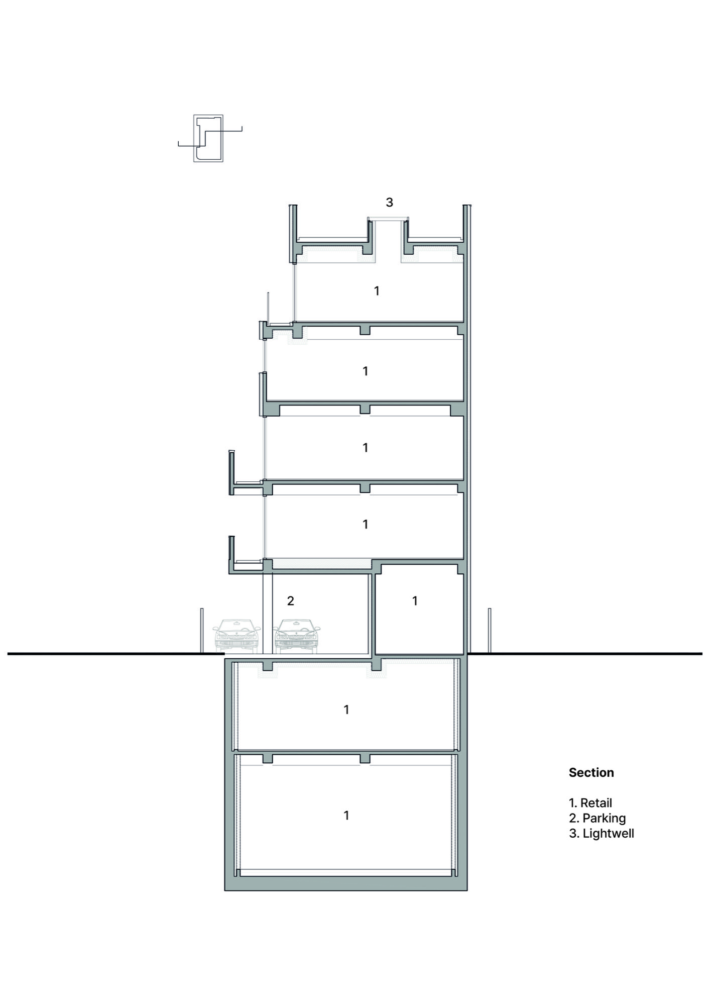
Section

Plan_B2

Plan_B1
곡면을 통한 아이덴티티를 효율적으로 구현하기 위해 다양한 디자인 포인트들을 적용했다. 입면에는 벽돌 타일을 세로로 부착하여 섬세한 곡면을 구현해 마치 말려들어간 벽돌면이 개구부를 만들어내는 형상을 의도했다. 전면의 기둥은 곡면 철판 거푸집을 사용하여 곡선적 양감을 표현하였다. 또한, 곡면 기둥을 필로티 천장면과 자연스럽게 잇기 위해 부분적으로 역슬라브를 적용하여 하부 노출콘크리트의 덩어리감을 강조했다. 마치 건물 전체를 곡선의 기둥이 들어 올리는 모습을 의도해 상-하부 디자인의 균형을 맞추었다.



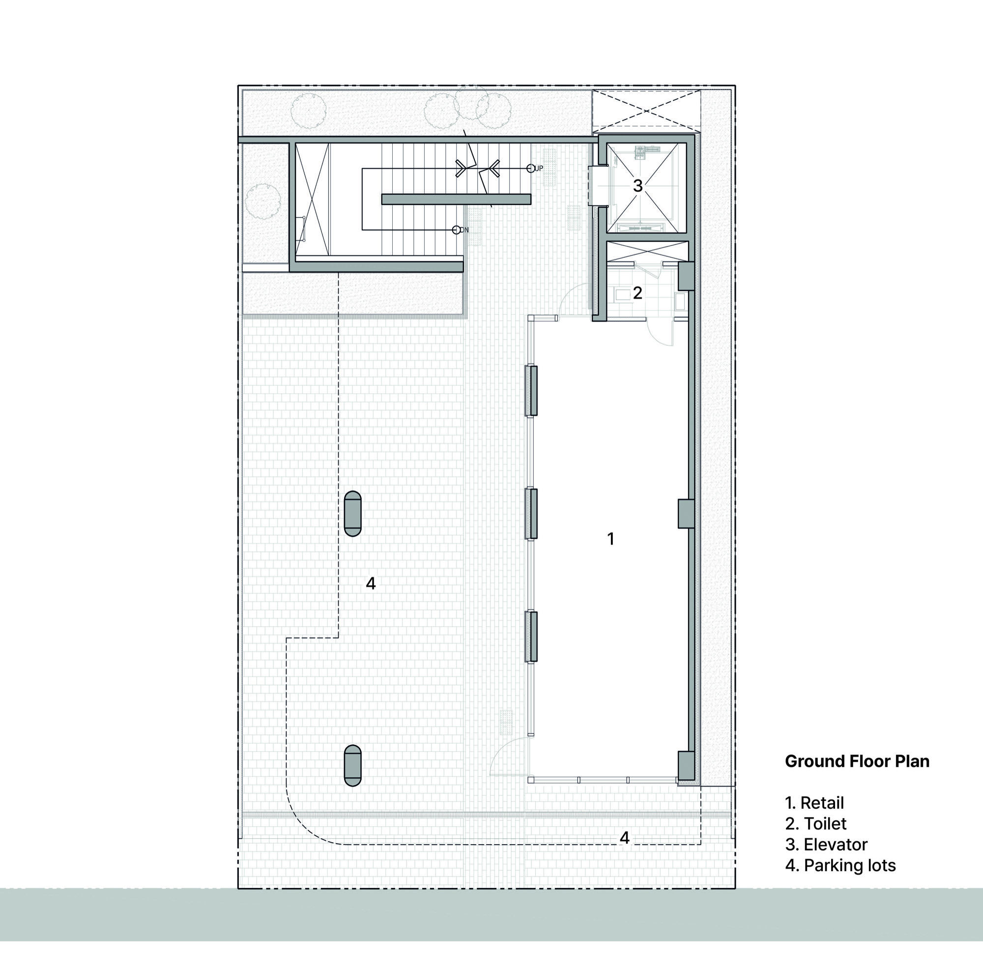
Plan_1F

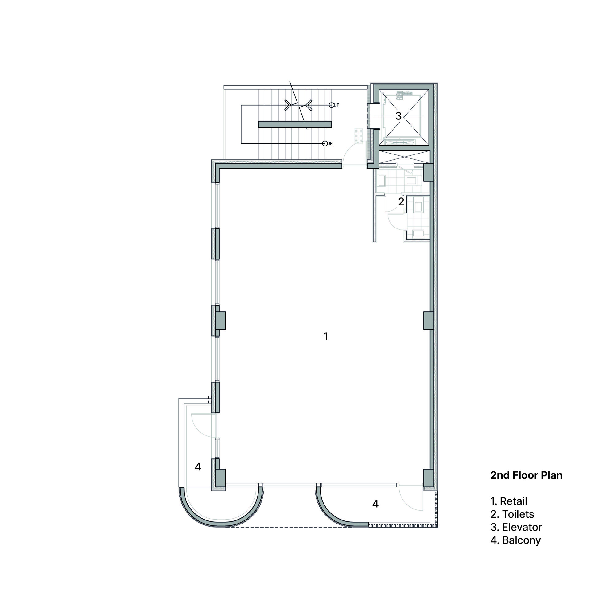
Plan_2F





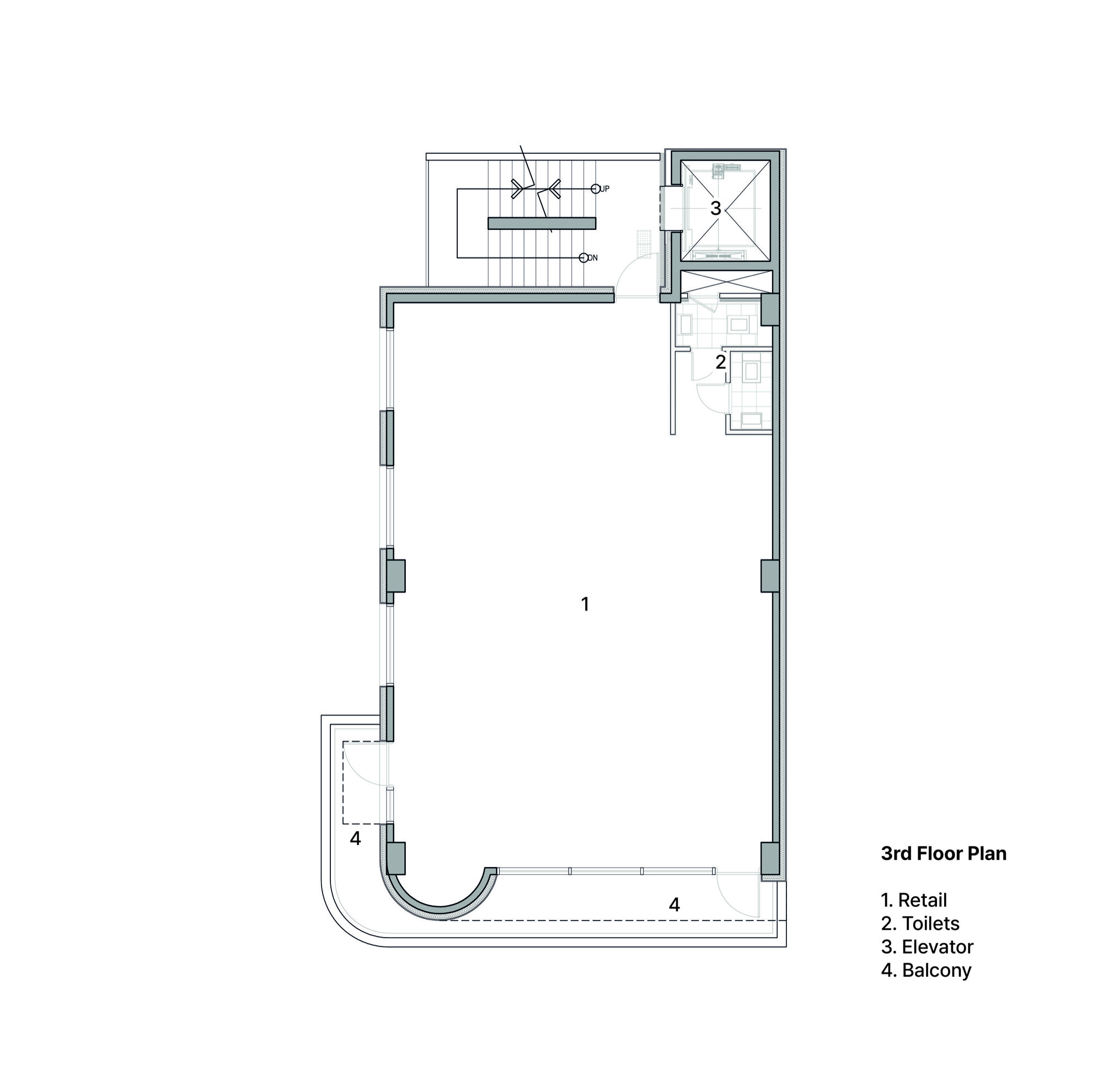
Plan_3F

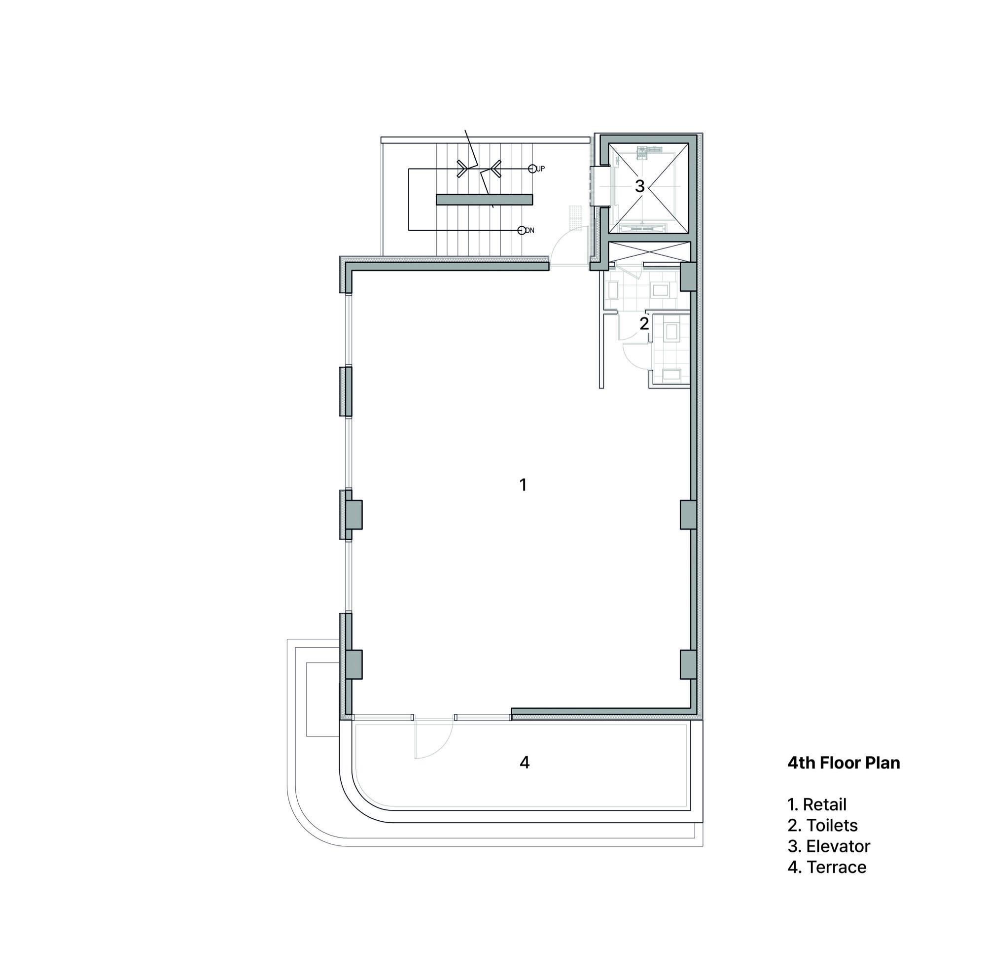
Plan_4F






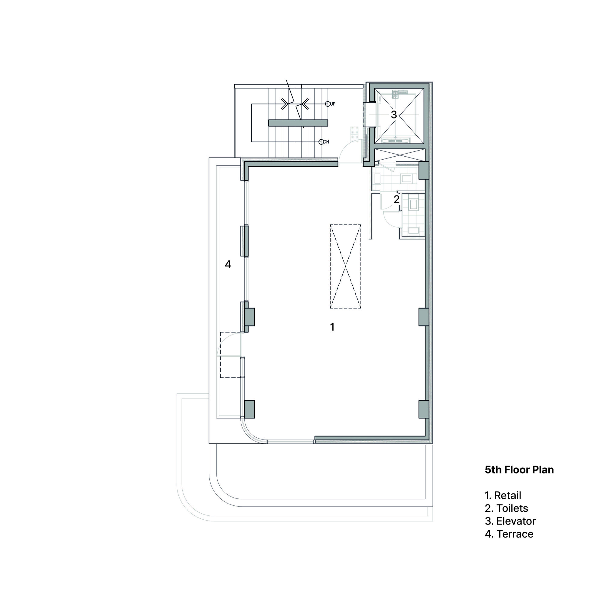
Plan_5F
















